2013October
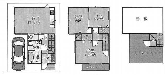
24,800,000 yen, 3LDK, 71.68 sq m
New Homes » Kansai » Osaka prefecture » Takatsuki
 
| | Osaka Takatsuki 大阪府高槻市 |
| JR Tokaido Line "Takatsuki" 10 minutes Fushiwara walk 5 minutes by bus JR東海道本線「高槻」バス10分伏原歩5分 |
| Home vegetable garden and horticulture, etc., How many with roof balcony 家庭菜園や園芸等、使い方いろいろルーフバルコニー付 |
Features pickup 特徴ピックアップ | | Immediate Available / 2-story / City gas 即入居可 /2階建 /都市ガス | Price 価格 | | 24,800,000 yen 2480万円 | Floor plan 間取り | | 3LDK 3LDK | Units sold 販売戸数 | | 1 units 1戸 | Land area 土地面積 | | 60.87 sq m (registration) 60.87m2(登記) | Building area 建物面積 | | 71.68 sq m (registration) 71.68m2(登記) | Driveway burden-road 私道負担・道路 | | Nothing 無 | Completion date 完成時期(築年月) | | October 2013 2013年10月 | Address 住所 | | Osaka Takatsuki Tsukawaki 1 大阪府高槻市塚脇1 | Traffic 交通 | | JR Tokaido Line "Takatsuki" 10 minutes Fushiwara walk 5 minutes by bus JR東海道本線「高槻」バス10分伏原歩5分
| Contact お問い合せ先 | | TEL: 0800-603-2284 [Toll free] mobile phone ・ Also available from PHS Caller ID is not notified Please contact the "saw SUUMO (Sumo)" If it does not lead, If the real estate company TEL:0800-603-2284【通話料無料】携帯電話・PHSからもご利用いただけます 発信者番号は通知されません 「SUUMO(スーモ)を見た」と問い合わせください つながらない方、不動産会社の方は
| Building coverage, floor area ratio 建ぺい率・容積率 | | 60% ・ 200% 60%・200% | Time residents 入居時期 | | Immediate available 即入居可 | Land of the right form 土地の権利形態 | | Ownership 所有権 | Structure and method of construction 構造・工法 | | Wooden 2-story 木造2階建 | Use district 用途地域 | | One middle and high 1種中高 | Overview and notices その他概要・特記事項 | | Facilities: Public Water Supply, This sewage, City gas, Building confirmation number: Kinkendai 1011 No. 設備:公営水道、本下水、都市ガス、建築確認番号:近建第1011号 | Company profile 会社概要 | | <Mediation> governor of Osaka (10) No. 021564 (company) Osaka Building Lots and Buildings Transaction Business Association (Corporation) Kinki district Real Estate Fair Trade Council member (Ltd.) Mishima Corporation JR Takatsuki store Yubinbango569-1123 Osaka Takatsuki Akutagawa-cho 1-7-24 <仲介>大阪府知事(10)第021564号(社)大阪府宅地建物取引業協会会員 (公社)近畿地区不動産公正取引協議会加盟(株)三島コーポレーションJR高槻店〒569-1123 大阪府高槻市芥川町1-7-24 |
 Local appearance photo
現地外観写真
 Local appearance photo
現地外観写真
 Local photos, including front road
前面道路含む現地写真
Floor plan間取り図  24,800,000 yen, 3LDK, Land area 60.87 sq m , Building area 71.68 sq m
2480万円、3LDK、土地面積60.87m2、建物面積71.68m2
Otherその他  Shimizu elementary school
清水小学校
 Ninth junior high school
第九中学校
Location
|