New Homes » Kansai » Osaka prefecture » Takatsuki
 
| | Osaka Takatsuki 大阪府高槻市 |
| Hankyu Kyoto Line "Tomita" walk 23 minutes 阪急京都線「富田」歩23分 |
| ◆ Limited 1 compartment new appearance! ◆ The connection of the family was considered important in the living room stairs ◆ There is a loft, Widely secure a living space ◎ ◆限定1区画新登場!◆リビング階段で家族の繋がりを大切に考えました◆ロフトがあり、生活スペースを広く確保◎ |
| ◆ □ ◆ □ ◆ □ ◆ □ ◆ □ ◆ □ ◆ □ ◆ □ ◆ □ ◆ □ ◆ Now is the chance of the previous economic recovery if you buy a house! ◆ □ ◆ □ ◆ □ ◆ □ ◆ □ ◆ □ ◆ □ ◆ □ ◆ □ ◆ □ ◆ Recovery of the economy is coming around the corner! Real estate shall retain the long-term. If Do not Relocation wise? ↓ ↓ ↓ there is no down payment ・ It was refused by other companies ・ Not sell the house ・ Undeclared ・ But she was a woman ... and so on to what your worries also you consider the consultation please ◎ purchase everyone at the individual purchase consultation, We will teach the secret of real estate purchase (when you coming to the store, annual income ・ Please prepare what you can see of your borrowing situation) ◆□◆□◆□◆□◆□◆□◆□◆□◆□◆□◆ 家を買うなら景気回復前の今がチャンス! ◆□◆□◆□◆□◆□◆□◆□◆□◆□◆□◆ 景気の回復はもうすぐそこまで来ています! 不動産は長期に保有するもの。ならば賢く住み替えませんか? ↓ ↓ ↓頭金が無い・他社で断られた・家が売れない・申告していない・女性だけど...等々個別購入相談会にてどんなお悩みもご相談下さい◎ご購入をご検討の皆様に、不動産購入の極意を伝授致します(ご来店の際は、年収・お借入れ状況の分かるものをご用意下さい) |
Features pickup 特徴ピックアップ | | Construction housing performance with evaluation / Design house performance with evaluation / Long-term high-quality housing / Corresponding to the flat-35S / Pre-ground survey / Vibration Control ・ Seismic isolation ・ Earthquake resistant / Seismic fit / 2 along the line more accessible / Energy-saving water heaters / Super close / System kitchen / Bathroom Dryer / All room storage / Flat to the station / Around traffic fewer / Shaping land / Washbasin with shower / Face-to-face kitchen / Toilet 2 places / Bathroom 1 tsubo or more / 2-story / South balcony / Double-glazing / High speed Internet correspondence / Warm water washing toilet seat / Underfloor Storage / The window in the bathroom / TV monitor interphone / All living room flooring / Or more ceiling height 2.5m / Living stairs / City gas / All rooms are two-sided lighting / BS ・ CS ・ CATV / Flat terrain / Attic storage 建設住宅性能評価付 /設計住宅性能評価付 /長期優良住宅 /フラット35Sに対応 /地盤調査済 /制震・免震・耐震 /耐震適合 /2沿線以上利用可 /省エネ給湯器 /スーパーが近い /システムキッチン /浴室乾燥機 /全居室収納 /駅まで平坦 /周辺交通量少なめ /整形地 /シャワー付洗面台 /対面式キッチン /トイレ2ヶ所 /浴室1坪以上 /2階建 /南面バルコニー /複層ガラス /高速ネット対応 /温水洗浄便座 /床下収納 /浴室に窓 /TVモニタ付インターホン /全居室フローリング /天井高2.5m以上 /リビング階段 /都市ガス /全室2面採光 /BS・CS・CATV /平坦地 /屋根裏収納 | Price 価格 | | 28.8 million yen 2880万円 | Floor plan 間取り | | 3LDK + S (storeroom) 3LDK+S(納戸) | Units sold 販売戸数 | | 1 units 1戸 | Total units 総戸数 | | 1 units 1戸 | Land area 土地面積 | | 84.53 sq m (registration) 84.53m2(登記) | Building area 建物面積 | | 82.49 sq m (registration) 82.49m2(登記) | Driveway burden-road 私道負担・道路 | | Nothing, North 4.2m width 無、北4.2m幅 | Completion date 完成時期(築年月) | | January 2014 2014年1月 | Address 住所 | | Osaka Takatsuki Sakaemachi 3 大阪府高槻市栄町3 | Traffic 交通 | | Hankyu Kyoto Line "Tomita" walk 23 minutes JR Tokaido Line "Tomita Settsu" walk 24 minutes Hankyu Kyoto Line "Sojiji Temple" walk 27 minutes 阪急京都線「富田」歩23分 JR東海道本線「摂津富田」歩24分 阪急京都線「総持寺」歩27分
| Related links 関連リンク | | [Related Sites of this company] 【この会社の関連サイト】 | Contact お問い合せ先 | | TEL: 0800-602-6604 [Toll free] mobile phone ・ Also available from PHS Caller ID is not notified Please contact the "saw SUUMO (Sumo)" If it does not lead, If the real estate company TEL:0800-602-6604【通話料無料】携帯電話・PHSからもご利用いただけます 発信者番号は通知されません 「SUUMO(スーモ)を見た」と問い合わせください つながらない方、不動産会社の方は
| Building coverage, floor area ratio 建ぺい率・容積率 | | 60% ・ 200% 60%・200% | Time residents 入居時期 | | Consultation 相談 | Land of the right form 土地の権利形態 | | Ownership 所有権 | Structure and method of construction 構造・工法 | | Wooden 2-story 木造2階建 | Use district 用途地域 | | One middle and high 1種中高 | Other limitations その他制限事項 | | ※ S of 3SLDK loft ※ TV antenna ・ CATV, etc. wiring work will be borne by the customer ※3SLDKのSはロフト ※TVアンテナ・CATV等配線工事はお客様負担となります | Overview and notices その他概要・特記事項 | | Facilities: Public Water Supply, This sewage, City gas, Building confirmation number: 000, Parking: car space 設備:公営水道、本下水、都市ガス、建築確認番号:000、駐車場:カースペース | Company profile 会社概要 | | <Mediation> governor of Osaka (2) No. 051345 (Ltd.) World ・ One Takatsuki store Yubinbango569-0064 Osaka Takatsuki Shosho-cho 2-13 <仲介>大阪府知事(2)第051345号(株)ワールド・ワン高槻店〒569-0064 大阪府高槻市庄所町2-13 |
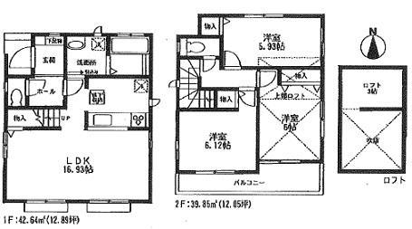
Floor plan間取り図  2014 January is the beginning scheduled for completion! Please feel free to contact us
平成26年1月上旬完成予定です!お気軽にお問い合わせ下さいね
Rendering (appearance)完成予想図(外観)  Shin appeared in limited 1 compartment! Since the surroundings are flat ground, Comfortable Friend Mart on foot and bicycle ・ Morita shop is close to shopping is also a convenient environment ◎ family leads in the living room stairs, It is a house with a loft
限定1区画で新登場!周辺は平坦地ですので、徒歩や自転車のご利用も快適フレンドマート・モリタ屋が近くてお買い物も便利な環境です◎リビング階段で家族が繋がる、ロフトのあるお家です
Otherその他  Please leave our if it is a thing of Takatsuki of property!
高槻市の物件の事なら当社にお任せ下さい!
Same specifications photos (Other introspection)同仕様写真(その他内観)  (Construction cases) about 6 Pledge Western-style: at the top there is about 3 Pledge of loft! It is clean up the luggage, It is open in the I can secure a wide living space atrium!
(施工例)約6帖洋室:上部には約3帖のロフトがございます!荷物を片付けれ、生活スペースを広く確保できますよ吹抜けで開放的です!
 We ensure the (construction cases) Full room dihedral Aya light! It is with storage
(施工例)全居室二面彩光を確保致しました!収納付きです
Same specifications photo (bathroom)同仕様写真(浴室)  (Example of construction) Bathroom 1 tsubo or more: wash basin also has convenient shower
(施工例)浴室1坪以上:シャワー付き洗面台もあり便利です
Same specifications photo (kitchen)同仕様写真(キッチン)  (Example of construction) easy-to-use system Kitchen! Stock up is refreshing to put to the under-floor storage
(施工例)使い勝手の良いシステムキッチン!買い置きは床下収納へ入れてスッキリ
Same specifications photos (living)同仕様写真(リビング)  (Example of construction) LDK16 pledge more: A warm light is plugged into the living room from the south
(施工例)LDK16帖以上:南側からの暖かな光が差し込むリビングです
Local photos, including front road前面道路含む現地写真  It is facing the north side.
北側に面しております。
Compartment figure区画図  28.8 million yen, 3LDK + S (storeroom), Land area 84.53 sq m , There is a building area of 82.49 sq m car one minute of space.
2880万円、3LDK+S(納戸)、土地面積84.53m2、建物面積82.49m2 お車1台分のスペースがございます。
Primary school小学校  664m to Takatsuki Municipal lawn Elementary School
高槻市立芝生小学校まで664m
Junior high school中学校  1031m to Takatsuki Tatsudai three junior high school
高槻市立第三中学校まで1031m
Supermarketスーパー  455m to Friend Mart Takatsuki Kawazoe shop
フレンドマート高槻川添店まで455m
 494m to fresh food hall top world Tomita shop
生鮮食品館トップワールド富田店まで494m
 Until Morita shop Sakae 524m
モリタ屋栄店まで524m
Convenience storeコンビニ  363m to Seven-Eleven Takatsuki Sakaemachi shop
セブンイレブン高槻栄町店まで363m
Home centerホームセンター  1163m to home improvement Konan Takatsuki store
ホームセンターコーナン高槻店まで1163m
Drug storeドラッグストア  It cares 311m to drag Kawazoe shop
ケアーズドラッグ川添店まで311m
Otherその他  Walk is about 23 minutes from the Hankyu Tomita Station
阪急富田駅より徒歩約23分です
 Hankyu Tomita Station: surrounding environment
阪急富田駅:周辺環境
 Hankyu Tomita Station: surrounding environment
阪急富田駅:周辺環境
Post office郵便局  Takatsuki Kawazoe 347m to the post office
高槻川添郵便局まで347m
Presentプレゼント  When your conclusion of a contract to Customers who have received contact us by phone, Authentic Motchiri bread of the topic and easy to enjoy at home, "a Panasonic: Gopan" I will present the! ! First arrival 50 people limited! ! (The photograph is an image. Please note that there is a case that is different from the real ones)
お電話にてお問い合わせ頂きましたお客様にご成約時、本格もっちりパンがご自宅で手軽に楽しめると話題の『Panasonic製:ゴパン』をプレゼントさせていただきます!!先着50名様限定です!!(写真はイメージです。実際の物とは異なる場合がございますので予めご了承下さい)
Location
|