New Homes » Kansai » Osaka prefecture » Takatsuki
 
| | Osaka Takatsuki 大阪府高槻市 |
| Hankyu Kyoto Line "Tomita" walk 8 minutes 阪急京都線「富田」歩8分 |
| ◆ "Frog House" Clover Town Takatsuki Kitashowadai cho ・ All four House ・ The remaining 1 House ◆ Sale starts at the new price! Last 1 House Please hurry! Ecocarat ・ Of the meter module house! Parking two possible! ◆ ◆「カエルの家」クローバータウン高槻市北昭和台町・全4邸・残1邸◆新価格にて販売開始!ラスト1邸お急ぎください!エコカラット・メーターモジュールの家!駐車2台可能!◆ |
| ■ For outside 構費 ・ Ground improvement costs ・ Water City receipt of payment ・ JIO (defect liability insurance) ・ Building construction costs ・ It includes the consumption tax! ■ Still 5% consumption tax in time! ■ It started building! ■ Meter module ・ Adopt eco-carat! ■ Parking space two possible! ■ A quiet residential area, Bright throughout the day, Ventilation is a good location environment! ■ Unmanned exhibition hall! Takatsuki Tomita-cho 2-chome, 1-2 (8:00 ~ 19:00 to) buying and selling ・ Rent ・ Rebuilding of information full !! ■ It was home page renewal! Latest information full! Now "Frog House" click! ■外構費用・地盤改良費・水道市納金・JIO(瑕疵担保責任保険)・建築確認費・消費税を含みます!■まだ間に合う消費税5%!■建築開始しました!■メーターモジュール・エコカラットを採用!■駐車スペース2台可能!■閑静な住宅街、一日を通して明るく、通風良好な立地環境です!■無人展示場!高槻市富田町2丁目1-2(8:00 ~ 19:00まで)売買・賃貸・建替の情報満載!!■ホームページリニューアルしました!最新情報満載!今すぐ「カエルの家」クリック!! |
Features pickup 特徴ピックアップ | | Measures to conserve energy / Pre-ground survey / Parking two Allowed / 2 along the line more accessible / Energy-saving water heaters / Super close / It is close to the city / System kitchen / Bathroom Dryer / Yang per good / All room storage / Flat to the station / A quiet residential area / Around traffic fewer / Shaping land / Mist sauna / Washbasin with shower / Face-to-face kitchen / Security enhancement / Barrier-free / Bathroom 1 tsubo or more / 2-story / South balcony / Double-glazing / Otobasu / Warm water washing toilet seat / Underfloor Storage / The window in the bathroom / TV monitor interphone / Ventilation good / All living room flooring / Dish washing dryer / Water filter / City gas / A large gap between the neighboring house / Flat terrain / Floor heating 省エネルギー対策 /地盤調査済 /駐車2台可 /2沿線以上利用可 /省エネ給湯器 /スーパーが近い /市街地が近い /システムキッチン /浴室乾燥機 /陽当り良好 /全居室収納 /駅まで平坦 /閑静な住宅地 /周辺交通量少なめ /整形地 /ミストサウナ /シャワー付洗面台 /対面式キッチン /セキュリティ充実 /バリアフリー /浴室1坪以上 /2階建 /南面バルコニー /複層ガラス /オートバス /温水洗浄便座 /床下収納 /浴室に窓 /TVモニタ付インターホン /通風良好 /全居室フローリング /食器洗乾燥機 /浄水器 /都市ガス /隣家との間隔が大きい /平坦地 /床暖房 | Event information イベント情報 | | Local guide Board (Please be sure to ask in advance) schedule / Every Saturday, Sunday and public holidays time / 10:00 ~ 17:00 ◆ "Frog House" Takatsuki Kitashowadai cho ◆ ◎ weekly, Saturday and Sunday local briefing session held in! ◎ Those who visit wish weekday, please contact us in advance. 072-693-0666 until! ~ Sale schedule ~ ◎ final sale ・ Please hurry 1 House your remaining. ◎ began "Frog House" building. ◎ model room, At any time guidance in (please contact us in advance)! 現地案内会(事前に必ずお問い合わせください)日程/毎週土日祝時間/10:00 ~ 17:00◆「カエルの家」高槻市北昭和台町◆◎毎週、土日現地説明会開催中!◎平日ご見学希望の方は事前にご連絡ください。072-693-0666迄! ~ 販売スケジュール ~ ◎最終分譲・残1邸お急ぎください。◎「カエルの家」建築開始しました。◎モデルルーム、随時ご案内中(事前にご連絡ください)! | Price 価格 | | 29,800,000 yen 2980万円 | Floor plan 間取り | | 3LDK 3LDK | Units sold 販売戸数 | | 1 units 1戸 | Total units 総戸数 | | 1 units 1戸 | Land area 土地面積 | | 83.26 sq m (25.18 tsubo) (Registration) 83.26m2(25.18坪)(登記) | Building area 建物面積 | | 76.5 sq m (23.14 tsubo) (Registration) 76.5m2(23.14坪)(登記) | Driveway burden-road 私道負担・道路 | | Nothing, North 5m width 無、北5m幅 | Completion date 完成時期(築年月) | | March 2014 2014年3月 | Address 住所 | | Osaka Takatsuki Kitashowadai cho 大阪府高槻市北昭和台町 | Traffic 交通 | | Hankyu Kyoto Line "Tomita" walk 8 minutes JR Tokaido Line "Tomita Settsu" walk 11 minutes Hankyu Kyoto Line "Sojiji Temple" walk 10 minutes 阪急京都線「富田」歩8分 JR東海道本線「摂津富田」歩11分 阪急京都線「総持寺」歩10分
| Related links 関連リンク | | [Related Sites of this company] 【この会社の関連サイト】 | Person in charge 担当者より | | Rep Yasuda Hiroshi 担当者安田 宏 | Contact お問い合せ先 | | Co., Ltd. Sun Life Home Service TEL: 0800-603-3454 [Toll free] mobile phone ・ Also available from PHS Caller ID is not notified Please contact the "saw SUUMO (Sumo)" If it does not lead, If the real estate company (株)サンライフホームサービスTEL:0800-603-3454【通話料無料】携帯電話・PHSからもご利用いただけます 発信者番号は通知されません 「SUUMO(スーモ)を見た」と問い合わせください つながらない方、不動産会社の方は
| Building coverage, floor area ratio 建ぺい率・容積率 | | Fifty percent ・ Hundred percent 50%・100% | Time residents 入居時期 | | Three months after the contract 契約後3ヶ月 | Land of the right form 土地の権利形態 | | Ownership 所有権 | Structure and method of construction 構造・工法 | | Wooden 2-story (framing method) 木造2階建(軸組工法) | Use district 用途地域 | | One low-rise 1種低層 | Overview and notices その他概要・特記事項 | | Contact: Yasuda Hiroshi, Facilities: Public Water Supply, This sewage, City gas, Building confirmation number: No. H25 confirmation architecture NDA No. 02926, Parking: car space 担当者:安田 宏、設備:公営水道、本下水、都市ガス、建築確認番号:第H25確認建築防大02926号、駐車場:カースペース | Company profile 会社概要 | | <Marketing alliance (agency)> Osaka governor (8) No. 026770 (Ltd.) Sun Life Home Services Yubinbango569-0814 Osaka Takatsuki Tomita-cho 2-1-21 <販売提携(代理)>大阪府知事(8)第026770号(株)サンライフホームサービス〒569-0814 大阪府高槻市富田町2-1-21 |
Local photos, including front road前面道路含む現地写真  Local Photos ~ It has decided completion of framework ~
現地写真 ~ 上棟いたしました ~
Local appearance photo現地外観写真  Model house photo ~ At any time you can guide you !! ~
モデルハウス写真 ~ 随時ご案内できます!! ~
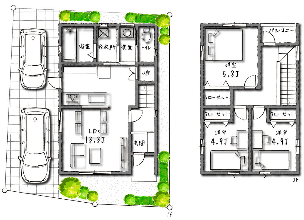
Floor plan間取り図  29,800,000 yen, 3LDK, Land area 83.26 sq m , Building area 76.5 sq m 3LDK + parking space two possible!
2980万円、3LDK、土地面積83.26m2、建物面積76.5m2 3LDK+駐車スペース2台可能!
Model house photoモデルハウス写真  Model house photo ~ At any time you can guide you !! ~
モデルハウス写真 ~ 随時ご案内できます!! ~
 Model house photo ~ At any time you can guide you !! ~
モデルハウス写真 ~ 随時ご案内できます!! ~
 Model house photo
モデルハウス写真
 Model house photo
モデルハウス写真
 Model house photo
モデルハウス写真
 Model house photo
モデルハウス写真
 Model house photo
モデルハウス写真
 Model house photo
モデルハウス写真
 Model house photo
モデルハウス写真
 Model house photo
モデルハウス写真
 Model house photo
モデルハウス写真
 Model house photo
モデルハウス写真
 Model house photo
モデルハウス写真
Shopping centreショッピングセンター  Gee You Daiei Settsu to Tomita shop 1152m gu Daiei Settsu Tomita shop
ジーユーダイエー摂津富田店まで1152m ジーユーダイエー摂津富田店
Junior high school中学校  Takatsuki Municipal fourth 1440m Takatsuki Municipal fourth junior high school until junior high school
高槻市立第四中学校まで1440m 高槻市立第四中学校
Primary school小学校  Until Takatsuki Municipal Akaoji Elementary School 563m Takatsuki Municipal Akaoji Elementary School
高槻市立赤大路小学校まで563m 高槻市立赤大路小学校
Station駅  Hankyu Kyoto Line "Tomita" 640m Hankyu Kyoto Line "Tomita" to the station station
阪急京都線「富田」駅まで640m 阪急京都線「富田」駅
 JR Kyoto Line to "Settsu Tomita" station 880m JR Kyoto Line "Settsu Tomita" station
JR京都線「摂津富田」駅まで880m JR京都線「摂津富田」駅
Presentプレゼント  "Frog House" campaign held in! To customers who gave visit us, "Frog House" original goodies for free! Our original character (frog ~ Rukun ・ Frogs ~ Ruchan) towel!
「カエルの家」キャンペーン開催中!ご来店頂きましたお客様に、「カエルの家」オリジナルグッツプレゼント中!当社オリジナルキャラクター(カエ ~ ルくん・カエ ~ ルちゃん)タオル!
You will receive this brochureこんなパンフレットが届きます  This brochure will receive! JOIN NOW document request!
こちらのパンフレットが届きます!今すぐ資料請求しよう!
Location
|