New Homes » Kansai » Osaka prefecture » Takatsuki
 
| | Osaka Takatsuki 大阪府高槻市 |
| Hankyu Kyoto Line "Tomita" walk 26 minutes 阪急京都線「富田」歩26分 |
| ■ Limited 1 subdivisions ■ ■ Fulfill freely slow life, A quiet residential area! ■ Front road sidewalk also been developed, It is safe for small children! ■ Bright house of all rooms dihedral daylighting! ■限定1区画分譲■■のびのびスローライフを叶える、閑静な住宅地!■前面道路は歩道も整備され、小さなお子様にも安心です!■全室2面採光の明るい住まい! |
| [Housing exhibition fair - & Remodeling Fair -] ◆ Also held this year! ◆ January 11 (Sat) ~ 13 days (holiday) is, Happy privilege full of 3 days ☆ ・ I want to know now the "consumption tax increase and loan deduction", Individual consultations free of charge to the experts ・ Listing also Hokusetsu simultaneously exhibited 1,100! ・ Balloon art and also present plan Why do not you find the fun house? ■ It is also a comfortable happy to every day of your laundry in the south balcony! ■ 15 Pledge space spacious living room to gather natural and your family of! ■ Low-e pair glass is standard specification! ! ■ I excellent storage capacity of the walk-in closet is attractive! ■ Face-to-face kitchen adopted that can dishes while watching the children play in the living room! ■ With big success bathroom dryer in your laundry on a rainy day! ! 【住宅展示フェア―&リフォームフェア―】◆今年も開催!◆1月11日(土) ~ 13日(祝)は、嬉しい特典いっぱいの3日間☆・今知っておきたい「消費増税やローン控除」を、専門家に無料で個別相談・物件情報も北摂1100件を一斉展示!・バルーンアートやプレゼント企画も 楽しく住まい探しをしませんか?■南バルコニーで毎日のお洗濯もラクラク快適です!■15帖の広々リビングは自然とご家族が集まる空間!■Low-eペアガラスが標準仕様!!■収納力抜群のウォークインクロゼットが魅力ですね!■リビングで遊ぶお子様を見守りながらお料理ができる対面キッチン採用!■雨の日のお洗濯にも大活躍な浴室乾燥機付!! |
Features pickup 特徴ピックアップ | | Corresponding to the flat-35S / Parking two Allowed / 2 along the line more accessible / Super close / Bathroom Dryer / Yang per good / All room storage / LDK15 tatami mats or more / Around traffic fewer / Japanese-style room / Shaping land / Face-to-face kitchen / Toilet 2 places / Bathroom 1 tsubo or more / 2-story / 2 or more sides balcony / Southeast direction / South balcony / Double-glazing / Underfloor Storage / The window in the bathroom / Ventilation good / Walk-in closet / All room 6 tatami mats or more / City gas / Maintained sidewalk / Flat terrain / Readjustment land within フラット35Sに対応 /駐車2台可 /2沿線以上利用可 /スーパーが近い /浴室乾燥機 /陽当り良好 /全居室収納 /LDK15畳以上 /周辺交通量少なめ /和室 /整形地 /対面式キッチン /トイレ2ヶ所 /浴室1坪以上 /2階建 /2面以上バルコニー /東南向き /南面バルコニー /複層ガラス /床下収納 /浴室に窓 /通風良好 /ウォークインクロゼット /全居室6畳以上 /都市ガス /整備された歩道 /平坦地 /区画整理地内 | Price 価格 | | 34,800,000 yen 3480万円 | Floor plan 間取り | | 4LDK 4LDK | Units sold 販売戸数 | | 1 units 1戸 | Land area 土地面積 | | 100 sq m (30.24 tsubo) (Registration) 100m2(30.24坪)(登記) | Building area 建物面積 | | 94.77 sq m (28.66 tsubo) (Registration) 94.77m2(28.66坪)(登記) | Driveway burden-road 私道負担・道路 | | Nothing, East 4.7m width (contact the road width 6.3m) 無、東4.7m幅(接道幅6.3m) | Completion date 完成時期(築年月) | | February 2014 2014年2月 | Address 住所 | | Osaka Takatsuki Kawazoe 2 大阪府高槻市川添2 | Traffic 交通 | | Hankyu Kyoto Line "Tomita" walk 26 minutes JR Tokaido Line "Tomita Settsu" walk 30 minutes Hankyu Kyoto Line "Tomita" 10 minutes Tomita estate center walk 5 minutes by bus 阪急京都線「富田」歩26分 JR東海道本線「摂津富田」歩30分 阪急京都線「富田」バス10分富田団地中央歩5分
| Related links 関連リンク | | [Related Sites of this company] 【この会社の関連サイト】 | Person in charge 担当者より | | Rep Murata Can you like to say that it was good asked to Tatsuya Murata, I will do my best in everything. 担当者村田 達也村田に頼んでよかったと言っていただけますよう、全力で頑張ります。 | Contact お問い合せ先 | | TEL: 0800-603-2288 [Toll free] mobile phone ・ Also available from PHS Caller ID is not notified Please contact the "saw SUUMO (Sumo)" If it does not lead, If the real estate company TEL:0800-603-2288【通話料無料】携帯電話・PHSからもご利用いただけます 発信者番号は通知されません 「SUUMO(スーモ)を見た」と問い合わせください つながらない方、不動産会社の方は
| Building coverage, floor area ratio 建ぺい率・容積率 | | 60% ・ 200% 60%・200% | Time residents 入居時期 | | February 2014 schedule 2014年2月予定 | Land of the right form 土地の権利形態 | | Ownership 所有権 | Structure and method of construction 構造・工法 | | Wooden 2-story 木造2階建 | Use district 用途地域 | | One middle and high 1種中高 | Overview and notices その他概要・特記事項 | | Contact: Murata Tatsuya, Facilities: Public Water Supply, This sewage, City gas, Building confirmation number: No. Trust 13-3617, Parking: car space 担当者:村田 達也、設備:公営水道、本下水、都市ガス、建築確認番号:第トラスト13-3617号、駐車場:カースペース | Company profile 会社概要 | | <Mediation> governor of Osaka (10) No. 021564 (Ltd.) Mishima Corporation Tomita shop Yubinbango569-1144 Osaka Takatsuki Ohata-cho, 3-5 <仲介>大阪府知事(10)第021564号(株)三島コーポレーション富田店〒569-1144 大阪府高槻市大畑町3-5 |
Model house photoモデルハウス写真  Model house is located in close!
モデルハウスが近くにございます!
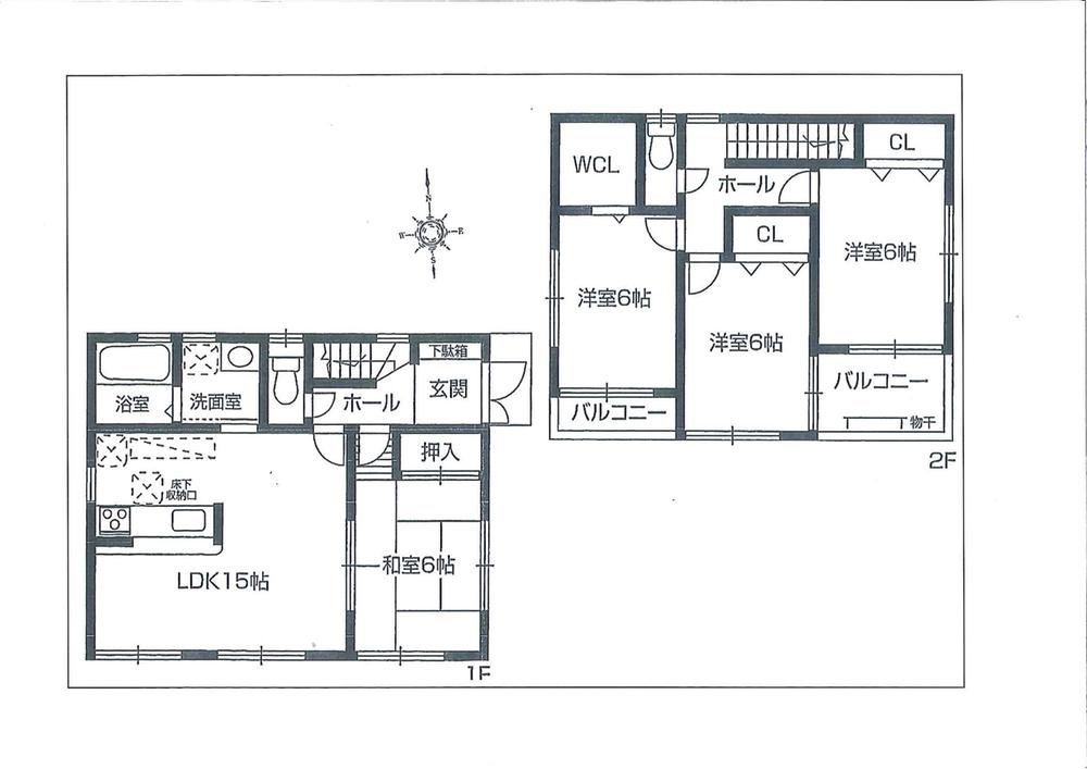
Floor plan間取り図  34,800,000 yen, 4LDK, Land area 100 sq m , Building area 94.77 sq m
3480万円、4LDK、土地面積100m2、建物面積94.77m2
 Local appearance photo
現地外観写真
 Local appearance photo
現地外観写真
 Same specifications photos (living)
同仕様写真(リビング)
 Local photos, including front road
前面道路含む現地写真
Supermarketスーパー  136m to Friend Mart Takatsuki Kawazoe shop
フレンドマート高槻川添店まで136m
Model house photoモデルハウス写真  Model house
モデルハウス
 Local appearance photo
現地外観写真
Supermarketスーパー  271m to Hankyu Oasis Tomita shop
阪急オアシス富田店まで271m
Junior high school中学校  686m to Takatsuki Municipal Yanagawa junior high school
高槻市立柳川中学校まで686m
Primary school小学校  639m to Takatsuki Municipal lawn Elementary School
高槻市立芝生小学校まで639m
Hospital病院  1492m until the medical corporation Yong love meeting Tomita-cho hospital
医療法人庸愛会富田町病院まで1492m
 Medical Corporation Sen'yokai Hokusetsu 1428m to General Hospital
医療法人仙養会北摂総合病院まで1428m
Post office郵便局  Takatsuki Kawazoe 217m to the post office
高槻川添郵便局まで217m
Bank銀行  Settsu Suitoshin'yokinko Kawazoe to the branch 160m
摂津水都信用金庫川添支店まで160m
 289m to Bank of Kyoto Takatsuki south branch
京都銀行高槻南支店まで289m
You will receive this brochureこんなパンフレットが届きます  This brochure will receive! JOIN NOW document request!
こちらのパンフレットが届きます!今すぐ資料請求しよう!
Location
|