New Homes » Kyushu » Saga Prefecture » Tosu
 
| | Saga Tosu 佐賀県鳥栖市 |
| JR Nagasaki Main Line "Shin Tosu" walk 18 minutes JR長崎本線「新鳥栖」歩18分 |
| Completed in the popular residential area of Provence-style house is Tosu Zojo 1-chome, Sale! Homeland ・ Aging beauty of the home series (Swiss made plaster finish on the outer wall material, The roof is unglazed S-shaped tile specification) 南仏プロヴァンス風住宅が鳥栖市蔵上1丁目の人気住宅地に完成、販売中!ホームランド・経年美の家シリーズ(外壁材にスイス製漆喰仕上げ、屋根は素焼きS字瓦仕様) |
| ■ It adopted a House guard system with more than 100 years of durability performance, Furthermore basis of high-strength, The structure material 4 cun high specific gravity of the small country brand cedar, Further beam adopted more than 60 years old. ■ Insulation is high-performance glass wool, Sash resin Peasasshi (Low-E glass specification), The room has air-tight sheet construction. (Ordinance of the Ministry of quasi-fireproof specification) ■ As energy-saving housing, All-electric, Cute adoption ■ For a comfortable living environment, Commitment to natural materials, Indoor wooden joinery, Flooring is solid pine (the first floor is the French production width 220mm, Second floor 110mm), Specifications environmental cross to wallpaper. Also it has specifications natural paints (Osmo) coating material. ■100年以上の耐久性能を持つハウスガードシステムを採用し、 さらに高強度の基礎、構造材には4寸高比重の小国ブランド杉、 さらに梁は樹齢60年以上のものを採用。■断熱材は高性能グラスウール、サッシは樹脂ペアサッシ(Low-Eガラス仕様)、 室内は気密シート施工しています。(省令準耐火仕様)■省エネ住宅として、オール電化、エコキュート採用■快適な住環境の為に、自然素材にこだわり、室内木製建具、 フローリングは無垢パイン材(1階はフランス産巾220mm、2階110mm)、 壁紙に環境クロスを仕様。塗装材も自然塗料(オスモ)を仕様しています。 |
Features pickup 特徴ピックアップ | | Measures to conserve energy / Long-term high-quality housing / Corresponding to the flat-35S / Airtight high insulated houses / Pre-ground survey / Seismic fit / Parking three or more possible / Immediate Available / 2 along the line more accessible / LDK20 tatami mats or more / Land 50 square meters or more / Energy-saving water heaters / It is close to golf course / It is close to the city / Facing south / System kitchen / Yang per good / All room storage / Flat to the station / A quiet residential area / Around traffic fewer / Or more before road 6m / Corner lot / Shaping land / Garden more than 10 square meters / garden / Washbasin with shower / Face-to-face kitchen / Barrier-free / Toilet 2 places / Natural materials / Bathroom 1 tsubo or more / 2-story / South balcony / Double-glazing / Warm water washing toilet seat / Nantei / The window in the bathroom / Atrium / High-function toilet / Leafy residential area / Urban neighborhood / Mu front building / Ventilation good / All living room flooring / IH cooking heater / Walk-in closet / Or more ceiling height 2.5m / Living stairs / All-electric / Storeroom / All rooms are two-sided lighting / BS ・ CS ・ CATV / In a large town / Flat terrain / Development subdivision in / terrace / Readjustment land within 省エネルギー対策 /長期優良住宅 /フラット35Sに対応 /高気密高断熱住宅 /地盤調査済 /耐震適合 /駐車3台以上可 /即入居可 /2沿線以上利用可 /LDK20畳以上 /土地50坪以上 /省エネ給湯器 /ゴルフ場が近い /市街地が近い /南向き /システムキッチン /陽当り良好 /全居室収納 /駅まで平坦 /閑静な住宅地 /周辺交通量少なめ /前道6m以上 /角地 /整形地 /庭10坪以上 /庭 /シャワー付洗面台 /対面式キッチン /バリアフリー /トイレ2ヶ所 /自然素材 /浴室1坪以上 /2階建 /南面バルコニー /複層ガラス /温水洗浄便座 /南庭 /浴室に窓 /吹抜け /高機能トイレ /緑豊かな住宅地 /都市近郊 /前面棟無 /通風良好 /全居室フローリング /IHクッキングヒーター /ウォークインクロゼット /天井高2.5m以上 /リビング階段 /オール電化 /納戸 /全室2面採光 /BS・CS・CATV /大型タウン内 /平坦地 /開発分譲地内 /テラス /区画整理地内 | Event information イベント情報 | | (Please be sure to ask in advance) time / 11:00 ~ 16:00 building can be your tour. If you can contact us in advance, Since it will be time adjustment, Thank you. Property personnel : Baba mobile phone number : 090-5487-8732 (事前に必ずお問い合わせください)時間/11:00 ~ 16:00建物内ご見学可能です。事前にご連絡いただければ、時間調整させていただきますので、宜しくお願い致します。物件担当者 : 馬場携帯番号 : 090-5487-8732 | Property name 物件名 | | Provence-style house "Aged beauty of the house." プロヴァンス風住宅 「経年美の家」 | Price 価格 | | 35,800,000 yen 3580万円 | Floor plan 間取り | | 4LDK + S (storeroom) 4LDK+S(納戸) | Units sold 販売戸数 | | 1 units 1戸 | Land area 土地面積 | | 265.53 sq m (registration) 265.53m2(登記) | Building area 建物面積 | | 117.03 sq m (registration) 117.03m2(登記) | Driveway burden-road 私道負担・道路 | | Nothing, East 6m width (contact the road width 24m), North 6m width (contact the road width 9.3m) 無、東6m幅(接道幅24m)、北6m幅(接道幅9.3m) | Completion date 完成時期(築年月) | | September 2013 2013年9月 | Address 住所 | | Saga Tosu Zojo 1-121-8 佐賀県鳥栖市蔵上1-121-8 | Traffic 交通 | | JR Nagasaki Main Line "Shin Tosu" walk 18 minutes Nishitetsu "on top of the warehouse" walk 3 minutes JR Kagoshima Main Line "Tosu" walk 31 minutes JR長崎本線「新鳥栖」歩18分 西鉄バス「蔵の上」歩3分JR鹿児島本線「鳥栖」歩31分
| Related links 関連リンク | | [Related Sites of this company] 【この会社の関連サイト】 | Contact お問い合せ先 | | Co., Ltd. Home Land TEL: 092-724-9133 Please inquire as "saw SUUMO (Sumo)" (株)ホームランドTEL:092-724-9133「SUUMO(スーモ)を見た」と問い合わせください | Building coverage, floor area ratio 建ぺい率・容積率 | | 60% ・ 200% 60%・200% | Time residents 入居時期 | | Immediate available 即入居可 | Land of the right form 土地の権利形態 | | Ownership 所有権 | Structure and method of construction 構造・工法 | | Wooden 2-story (framing method) 木造2階建(軸組工法) | Construction 施工 | | Co., Ltd. Home Land (株)ホームランド | Use district 用途地域 | | One dwelling 1種住居 | Overview and notices その他概要・特記事項 | | Facilities: Public Water Supply, This sewage, All-electric, Building confirmation number: ERI, Parking: car space 設備:公営水道、本下水、オール電化、建築確認番号:ERI、駐車場:カースペース | Company profile 会社概要 | | <Mediation> Governor of Fukuoka Prefecture (5) No. 012824 (Ltd.) Home land Yubinbango810-0022 Fukuoka Chuo-ku, Fukuoka City Yakuin 2-4-15 <仲介>福岡県知事(5)第012824号(株)ホームランド〒810-0022 福岡県福岡市中央区薬院2-4-15 |
Outer wall and roof appearance after the passage of years and the performance, Appearance that combines both. The outer wall calc wall finish (made by Switzerland), Entrance around the stone-clad, The roof is Esupanika (unglazed S-shaped tile) is a specification.外壁や屋根は性能と経過年数後の見栄え、両方を兼ね備えた外観。外壁はカルクウォール仕上げ(スイス製)、玄関周りは石張り、屋根はエスパニカ(素焼きS字瓦)仕様です。  Outer wall and roof appearance after the passage of years and the performance, Appearance that combines both.
外壁や屋根は性能と経過年数後の見栄え、両方を兼ね備えた外観。
 Bright, Wide 22 Pledge of LDK. Colonnade also there to, There is also a feeling of freedom. (Atrium area 11.06 sq m) Island ・ The kitchen is now, It is a popular style. Also in the home party in terms of good family!
明るくて、広い22帖のLDK。吹き抜けもあって、解放感もあります。(吹き抜け面積11.06m2)アイランド・キッチンは今、人気のスタイルです。仲の良いご家族でホームパーティーでも!
Wash basin, toilet洗面台・洗面所  Home Land original vanity. All are handmade order item.
ホームランドオリジナル洗面化粧台。すべて手作りオーダー商品です。
Livingリビング  Specifications solid pine of width 220mm in flooring, Joinery, Baseboards also stuck to the wooden innocence. Paint has specifications Osmo of natural paints.
床材に幅220mmの無垢パイン材を仕様、建具、巾木も木製無垢にこだわっています。塗料は自然塗料のオスモを仕様しています。
Kitchenキッチン  Pure white of the home land ・ Original Kitchen.
真っ白のホームランド・オリジナルキッチン。
Otherその他  Living door direction from the hallway. Corridor of arch ceiling exudes a stylish space. December 2013 shooting
廊下からリビング扉方向。廊下のアーチ天井がお洒落な空間をかもし出しています。2013年12月撮影
Bathroom浴室  1717 TOTO unit bus. With high thermal insulation, The new hot Karari floor, Thermos bathtub. TOTO is a new product.
1717のTOTOユニットバス。高断熱で、新型ほっカラり床、魔法瓶浴槽。TOTO新商品です。
Otherその他  Homeland ・ Original iron handrail, Living can be seen from the second floor hallway.
ホームランド・オリジナルアイアン手すり、2階廊下からリビングが見えます。
 Watering plug of external garden. Tap one to Good specification. December 2013 shooting
外部庭の散水栓。蛇口一つまでこだわり仕様。2013年12月撮影
 Wooden living room door of the large opening.
大きな開口の木製リビングドア。
 Living door direction from the hallway. Corridor of arch ceiling exudes a stylish space.
廊下からリビング扉方向。廊下のアーチ天井がお洒落な空間をかもし出しています。
Receipt収納  Entrance next to a storage space. Free door is cute. Entrance around is also refreshing in this front door storage.
玄関横の収納スペースです。フリー扉がかわいいです。この玄関収納で玄関周りもすっきりです。
Otherその他  Atrium part of living top. To keep the temperature of the room constant at ceiling fan. It is essential to the highly insulated airtight house.
リビング上部の吹き抜け部分。シーリングファンで室内の温度を一定に保ちます。高断熱高気密の住宅には必需品ですね。
 The window of the sash frame around has become the specifications of warmth in the wooden.
窓のサッシ枠周りは木製で暖か味のある仕様になっています。
 Original stained window.
オリジナルステンド窓。
 Window portion of southern France Provence-style. Windows all, This resin Peasasshi. Also specification Low-E glass.
南仏プロバンス風の窓部。窓は全て、樹脂ペアサッシです。またLow-Eガラスを仕様しています。
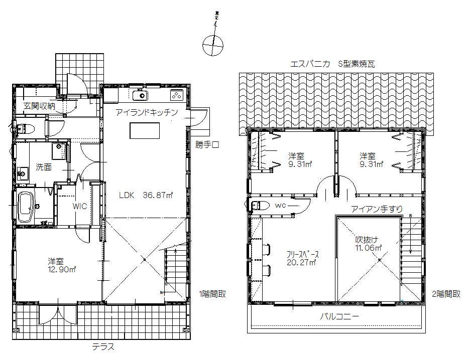
Floor plan間取り図  35,800,000 yen, 4LDK + S (storeroom), Land area 265.53 sq m , And the building area 117.03 sq m atrium, Release and bright Mato with corridor. LDK's 22 quires large spacious and bright space. Place a multi-purpose space is on the second floor. While the whole family is feeling the sign, It is taken while the living can. It made many further storage.
3580万円、4LDK+S(納戸)、土地面積265.53m2、建物面積117.03m2 吹き抜けと、回廊のある解放的で明るい間取。LDKは22帖大の広々とした明るいスペース。2階には多目的スペースを配置。家族みんなが気配を感じながら、生活出来る間取です。さらに収納も多く造っています。
Construction ・ Construction method ・ specification構造・工法・仕様  House guard will use the "green pillars". "Green pillar" is termiticide in domestic timber, Preservative, Dimensional stabilizer was pressure injected, It has achieved a long-lasting of the house. It can be semi-permanently maintain the seismic performance of the wooden house. For more information, House guard Green pillars In search!
ハウスガードは『緑の柱』を使います。『緑の柱』は国産材に防蟻剤、防腐剤、寸法安定剤を加圧注入し、長持ちの家を実現しました。木造住宅の耐震性能を半永久的に維持する事が出来ます。詳しくは、ハウスガード 緑の柱 で検索!
 In structural materials, Use a small country brand cedar 4 cun high specific gravity. The Company has adopted more than 60 years old.
構造材に、4寸高比重の小国ブランド杉を使用。当社は樹齢60年以上のものを採用しています。
Other Equipmentその他設備  The vanity of attention, We are using the import wash bowl.
こだわりの洗面化粧台には、輸入洗面ボウルを使用しています。
 TOTO Bidet installed an integral toilet GG800. TOTO ultra water-saving cleaning in their own "Twin tornado wash". A high-performance integrated toilet, Toilet space is also refreshing, Clean.
TOTO ウォシュレット一体型トイレGG800を設置。TOTO独自の『ツイントルネード洗浄』で超節水洗浄を実現。高性能一体型トイレで、トイレ空間もスッキリ、清潔です。
 1717 size TOTO It is the unit bus sazana. Hot Karari floor, Thermos bathtub, Full air-in shower and features. New commodity.
1717サイズTOTO sazanaのユニットバスです。ほっカラリ床、魔法びん浴槽、エアーインシャワーと機能満載。新商品です。
Power generation ・ Hot water equipment発電・温水設備  Panasonic Full Auto ・ Adopted EcoCute
パナソニック フルオート・エコキュートを採用
Other Equipmentその他設備  Heat-resistant, Excellent chemical resistance, Crystal surface sink made of (high hardness artificial marble). Functional, It is a sink of sophisticated square form.
耐熱性、耐薬品性に優れた、クリスタルサーフェイス(高硬度人工大理石)で作られたシンク。機能的で、洗練されたスクエアフォルムのシンクです。
 Homeland ・ Original Iron various. Also stair handrail, etc. this time ・ ・ We use everywhere. Do not create your own original Iron? , Please visit our website.
ホームランド・オリジナルアイアン各種。今回も階段手すり等・・随所に使用しています。貴方だけのオリジナルアイアンを作りませんか?詳しくは、当社ホームページをご覧下さい。
Location
|