2014February
34,800,000 yen, 4LDK, 103.5 sq m
New Homes » Kanto » Saitama » Ageo
 
| | Saitama Prefecture Ageo 埼玉県上尾市 |
| JR Takasaki Line "Ageo" walk 14 minutes JR高崎線「上尾」歩14分 |
Price 価格 | | 34,800,000 yen 3480万円 | Floor plan 間取り | | 4LDK 4LDK | Units sold 販売戸数 | | 1 units 1戸 | Land area 土地面積 | | 119.08 sq m (measured) 119.08m2(実測) | Building area 建物面積 | | 103.5 sq m (measured) 103.5m2(実測) | Driveway burden-road 私道負担・道路 | | 7.59 sq m 7.59m2 | Completion date 完成時期(築年月) | | February 2014 2014年2月 | Address 住所 | | Saitama Prefecture Ageo Atago 3 埼玉県上尾市愛宕3 | Traffic 交通 | | JR Takasaki Line "Ageo" walk 14 minutes JR高崎線「上尾」歩14分
| Contact お問い合せ先 | | TEL: 0800-805-6288 [Toll free] mobile phone ・ Also available from PHS Caller ID is not notified Please contact the "saw SUUMO (Sumo)" If it does not lead, If the real estate company TEL:0800-805-6288【通話料無料】携帯電話・PHSからもご利用いただけます 発信者番号は通知されません 「SUUMO(スーモ)を見た」と問い合わせください つながらない方、不動産会社の方は
| Building coverage, floor area ratio 建ぺい率・容積率 | | 60% ・ 160% 60%・160% | Time residents 入居時期 | | Consultation 相談 | Land of the right form 土地の権利形態 | | Ownership 所有権 | Structure and method of construction 構造・工法 | | Wooden 2-story 木造2階建 | Use district 用途地域 | | Two dwellings, One dwelling 2種住居、1種住居 | Overview and notices その他概要・特記事項 | | Facilities: Public Water Supply, This sewage, Individual LPG, Building confirmation number: No. 01932, Parking: No 設備:公営水道、本下水、個別LPG、建築確認番号:01932号、駐車場:無 | Company profile 会社概要 | | <Mediation> Minister of Land, Infrastructure and Transport (3) The 006,183 No. housing Information Center Ageo store Seongnam Construction (Ltd.) Yubinbango362-0032 Saitama Prefecture Ageo sunrise 1-9-5 <仲介>国土交通大臣(3)第006183号住宅情報館 上尾店城南建設(株)〒362-0032 埼玉県上尾市日の出1-9-5 |
Local appearance photo現地外観写真  5 Building appearance
5号棟 外観
 I finished I look forward to.
完成が楽しみですね。
 Local Photos
現地写真
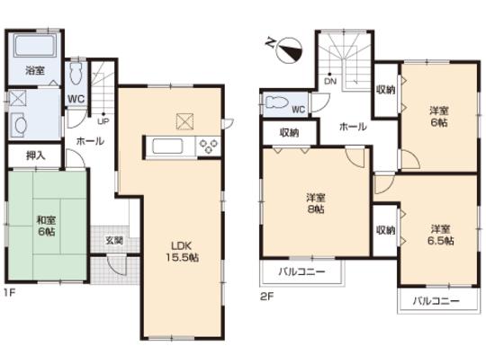
Floor plan間取り図  34,800,000 yen, 4LDK, Land area 119.08 sq m , Building area 103.5 sq m floor plan
3480万円、4LDK、土地面積119.08m2、建物面積103.5m2 間取り図
Local appearance photo現地外観写真  Local Photos
現地写真
Local photos, including front road前面道路含む現地写真  Frontal road
前面道路
Location
|