New Homes » Kanto » Saitama » Ageo
 
| | Saitama Prefecture Ageo 埼玉県上尾市 |
| JR Takasaki Line "Ageo" before walking 6 minutes of the bus 6 Bunhara JR高崎線「上尾」バス6分原の前歩6分 |
| ☆ JR Takasaki Line "Ageo" 6 minutes by bus from the station! All seven buildings of new construction condominiums! Super near shopping convenient living environment! Inquiry to toll-free 0800-800-8557! ☆JR高崎線「上尾」駅からバス6分!全7棟の新築分譲住宅!スーパー近く買い物便利な住環境!お問合せはフリーダイヤル0800-800-8557まで! |
| ◆ Bright floor plan of all rooms two-sided lighting ◆ Face-to-face kitchen can feel your family close ◆ Spacious living space with all the living room storage space ◆ Every day of your laundry happy comfortable in the south balcony ◆ Washbasin with shower to change the living comfortable ◆全室2面採光の明るい間取り◆ご家族を近くに感じられる対面キッチン◆全居室収納スペース付で広々住空間◆南バルコニーで毎日のお洗濯もラクラク快適◆暮らしを快適に変えるシャワー付洗面台 |
Features pickup 特徴ピックアップ | | Design house performance with evaluation / Corresponding to the flat-35S / Energy-saving water heaters / Super close / System kitchen / All room storage / LDK15 tatami mats or more / Washbasin with shower / Face-to-face kitchen / South balcony / Double-glazing / Warm water washing toilet seat / Nantei / Underfloor Storage / The window in the bathroom / All living room flooring / City gas / All rooms are two-sided lighting 設計住宅性能評価付 /フラット35Sに対応 /省エネ給湯器 /スーパーが近い /システムキッチン /全居室収納 /LDK15畳以上 /シャワー付洗面台 /対面式キッチン /南面バルコニー /複層ガラス /温水洗浄便座 /南庭 /床下収納 /浴室に窓 /全居室フローリング /都市ガス /全室2面採光 | Price 価格 | | 19,800,000 yen 1980万円 | Floor plan 間取り | | 4LDK 4LDK | Units sold 販売戸数 | | 1 units 1戸 | Total units 総戸数 | | 7 units 7戸 | Land area 土地面積 | | 114.46 sq m (34.62 tsubo) (measured), Alley-like portion: 25 sq m including 114.46m2(34.62坪)(実測)、路地状部分:25m2含 | Building area 建物面積 | | 93.98 sq m (28.42 tsubo) (measured) 93.98m2(28.42坪)(実測) | Driveway burden-road 私道負担・道路 | | Nothing, Northeast 4.3m width 無、北東4.3m幅 | Completion date 完成時期(築年月) | | February 2014 2014年2月 | Address 住所 | | Saitama Prefecture Ageo Oaza Hiratsuka 埼玉県上尾市大字平塚 | Traffic 交通 | | JR Takasaki Line "Ageo" before walking 6 minutes of the bus 6 Bunhara JR高崎線「上尾」バス6分原の前歩6分
| Related links 関連リンク | | [Related Sites of this company] 【この会社の関連サイト】 | Person in charge 担当者より | | [Regarding this property.] ☆ JR Takasaki Line "Ageo" 6 minutes by bus from the station! All seven buildings of new construction condominiums! Super near shopping convenient living environment! Free dial [0800-800-8557] Please feel free to contact us to! 【この物件について】☆JR高崎線「上尾」駅からバス6分!全7棟の新築分譲住宅!スーパー近く買い物便利な住環境!フリーダイヤル【0800-800-8557】までお気軽にお問合わせください! | Contact お問い合せ先 | | TEL: 0800-8008557 [Toll free] Please contact the "saw SUUMO (Sumo)" TEL:0800-8008557【通話料無料】「SUUMO(スーモ)を見た」と問い合わせください | Building coverage, floor area ratio 建ぺい率・容積率 | | 60% ・ 200% 60%・200% | Time residents 入居時期 | | February 2014 schedule 2014年2月予定 | Land of the right form 土地の権利形態 | | Ownership 所有権 | Structure and method of construction 構造・工法 | | Wooden 2-story 木造2階建 | Use district 用途地域 | | Semi-industrial 準工業 | Overview and notices その他概要・特記事項 | | Facilities: Public Water Supply, This sewage, City gas, Building confirmation number: No. HPA-13-06963-1, Parking: car space 設備:公営水道、本下水、都市ガス、建築確認番号:第HPA-13-06963-1号、駐車場:カースペース | Company profile 会社概要 | | <Mediation> Saitama Governor (2) No. 021094 (Ltd.) Eidai House Omiya Yubinbango330-0854 Saitama Omiya-ku Sakuragicho 4-213 <仲介>埼玉県知事(2)第021094号(株)永大ハウス大宮店〒330-0854 埼玉県さいたま市大宮区桜木町4-213 |
Local appearance photo現地外観写真  F Building
F号棟
 Local photos, including front road
前面道路含む現地写真
Floor plan間取り図  19,800,000 yen, 4LDK, Land area 114.46 sq m , Building area 93.98 sq m F Building
1980万円、4LDK、土地面積114.46m2、建物面積93.98m2 F号棟
Primary school小学校  Elementary school to 1040m Ageo Tatsuhigashi Elementary School
小学校まで1040m 上尾市立東小学校
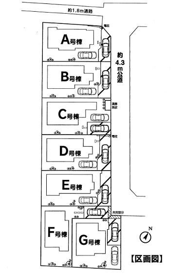
Compartment figure区画図  19,800,000 yen, 4LDK, Land area 114.46 sq m , Building area 93.98 sq m
1980万円、4LDK、土地面積114.46m2、建物面積93.98m2
Junior high school中学校  1200m up to junior high school in Ageo Tatsuhigashi junior high school
中学校まで1200m 上尾市立東中学校
Other Environmental Photoその他環境写真  To other environment photo 2190m JR Takasaki Line "Ageo" station
その他環境写真まで2190m JR高崎線「上尾」駅
Location
|