New Homes » Kanto » Saitama » Asaka
 
| | Saitama Prefecture Asaka 埼玉県朝霞市 |
| Tobu Tojo Line "Asakadai" walk 9 minutes 東武東上線「朝霞台」歩9分 |
| ☆ Asakadai newly built single-family walk 9 minutes ☆ ☆ durability, Earthquake-proof, Breathable 3 meter uniform prime properties! Iris River near, Living environment is also good ☆ ☆朝霞台 新築戸建 徒歩9分☆☆耐久性、耐震性、通気性 3拍子揃った優良物件!黒目川近く、住環境も良好☆ |
| ■ 2-story ・ There 4LDK plan! ! ! ■ 2 Station Available. Conveniently close living facilities in 9 minutes station walk! ■ Access to Tokyo good (direct to Ikebukuro 17 minutes, Direct to Sanchome 33 minutes, Direct links to Shibuya 38 minutes) ■ Popular counter kitchen, Warm water washing toilet seat, Also equipped with wash basin with shower ☆ ■ Walk also of fun 4-minute walk from the iris River ■ Storage space by all means once enhancement, In fact please visit! ■2階建・4LDKプランあり!!!■2駅利用可。駅徒歩9分で生活施設も近くて便利!■都内へのアクセス良好(池袋へ直通17分、新宿三丁目へ直通33分、渋谷へ直通38分)■人気のカウンターキッチン、温水洗浄便座、シャワー付き洗面台も完備☆■散歩も楽しい徒歩4分の黒目川■充実の収納スペース是非一度、実際にご覧ください! |
Features pickup 特徴ピックアップ | | 2 along the line more accessible / Super close / It is close to the city / System kitchen / Bathroom Dryer / Yang per good / Flat to the station / LDK15 tatami mats or more / Corner lot / Japanese-style room / Shaping land / Washbasin with shower / Face-to-face kitchen / Security enhancement / Barrier-free / Toilet 2 places / Bathroom 1 tsubo or more / 2-story / 2 or more sides balcony / Warm water washing toilet seat / TV monitor interphone / High-function toilet / Walk-in closet / Water filter / Storeroom 2沿線以上利用可 /スーパーが近い /市街地が近い /システムキッチン /浴室乾燥機 /陽当り良好 /駅まで平坦 /LDK15畳以上 /角地 /和室 /整形地 /シャワー付洗面台 /対面式キッチン /セキュリティ充実 /バリアフリー /トイレ2ヶ所 /浴室1坪以上 /2階建 /2面以上バルコニー /温水洗浄便座 /TVモニタ付インターホン /高機能トイレ /ウォークインクロゼット /浄水器 /納戸 | Event information イベント情報 | | Local tour dates / Every Saturday, Sunday and public holidays time / 10:00 ~ 18:00 ☆ December 19 ~ Until January 10, Local guidance will become a wholly appointment ☆ ↓↓↓↓↓↓↓↓↓↓↓↓ inquiry here free dial 0120-877-977 Contact :( stock) Aix Dream real estate Please feel free to call us Ikeda! January 11, 2016 from (Saturday), We will resume the local sales meetings ☆ ↓↓↓↓↓↓↓↓↓↓↓↓ local sales meeting schedule / January 11 (Sat), 12 (Sunday), 13 days (month) time / 10:00 ~ 18:00 free dial 0120-877-977 ◆ ◆ Under construction End of the year scheduled for completion ◆ ◆ Our staff will be happy to guide you through the details of the listing panel, etc. scheduled for completion Figure! Loans, It also offers consultation of financial planning ☆ Anxious thing., Please contact us anything do not hesitate. If there is a pre-booking should be noted that visit us in the smooth everyone, Contact us We look forward to the staff concentric. Contact :( stock) Aix Dream real estate Ikeda 現地見学会日程/毎週土日祝時間/10:00 ~ 18:00☆12月19日 ~ 1月10日まで、現地ご案内は完全予約制となります☆↓↓↓↓↓↓↓↓↓↓↓↓お問合せはコチラフリーダイアル 0120-877-977問い合わせ先:(株)エクスドリーム不動産 池田お気軽にお電話ください!2016年1月11日(土)より、現地販売会を再開いたします☆↓↓↓↓↓↓↓↓↓↓↓↓現地販売会日程/1月11日(土)、12日(日)、13日(月)時間/10:00 ~ 18:00フリーダイアル 0120-877-977◆◆建設中 年内完成予定◆◆弊社のスタッフが完成予定図のパネル等で物件の詳細内容をご案内させていただきます!ローン等、資金計画のご相談も承っております☆気になる事は、何でもお気軽にお問合せくださいませ。事前のご予約があれば尚スムーズです皆様のご来店、お問い合わせをスタッフ一同心よりお待ちしております。問い合わせ先:(株)エクスドリーム不動産 池田 | Property name 物件名 | | Libre Garden. ・ Hamasaki Phase II リーブルガーデン.S 朝霞・浜崎 第II期 | Price 価格 | | 39,800,000 yen ~ 43,800,000 yen 3980万円 ~ 4380万円 | Floor plan 間取り | | 4LDK 4LDK | Units sold 販売戸数 | | 6 units 6戸 | Total units 総戸数 | | 6 units 6戸 | Land area 土地面積 | | 100 sq m ~ 105.98 sq m (30.24 tsubo ~ 32.05 tsubo) (measured) 100m2 ~ 105.98m2(30.24坪 ~ 32.05坪)(実測) | Building area 建物面積 | | 105.57 sq m ~ 105.99 sq m (31.93 tsubo ~ 32.06 tsubo) (measured) 105.57m2 ~ 105.99m2(31.93坪 ~ 32.06坪)(実測) | Driveway burden-road 私道負担・道路 | | North 8.6m, Development road 4.0m 北8.6m、開発道路4.0m | Completion date 完成時期(築年月) | | 2014 end of April schedule 2014年4月末予定 | Address 住所 | | Saitama Prefecture Asaka Hamasaki 4 埼玉県朝霞市浜崎4 | Traffic 交通 | | Tobu Tojo Line "Asakadai" walk 9 minutes JR Musashino Line "Kitaasaka" 9 minutes walk Tokyo Metro Yurakucho Line "Wako" car 4.5km 東武東上線「朝霞台」歩9分 JR武蔵野線「北朝霞」歩9分東京メトロ有楽町線「和光市」車4.5km
| Related links 関連リンク | | [Related Sites of this company] 【この会社の関連サイト】 | Person in charge 担当者より | | Person in charge of real-estate and building Ikeda Kazuomi Age: 30 Daigyokai experience: taking advantage of 8 years of experience in the eight years developers industry, From the structure of the building up to the loan of your purchase, Also it shows to resolve any questions the point of customer! ! There are a lot of experience in Saitama district was born in Saitama Prefecture Asaka. By all means, please consult! 担当者宅建池田 和臣年齢:30代業界経験:8年デベロッパー業界にて8年の経験を活かし、建物の構造からご購入のローンに至るまで、お客様のどんなご不明点も解決して見せます!!埼玉県朝霞市出身でさいたま方面に多くの実績があります。是非ご相談下さい! | Contact お問い合せ先 | | TEL: 0800-805-6517 [Toll free] mobile phone ・ Also available from PHS Caller ID is not notified Please contact the "saw SUUMO (Sumo)" If it does not lead, If the real estate company TEL:0800-805-6517【通話料無料】携帯電話・PHSからもご利用いただけます 発信者番号は通知されません 「SUUMO(スーモ)を見た」と問い合わせください つながらない方、不動産会社の方は
| Sale schedule 販売スケジュール | | Every weekend on Saturdays, Sundays, and holidays ☆ Question etc at any time that we have carried out property sales events, We accept. Toll-free number 0120-877-977 shares) Aix Dream real estate Until Ikeda, Please feel free to contact us! 毎週末 土日祝☆物件販売会を実施しておりますご質問等は随時、受け付けております。フリーダイアル 0120-877-977株)エクスドリーム不動産 池田まで、お気軽にお問合せください! | Building coverage, floor area ratio 建ぺい率・容積率 | | Building coverage: 60%, Volume ratio: 200% 建ぺい率:60%、容積率:200% | Time residents 入居時期 | | Consultation 相談 | Land of the right form 土地の権利形態 | | Ownership 所有権 | Structure and method of construction 構造・工法 | | Wooden 2-story 木造2階建 | Construction 施工 | | One Construction (Ltd.) 一建設(株) | Use district 用途地域 | | One dwelling 1種住居 | Land category 地目 | | Residential land 宅地 | Overview and notices その他概要・特記事項 | | Contact: Ikeda Kazuomi, Building confirmation number: first SJK-KX1311060969 担当者:池田 和臣、建築確認番号:第SJK-KX1311060969 | Company profile 会社概要 | | <Marketing alliance (agency)> Governor of Tokyo (2) No. 084644 (Ltd.) Aix Dream real estate Yubinbango101-0051, Chiyoda-ku, Tokyo Jimbo Kanda-cho 1-11-1 strawberries Jinbocho building second floor <販売提携(代理)>東京都知事(2)第084644号(株)エクスドリーム不動産〒101-0051 東京都千代田区神田神保町1-11-1 いちご神保町ビル2階 |
Local appearance photo現地外観写真  ☆ Local appearance ☆
☆現地外観☆
 ☆ Local Photos ☆
☆現地写真☆
 ☆ A 4-minute walk of the iris River ☆
☆徒歩4分の黒目川☆
Same specifications photo (kitchen)同仕様写真(キッチン)  ☆ Range food ・ Stove ☆ Same specifications
☆レンジフード・コンロ☆同仕様
Bathroom浴室  ☆ bathroom ☆ Same specifications
☆浴室☆同仕様
Same specifications photos (Other introspection)同仕様写真(その他内観)  ☆ toilet ☆ Same specifications
☆トイレ☆同仕様
Supermarketスーパー  Olympic until Asakadai shop 1024m
Olympic朝霞台店まで1024m
Hospital病院  (Goods) Asaka until Welfare Hospital 1012m
(財)朝霞厚生病院まで1012m
Streets around周辺の街並み  900m is a public sports facility to the exciting dome ☆ Guests can enjoy a workout in the conscientious rates.
わくわくドームまで900m 公共のスポーツ施設です☆良心的な料金でエクササイズを楽しめます。
Other Environmental Photoその他環境写真  Thrift shop that carried out in the 1100m City to Econet Asaka. Be able to GET the deals featured product.
エコネットあさかまで1100m 市で行っているリサイクルショップ。お得な目玉商品をGETできるかも。
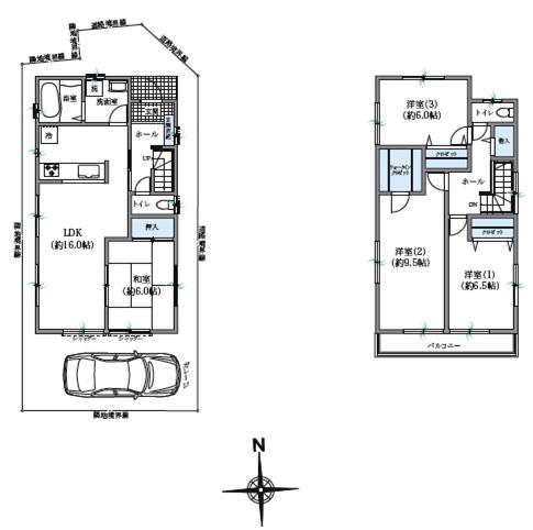
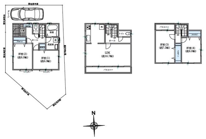
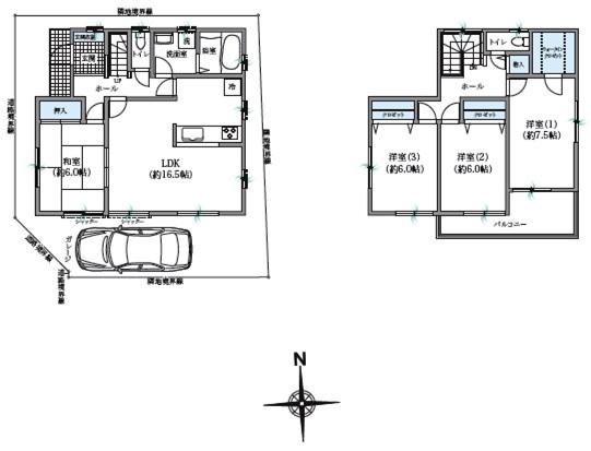
Otherその他  ☆ Floor plan 1 Building ☆
☆間取図 1号棟☆
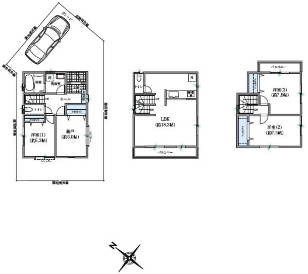
 ☆ Floor plan Building 2 ☆
☆間取図 2号棟☆
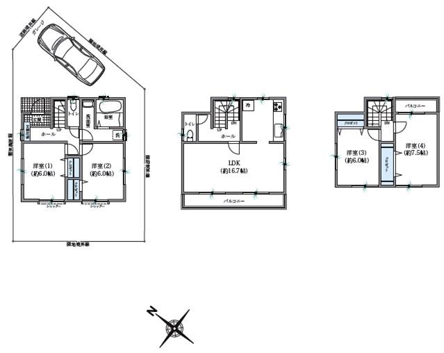
 ☆ Floor plan Building 3 ☆
☆間取図 3号棟☆
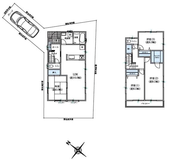
 ☆ Floor plan 4 Building ☆
☆間取図 4号棟☆
 ☆ Floor plan 5 Building ☆
☆間取図 5号棟☆
 ☆ Floor plan 6 Building ☆
☆間取図 6号棟☆
Local appearance photo現地外観写真  ☆ Local Photos ☆
☆現地写真☆
 ☆ Local Photos ☆
☆現地写真☆
Other localその他現地  ☆ Detailed Information (1) ☆
☆詳細情報(1)☆
 ☆ Detailed Information (2) ☆
☆詳細情報(2)☆
Primary school小学校  Asaka Municipal Asaka 594m to the third elementary school
朝霞市立朝霞第三小学校まで594m
Junior high school中学校  Asaka Municipal Asaka 718m until the second junior high school
朝霞市立朝霞第二中学校まで718m
Kindergarten ・ Nursery幼稚園・保育園  686m until the child nursery of the sun and the earth
太陽と大地のこども保育園まで686m
Convenience storeコンビニ  457m to Seven-Eleven Asaka Hamasaki 4-chome
セブンイレブン朝霞浜崎4丁目店まで457m
Other Environmental Photoその他環境写真  Asaka 1000m until the fire department Ayumi Precinct
朝霞消防署浜崎分署まで1000m
Location
|