New Homes » Kanto » Saitama » Higashimatsuyama
 
| | Saitama Prefecture Higashimatsuyama 埼玉県東松山市 |
| Tobu Tojo Line "Higashimatsuyama" walk 33 minutes 東武東上線「東松山」歩33分 |
| [Higashimatsuyama Yamazaki-cho, first All 10 buildings] Is your laundry dry overflowing even the day of the living environment rain relaxation Bathroom dryer with car spaces 2 ~ Three Allowed 【東松山市山崎町第1 全10棟】くつろぎあふれる住環境雨の日でもお洗濯が乾く 浴室乾燥機付カースペース2 ~ 3台可 |
| *********************** New construction ・ Used Detached ・ Used apartment ・ I. A. Corporation home sales if it is a thing of the land Consultation please contact us toll-free 0800-602-6558 sale to Kawagoe head office also we wait *********************** ***********************新築・中古戸建・中古マンション・土地の事ならアイエー住宅販売 川越本店へお問い合わせ下さいフリーコール0800-602-6558売却のご相談もお待ちしております*********************** |
Features pickup 特徴ピックアップ | | Parking two Allowed / Land 50 square meters or more / System kitchen / Bathroom Dryer / A quiet residential area / Japanese-style room / Face-to-face kitchen / Toilet 2 places / 2-story / Southeast direction / Double-glazing / TV monitor interphone / Ventilation good 駐車2台可 /土地50坪以上 /システムキッチン /浴室乾燥機 /閑静な住宅地 /和室 /対面式キッチン /トイレ2ヶ所 /2階建 /東南向き /複層ガラス /TVモニタ付インターホン /通風良好 | Price 価格 | | 18.3 million yen ・ 19,800,000 yen 1830万円・1980万円 | Floor plan 間取り | | 4LDK 4LDK | Units sold 販売戸数 | | 5 units 5戸 | Total units 総戸数 | | 10 units 10戸 | Land area 土地面積 | | 187.48 sq m ~ 188.12 sq m (registration) 187.48m2 ~ 188.12m2(登記) | Building area 建物面積 | | 98.01 sq m ~ 101.65 sq m (registration) 98.01m2 ~ 101.65m2(登記) | Driveway burden-road 私道負担・道路 | | Road width: 4.04m ~ 8.2m 道路幅:4.04m ~ 8.2m | Completion date 完成時期(築年月) | | 2013 end of October 2013年10月末 | Address 住所 | | Saitama Prefecture Higashimatsuyama Yamazaki-cho 埼玉県東松山市山崎町 | Traffic 交通 | | Tobu Tojo Line "Higashimatsuyama" walk 33 minutes Tobu Tojo Line "Higashimatsuyama" 15 minutes Parktown Goryo walk 5 minutes by bus Tobu Tojo Line "Takasaka" walk 58 minutes 東武東上線「東松山」歩33分 東武東上線「東松山」バス15分パークタウン五領歩5分 東武東上線「高坂」歩58分
| Related links 関連リンク | | [Related Sites of this company] 【この会社の関連サイト】 | Person in charge 担当者より | | Person in charge of real-estate and building Sasaki Katsumube Age: 30 Daigyokai experience: including 10 years Kawagoe peripheral and neighboring cities, We always strive every day to be able to meet customer needs. Sale of important real estate of everyone, And until all means our staff will help you look for a dream of my home. 担当者宅建佐々木 克宜年齢:30代業界経験:10年川越周辺及び近隣都市も含め、常にお客様のニーズにお応えできるよう日々努力しております。皆様の大切な不動産の売却、そして夢のマイホーム探しのお手伝いは是非当社スタッフまで。 | Contact お問い合せ先 | | TEL: 0800-602-6558 [Toll free] mobile phone ・ Also available from PHS Caller ID is not notified Please contact the "saw SUUMO (Sumo)" If it does not lead, If the real estate company TEL:0800-602-6558【通話料無料】携帯電話・PHSからもご利用いただけます 発信者番号は通知されません 「SUUMO(スーモ)を見た」と問い合わせください つながらない方、不動産会社の方は
| Most price range 最多価格帯 | | 19 million yen (4 units) 1900万円台(4戸) | Building coverage, floor area ratio 建ぺい率・容積率 | | Kenpei rate: 60%, Volume ratio: 10% 建ペい率:60%、容積率:10% | Time residents 入居時期 | | Consultation 相談 | Land of the right form 土地の権利形態 | | Ownership 所有権 | Structure and method of construction 構造・工法 | | Wooden 2-story 木造2階建 | Use district 用途地域 | | One middle and high 1種中高 | Land category 地目 | | Residential land 宅地 | Overview and notices その他概要・特記事項 | | Contact: Sasaki Katsumube, Building confirmation number: No. HPA-13-04616-1 担当者:佐々木 克宜、建築確認番号:第HPA-13-04616-1号 | Company profile 会社概要 | | <Mediation> Saitama Governor (1) No. 022309 (Ltd.) I. A. Corporation home sales Kawagoe head office Yubinbango350-0024 Kawagoe City Prefecture Namikishin cho 8-11 <仲介>埼玉県知事(1)第022309号(株)アイエー住宅販売川越本店〒350-0024 埼玉県川越市並木新町8-11 |
Local photos, including front road前面道路含む現地写真  Higashimatsuyama Yamazaki-cho All 10 buildings Imposing complete site (November 2013) Shooting
東松山市山崎町 全10棟 堂々完成現地(2013年11月)撮影
Local appearance photo現地外観写真  Car Space 2 ~ 3 units can be Local (11 May 2013) Shooting
カースペース2 ~ 3台可能 現地(2013年11月)撮影
 Local (11 May 2013) Shooting
現地(2013年11月)撮影
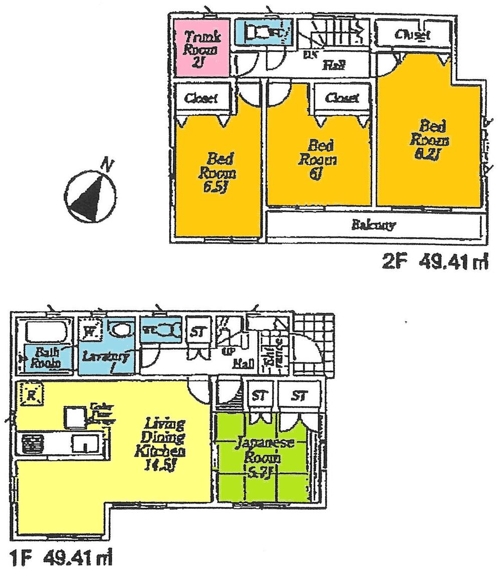
Floor plan間取り図  ((4) Building), Price 18,800,000 yen, 4LDK, Land area 187.5 sq m , Building area 101.65 sq m
((4)号棟)、価格1880万円、4LDK、土地面積187.5m2、建物面積101.65m2
Local photos, including front road前面道路含む現地写真  Local (11 May 2013) Shooting
現地(2013年11月)撮影
The entire compartment Figure全体区画図  Compartment figure
区画図
Floor plan間取り図  ((6) Building), Price 18.3 million yen, 4LDK, Land area 187.5 sq m , Building area 98.82 sq m
((6)号棟)、価格1830万円、4LDK、土地面積187.5m2、建物面積98.82m2
 ((7) Building), Price 19,800,000 yen, 4LDK, Land area 187.48 sq m , Building area 98.01 sq m
((7)号棟)、価格1980万円、4LDK、土地面積187.48m2、建物面積98.01m2
 ((8) Building), Price 19,800,000 yen, 4LDK, Land area 188.12 sq m , Building area 99.22 sq m
((8)号棟)、価格1980万円、4LDK、土地面積188.12m2、建物面積99.22m2
 ((9) Building), Price 19,800,000 yen, 4LDK, Land area 188.08 sq m , Building area 98.82 sq m
((9)号棟)、価格1980万円、4LDK、土地面積188.08m2、建物面積98.82m2
Location
|