|
|
Saitama Prefecture Higashimatsuyama
埼玉県東松山市
|
|
Tobu Tojo Line "Higashimatsuyama" 20 minutes plain citizen activity center walk 5 minutes by bus
東武東上線「東松山」バス20分平野市民活動センター歩5分
|
|
☆ Effortlessly wash at rainy day with bathroom dryer ☆ Car space three Allowed
☆浴室乾燥機付で雨の日でも楽々お洗濯☆カースペース3台可
|
|
◆ Walk from the Matsuyama Second Elementary School 11 minutes, North and Central Inquiries about 5 minutes here listing walk to the junior high school [Asia home sales Kawagoe head office 0800-603-8288] Please feel free to contact us! !
◆松山第ニ小学校まで徒歩11分、北中中学校まで徒歩5分こちらの物件に関するお問い合わせ【アジア住宅販売 川越本店0800-603-8288】お気軽にお問い合わせください!!
|
Features pickup 特徴ピックアップ | | Pre-ground survey / Parking three or more possible / Immediate Available / Land 50 square meters or more / Super close / It is close to the city / Facing south / System kitchen / Bathroom Dryer / A quiet residential area / Corner lot / Japanese-style room / Shaping land / Garden more than 10 square meters / Washbasin with shower / Toilet 2 places / 2-story / 2 or more sides balcony / South balcony / Double-glazing / Zenshitsuminami direction / Warm water washing toilet seat / Nantei / Underfloor Storage / The window in the bathroom / TV monitor interphone / Leafy residential area / All room 6 tatami mats or more / Water filter / All rooms are two-sided lighting / Development subdivision in 地盤調査済 /駐車3台以上可 /即入居可 /土地50坪以上 /スーパーが近い /市街地が近い /南向き /システムキッチン /浴室乾燥機 /閑静な住宅地 /角地 /和室 /整形地 /庭10坪以上 /シャワー付洗面台 /トイレ2ヶ所 /2階建 /2面以上バルコニー /南面バルコニー /複層ガラス /全室南向き /温水洗浄便座 /南庭 /床下収納 /浴室に窓 /TVモニタ付インターホン /緑豊かな住宅地 /全居室6畳以上 /浄水器 /全室2面採光 /開発分譲地内 |
Event information イベント情報 | | Local sales meetings (please visitors to direct local) schedule / Every Saturday, Sunday and public holidays time / 10:00 ~ 17:00 現地販売会(直接現地へご来場ください)日程/毎週土日祝時間/10:00 ~ 17:00 |
Price 価格 | | 14.8 million yen 1480万円 |
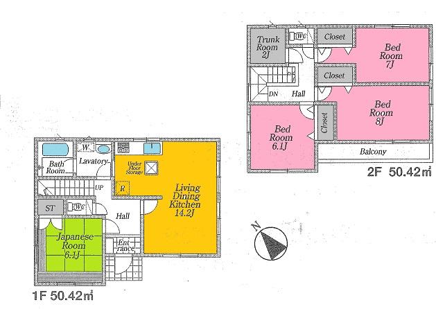
Floor plan 間取り | | 4LDK 4LDK |
Units sold 販売戸数 | | 1 units 1戸 |
Land area 土地面積 | | 200.01 sq m 200.01m2 |
Building area 建物面積 | | 200.01 sq m 200.01m2 |
Driveway burden-road 私道負担・道路 | | Nothing 無 |
Completion date 完成時期(築年月) | | August 2013 2013年8月 |
Address 住所 | | Saitama Prefecture Higashimatsuyama Oaza Noda 埼玉県東松山市大字野田 |
Traffic 交通 | | Tobu Tojo Line "Higashimatsuyama" 20 minutes plain citizen activity center walk 5 minutes by bus Tobu Tojo Line "Forest Park" walk 27 minutes Tobu Tojo Line "ring around the moon" walk 60 minutes 東武東上線「東松山」バス20分平野市民活動センター歩5分 東武東上線「森林公園」歩27分 東武東上線「つきのわ」歩60分
|
Related links 関連リンク | | [Related Sites of this company] 【この会社の関連サイト】 |
Person in charge 担当者より | | Person in charge of real-estate and building Honda Masaki Age: 30 Daigyokai experience: 2 years Sakado resident 36-year-old. View customer satisfaction has been the face of is my best motivation. In all sincerity we will endeavor to help ensure that the consent was shopping. Please say more and more selfish. 担当者宅建本田 真樹年齢:30代業界経験:2年坂戸市在住36歳です。お客様の満足された顔を見るのが私の一番のモチベーションです。納得したお買い物をして頂けるよう誠心誠意努力いたします。どんどんわがままを言って下さい。 |
Contact お問い合せ先 | | TEL: 0800-603-8288 [Toll free] mobile phone ・ Also available from PHS Caller ID is not notified Please contact the "saw SUUMO (Sumo)" If it does not lead, If the real estate company TEL:0800-603-8288【通話料無料】携帯電話・PHSからもご利用いただけます 発信者番号は通知されません 「SUUMO(スーモ)を見た」と問い合わせください つながらない方、不動産会社の方は
|
Building coverage, floor area ratio 建ぺい率・容積率 | | 60% ・ 200% 60%・200% |
Time residents 入居時期 | | Immediate available 即入居可 |
Land of the right form 土地の権利形態 | | Ownership 所有権 |
Structure and method of construction 構造・工法 | | Wooden 2-story 木造2階建 |
Use district 用途地域 | | Urbanization control area 市街化調整区域 |
Overview and notices その他概要・特記事項 | | Contact: Honda Masaki, Facilities: Public Water Supply, Individual septic tank, Individual LPG, Building Permits reason: control area per building permit requirements, Parking: car space 担当者:本田 真樹、設備:公営水道、個別浄化槽、個別LPG、建築許可理由:調整区域につき建築許可要、駐車場:カースペース |
Company profile 会社概要 | | <Mediation> Minister of Land, Infrastructure and Transport (1) No. 008204 (Corporation) Prefecture Building Lots and Buildings Transaction Business Association (Corporation) metropolitan area real estate Fair Trade Council member Co., Ltd. Asia home sales Kawagoe head office Yubinbango350-1118 Kawagoe City Prefecture, Oaza Toyodahon 72-1 <仲介>国土交通大臣(1)第008204号(公社)埼玉県宅地建物取引業協会会員 (公社)首都圏不動産公正取引協議会加盟(株)アジア住宅販売川越本店〒350-1118 埼玉県川越市大字豊田本72-1 |