|
|
Saitama Prefecture Higashimatsuyama
埼玉県東松山市
|
|
Tobu Tojo Line "Higashimatsuyama" walk 18 minutes
東武東上線「東松山」歩18分
|
|
Design house performance with evaluation, Solar power system, Vibration Control ・ Seismic isolation ・ Earthquake resistant, Parking two Allowed, Energy-saving water heaters, Super close, It is close to the city, System kitchen, Bathroom Dryer, All room storage, LDK15 tatami
設計住宅性能評価付、太陽光発電システム、制震・免震・耐震、駐車2台可、省エネ給湯器、スーパーが近い、市街地が近い、システムキッチン、浴室乾燥機、全居室収納、LDK15畳
|
|
■ Shopping facilities have been enhanced within walking distance. ■ Strong earthquake for seismic grade 3 acquisition.
■買い物施設が徒歩圏内に充実しています。■耐震等級3取得のため地震に強い。
|
Features pickup 特徴ピックアップ | | Design house performance with evaluation / Solar power system / Vibration Control ・ Seismic isolation ・ Earthquake resistant / Parking two Allowed / Energy-saving water heaters / Super close / It is close to the city / System kitchen / Bathroom Dryer / All room storage / LDK15 tatami mats or more / Japanese-style room / Washbasin with shower / Wide balcony / Barrier-free / Toilet 2 places / 2-story / Double-glazing / Warm water washing toilet seat / Underfloor Storage / TV monitor interphone / Walk-in closet 設計住宅性能評価付 /太陽光発電システム /制震・免震・耐震 /駐車2台可 /省エネ給湯器 /スーパーが近い /市街地が近い /システムキッチン /浴室乾燥機 /全居室収納 /LDK15畳以上 /和室 /シャワー付洗面台 /ワイドバルコニー /バリアフリー /トイレ2ヶ所 /2階建 /複層ガラス /温水洗浄便座 /床下収納 /TVモニタ付インターホン /ウォークインクロゼット |
Price 価格 | | 24,900,000 yen 2490万円 |
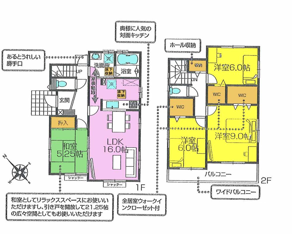
Floor plan 間取り | | 4LDK 4LDK |
Units sold 販売戸数 | | 1 units 1戸 |
Total units 総戸数 | | 2 units 2戸 |
Land area 土地面積 | | 160.72 sq m (48.61 square meters) 160.72m2(48.61坪) |
Building area 建物面積 | | 104.33 sq m (31.55 square meters) 104.33m2(31.55坪) |
Driveway burden-road 私道負担・道路 | | West 5.2m public road, North 5.3m on public roads (each paving Yes) 西側5.2m公道、北側5.3m公道(各舗装有) |
Completion date 完成時期(築年月) | | 2013 late October 2013年10月下旬 |
Address 住所 | | Saitama Prefecture Higashimatsuyama pine needle-cho 3 埼玉県東松山市松葉町3 |
Traffic 交通 | | Tobu Tojo Line "Higashimatsuyama" walk 18 minutes 東武東上線「東松山」歩18分
|
Related links 関連リンク | | [Related Sites of this company] 【この会社の関連サイト】 |
Contact お問い合せ先 | | TEL: 0800-808-9028 [Toll free] mobile phone ・ Also available from PHS Caller ID is not notified Please contact the "saw SUUMO (Sumo)" If it does not lead, If the real estate company TEL:0800-808-9028【通話料無料】携帯電話・PHSからもご利用いただけます 発信者番号は通知されません 「SUUMO(スーモ)を見た」と問い合わせください つながらない方、不動産会社の方は
|
Building coverage, floor area ratio 建ぺい率・容積率 | | Kenpei rate: 60%, Volume ratio: 200% 建ペい率:60%、容積率:200% |
Time residents 入居時期 | | Consultation 相談 |
Land of the right form 土地の権利形態 | | Ownership 所有権 |
Structure and method of construction 構造・工法 | | Wooden 木造 |
Use district 用途地域 | | One dwelling 1種住居 |
Land category 地目 | | Residential land 宅地 |
Overview and notices その他概要・特記事項 | | Building confirmation number: No. H25SHC111266 建築確認番号:第H25SHC111266号 |
Company profile 会社概要 | | <Mediation> Saitama Governor (4) No. 017756 No. Ltd. Taisei housing Wakabawoku shop Yubinbango350-2201 Saitama Prefecture Tsurugashima Fujimi 1-2-1 Wakabawoku second floor <仲介>埼玉県知事(4)第017756号(株)大成住宅ワカバウォーク店〒350-2201 埼玉県鶴ヶ島市富士見1-2-1 ワカバウォーク2階 |