2013November
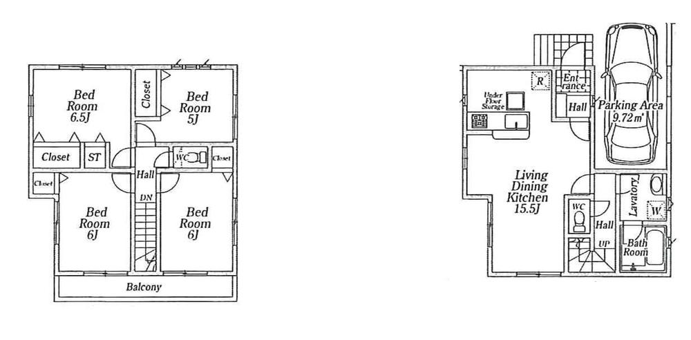
19,800,000 yen, 4LDK, 98.82 sq m
New Homes » Kanto » Saitama » Iruma
 
| | Saitama Prefecture Iruma 埼玉県入間市 |
| Seibu Ikebukuro Line "Iruma" walk 19 minutes 西武池袋線「入間市」歩19分 |
Features pickup 特徴ピックアップ | | Measures to conserve energy / Corresponding to the flat-35S / Pre-ground survey / Super close / It is close to the city / Facing south / System kitchen / Bathroom Dryer / Yang per good / All room storage / Flat to the station / A quiet residential area / LDK15 tatami mats or more / Around traffic fewer / Corner lot / Japanese-style room / Shaping land / garden / Washbasin with shower / Face-to-face kitchen / Wide balcony / Barrier-free / Toilet 2 places / Bathroom 1 tsubo or more / 2-story / South balcony / Double-glazing / Warm water washing toilet seat / Underfloor Storage / The window in the bathroom / TV monitor interphone / Ventilation good / Water filter / A large gap between the neighboring house / Maintained sidewalk / Flat terrain 省エネルギー対策 /フラット35Sに対応 /地盤調査済 /スーパーが近い /市街地が近い /南向き /システムキッチン /浴室乾燥機 /陽当り良好 /全居室収納 /駅まで平坦 /閑静な住宅地 /LDK15畳以上 /周辺交通量少なめ /角地 /和室 /整形地 /庭 /シャワー付洗面台 /対面式キッチン /ワイドバルコニー /バリアフリー /トイレ2ヶ所 /浴室1坪以上 /2階建 /南面バルコニー /複層ガラス /温水洗浄便座 /床下収納 /浴室に窓 /TVモニタ付インターホン /通風良好 /浄水器 /隣家との間隔が大きい /整備された歩道 /平坦地 | Price 価格 | | 19,800,000 yen 1980万円 | Floor plan 間取り | | 4LDK 4LDK | Units sold 販売戸数 | | 1 units 1戸 | Total units 総戸数 | | 2 units 2戸 | Land area 土地面積 | | 100.04 sq m (measured) 100.04m2(実測) | Building area 建物面積 | | 98.82 sq m (measured), Among the first floor garage 9.72 sq m 98.82m2(実測)、うち1階車庫9.72m2 | Driveway burden-road 私道負担・道路 | | Nothing, West 4m width, Northeast 4.2m width 無、西4m幅、北東4.2m幅 | Completion date 完成時期(築年月) | | November 2013 2013年11月 | Address 住所 | | Saitama Prefecture Iruma Ogimachiya 4 埼玉県入間市扇町屋4 | Traffic 交通 | | Seibu Ikebukuro Line "Iruma" walk 19 minutes 西武池袋線「入間市」歩19分
| Related links 関連リンク | | [Related Sites of this company] 【この会社の関連サイト】 | Contact お問い合せ先 | | TEL: 0800-603-0804 [Toll free] mobile phone ・ Also available from PHS Caller ID is not notified Please contact the "saw SUUMO (Sumo)" If it does not lead, If the real estate company TEL:0800-603-0804【通話料無料】携帯電話・PHSからもご利用いただけます 発信者番号は通知されません 「SUUMO(スーモ)を見た」と問い合わせください つながらない方、不動産会社の方は
| Building coverage, floor area ratio 建ぺい率・容積率 | | 60% ・ 200% 60%・200% | Time residents 入居時期 | | Immediate available 即入居可 | Land of the right form 土地の権利形態 | | Ownership 所有権 | Structure and method of construction 構造・工法 | | Wooden 2-story 木造2階建 | Use district 用途地域 | | One dwelling 1種住居 | Overview and notices その他概要・特記事項 | | Facilities: Public Water Supply, This sewage, Building confirmation number: No. 13UDI1W Ken 01722, Parking: car space 設備:公営水道、本下水、建築確認番号:第13UDI1W建01722号、駐車場:カースペース | Company profile 会社概要 | | <Mediation> Saitama Governor (10) No. 008534 (Corporation) Prefecture Building Lots and Buildings Transaction Business Association (Corporation) metropolitan area real estate Fair Trade Council member ERA Sayama Real Estate Co., Ltd. Iruma Yubinbango358-0003 Saitama Prefecture Iruma Toyooka 1-4-30 Castle Mansion Iruma Station first floor <仲介>埼玉県知事(10)第008534号(公社)埼玉県宅地建物取引業協会会員 (公社)首都圏不動産公正取引協議会加盟ERA狭山不動産(株)入間店〒358-0003 埼玉県入間市豊岡1-4-30 キャッスルマンション入間駅前1階 |
Local appearance photo現地外観写真  Local (11 May 2013) Shooting
現地(2013年11月)撮影
 Local (11 May 2013) Shooting
現地(2013年11月)撮影
 Local (11 May 2013) Shooting
現地(2013年11月)撮影
Floor plan間取り図  19,800,000 yen, 4LDK, Land area 100.04 sq m , Building area 98.82 sq m
1980万円、4LDK、土地面積100.04m2、建物面積98.82m2
Otherその他  Nearby SIOS
近隣のサイオス
 Neighborhood of York Mart
近隣のヨークマート
Location
|