New Homes » Kanto » Saitama » Kawagoe
 
| | Kawagoe City Prefecture 埼玉県川越市 |
| Seibu Shinjuku Line "Minamiotsuka" walk 31 minutes 西武新宿線「南大塚」歩31分 |
| [Barrier-free design ・ Long-term high-quality housing ・ Seismic Grade 3] The kitchen is, Slide housed outside faucet located on the front road, Less traffic 【バリアフリー設計・長期優良住宅・耐震等級3】キッチンは、スライド収納外水栓あり前面道路は、交通量が少ない |
| It has been completed! You immediately can see the inside of the house. ============================= Corporation I. A. Corporation home sales Kawagoe head office Free Call 0800-602-6558 Look for My Home of our staff and dream together! Until the end we will be supported by the best ============================= 完成しています!すぐにお家の中をご覧いただけます。=============================株式会社アイエー住宅販売 川越本店フリーコール 0800―602―6558当社スタッフと夢のマイホームを一緒に探しましょう!最後まで全力でサポートさせて頂きます============================= |
Features pickup 特徴ピックアップ | | Long-term high-quality housing / Parking two Allowed / 2 along the line more accessible / System kitchen / Bathroom Dryer / Yang per good / All room storage / A quiet residential area / LDK15 tatami mats or more / Japanese-style room / Washbasin with shower / Toilet 2 places / 2-story / Southeast direction / Double-glazing / Warm water washing toilet seat / Underfloor Storage / TV monitor interphone / Ventilation good / All rooms facing southeast 長期優良住宅 /駐車2台可 /2沿線以上利用可 /システムキッチン /浴室乾燥機 /陽当り良好 /全居室収納 /閑静な住宅地 /LDK15畳以上 /和室 /シャワー付洗面台 /トイレ2ヶ所 /2階建 /東南向き /複層ガラス /温水洗浄便座 /床下収納 /TVモニタ付インターホン /通風良好 /全室東南向き | Price 価格 | | 21.5 million yen 2150万円 | Floor plan 間取り | | 4LDK 4LDK | Units sold 販売戸数 | | 1 units 1戸 | Total units 総戸数 | | 7 units 7戸 | Land area 土地面積 | | 132.24 sq m (registration) 132.24m2(登記) | Building area 建物面積 | | 101.85 sq m (registration) 101.85m2(登記) | Driveway burden-road 私道負担・道路 | | Road width: 4.0m 道路幅:4.0m | Completion date 完成時期(築年月) | | August 2013 2013年8月 | Address 住所 | | Kawagoe City Prefecture, Oaza Imafuku 埼玉県川越市大字今福 | Traffic 交通 | | Seibu Shinjuku Line "Minamiotsuka" walk 31 minutes Tobu Tojo Line "Kawagoe" 15 minutes Kasumi hectare 4 minutes by bus Tobu Tojo Line "Shingashi" walk 41 minutes 西武新宿線「南大塚」歩31分 東武東上線「川越」バス15分かすみ町歩4分 東武東上線「新河岸」歩41分
| Related links 関連リンク | | [Related Sites of this company] 【この会社の関連サイト】 | Person in charge 担当者より | | Rep Enomoto Yosuke Age: 20 Daigyokai experience: you will be the utmost efforts toward the realization of one year your dream. Let's come true the dream together. 担当者榎本 陽介年齢:20代業界経験:1年お客様の夢の実現に向けて精一杯努力させて頂きます。一緒に夢を叶えましょう。 | Contact お問い合せ先 | | TEL: 0800-602-6558 [Toll free] mobile phone ・ Also available from PHS Caller ID is not notified Please contact the "saw SUUMO (Sumo)" If it does not lead, If the real estate company TEL:0800-602-6558【通話料無料】携帯電話・PHSからもご利用いただけます 発信者番号は通知されません 「SUUMO(スーモ)を見た」と問い合わせください つながらない方、不動産会社の方は
| Building coverage, floor area ratio 建ぺい率・容積率 | | Kenpei rate: 50% ・ 60%, Volume ratio: 80% ・ 200% 建ペい率:50%・60%、容積率:80%・200% | Time residents 入居時期 | | Consultation 相談 | Land of the right form 土地の権利形態 | | Ownership 所有権 | Structure and method of construction 構造・工法 | | Wooden 2-story (conventional method) 木造2階建(在来工法) | Use district 用途地域 | | One low-rise, One dwelling 1種低層、1種住居 | Land category 地目 | | Residential land 宅地 | Overview and notices その他概要・特記事項 | | Contact: Enomoto Yosuke 担当者:榎本 陽介 | Company profile 会社概要 | | <Mediation> Saitama Governor (1) No. 022309 (Ltd.) I. A. Corporation home sales Kawagoe head office Yubinbango350-0024 Kawagoe City Prefecture Namikishin cho 8-11 <仲介>埼玉県知事(1)第022309号(株)アイエー住宅販売川越本店〒350-0024 埼玉県川越市並木新町8-11 |
Local photos, including front road前面道路含む現地写真  Completed have car space two possible site (October 2013) Shooting
完成していますカースペース2台可能現地(2013年10月)撮影
Kitchenキッチン  ● stylish kitchen, which was based on white Indoor (10 May 2013) Shooting
●白を基調としたオシャレなキッチン 室内(2013年10月)撮影
Livingリビング  ● spacious living in a modern atmosphere Indoor (10 May 2013) Shooting
●モダンな雰囲気のゆったりリビング 室内(2013年10月)撮影
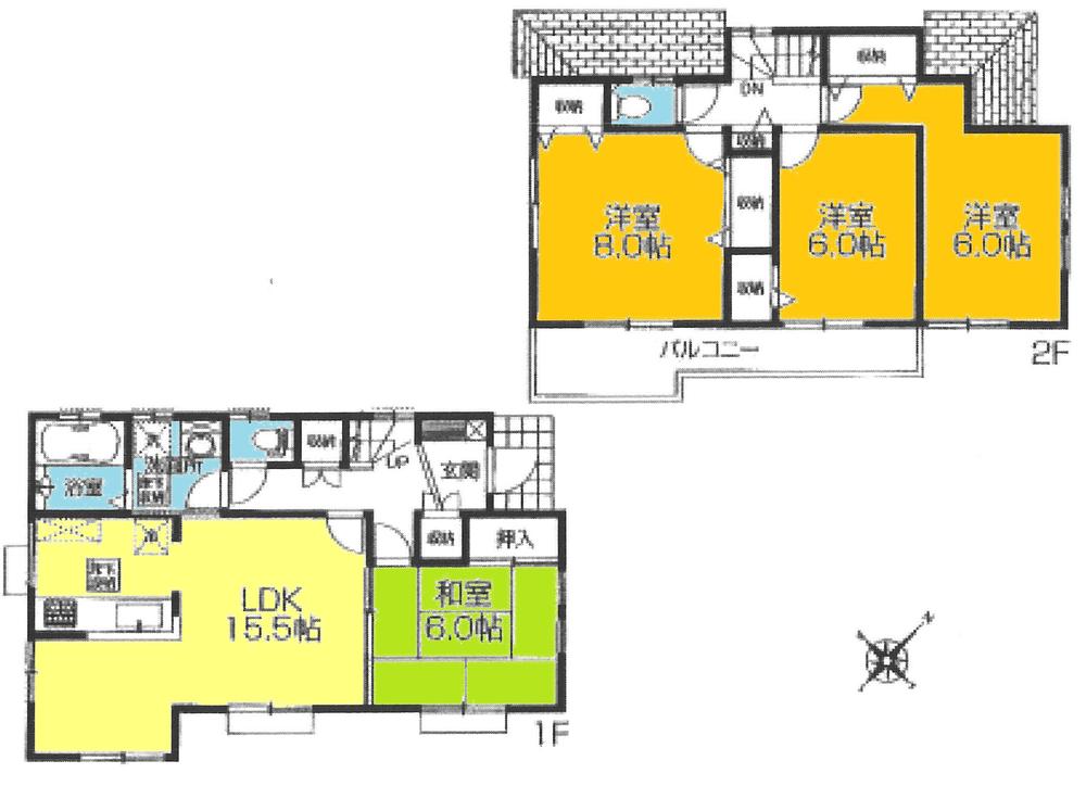
Floor plan間取り図  ((6) Building), Price 21.5 million yen, 4LDK, Land area 132.24 sq m , Building area 101.85 sq m
((6)号棟)、価格2150万円、4LDK、土地面積132.24m2、建物面積101.85m2
Local appearance photo現地外観写真  Local (10 May 2013) Shooting
現地(2013年10月)撮影
Bathroom浴室  ● achieve a comfortable bath time
●心地よいバスタイムを実現
Non-living roomリビング以外の居室  Western-style 7.875 Pledge
洋室7.875帖
Entrance玄関  ● clutter tend entrance also entrance with storage of cleaner
●散らかりがちな玄関もスッキリの玄関収納付
Wash basin, toilet洗面台・洗面所  ● fine basin space
●上質な洗面空間
Receipt収納  ● WIC with plenty of storage capacity
●たっぷりの収納力を備えたWIC
Balconyバルコニー  Local (10 May 2013) Shooting
現地(2013年10月)撮影
Junior high school中学校  1060m to Kawagoe City Fukuhara Junior High School
川越市立福原中学校まで1060m
The entire compartment Figure全体区画図  Compartment figure
区画図
Local appearance photo現地外観写真  Local (10 May 2013) Shooting
現地(2013年10月)撮影
Non-living roomリビング以外の居室  Western-style 6 Pledge
洋室6帖
Primary school小学校  1150m to Kawagoe City Fukuhara Elementary School
川越市立福原小学校まで1150m
Kindergarten ・ Nursery幼稚園・保育園  1150m until Takashi seminal nursery
貴精保育園まで1150m
Hospital病院  1073m to Seibu Kawagoe hospital
西武川越病院まで1073m
Home centerホームセンター  Komeri Co., Ltd. hard & Green 1525m to Kawagoe Shinjuku
コメリハード&グリーン川越新宿店まで1525m
Location
|