New Homes » Kanto » Saitama » Kawagoe


Kawagoe City Prefecture
Tobu Tojo Line "Kawagoe" 10 minutes Imafuku Ayumi Yamada 7 minutes by bus
It is a convenient two-sided road. It is easy to live with all the living room storage space Yes. Day is good in the southwest road. Please feel free to contact us.
Parking two Allowed, Immediate Available, LDK18 tatami mats or more, Yang per good, A quiet residential area, Face-to-face kitchen, 2-story, Underfloor Storage, Ventilation good, City gas
Features pickup
Parking two Allowed / Immediate Available / LDK18 tatami mats or more / Yang per good / A quiet residential area / Face-to-face kitchen / 2-story / Underfloor Storage / Ventilation good / City gas
Price
21 million yen
Floor plan
4LDK
Units sold
1 units
Land area
135 sq m (40.83 square meters)
Building area
101.01 sq m (30.55 square meters)
Driveway burden-road
Nothing, Northeast 4.2m width, Southwest 4.2m width
Completion date
August 2013
Address
Kawagoe City Prefecture, Oaza Imafuku
Traffic
Tobu Tojo Line "Kawagoe" 10 minutes Imafuku Ayumi Yamada 7 minutes by bus
Related links
[Related Sites of this company]
Person in charge
Person in charge of real-estate and building Uemura Takashi Age: 30 Daigyokai experience: This is Uemura was now to be entrusted with the 10-year Taisei housing Kawagoe housing gallery manager. To be able to introduce a customer satisfaction Property, Always we will continue to work hard at 120% of the force. Thank you.
Contact
TEL: 0800-805-5903 [Toll free] mobile phone ・ Also available from PHS
Caller ID is not notified
Please contact the "saw SUUMO (Sumo)"
If it does not lead, If the real estate company
Building coverage, floor area ratio
Fifty percent ・ 80%
Time residents
Immediate available
Land of the right form
Ownership
Structure and method of construction
Wooden 2-story
Use district
One low-rise, One dwelling
Other limitations
Car space 2 units can be compatible (optional).
Overview and notices
Contact: Uemura Takashi, Facilities: Public Water Supply, This sewage, City gas, Parking: car space
Company profile
<Mediation> Saitama Governor (4) No. 017756 No. Ltd. Taisei housing Kawagoe housing gallery Yubinbango350-1117 Kawagoe City Prefecture Koei-cho 10-6


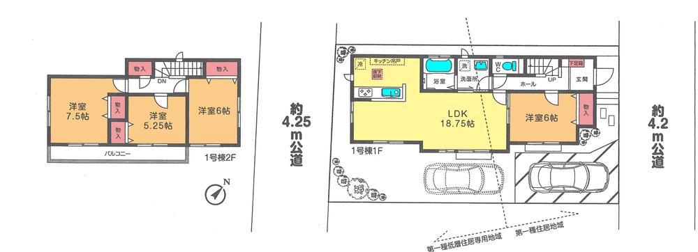
Floor plan

Floor plan. 21 million yen, 4LDK, Land area 135 sq m , Building area 101.01 sq m floor plan
21 million yen, 4LDK, Land area 135 sq m , Building area 101.01 sq m floor plan

Same specifications photos (appearance)

Same specifications photos (appearance). Reference: construction cases
Reference: construction cases

Same specifications photos (appearance). Reference: construction cases
Reference: construction cases

Living

Living. Reference: construction cases
Reference: construction cases

Bathroom

Bathroom. Reference: construction cases
Reference: construction cases

Kitchen

Kitchen. Reference: construction cases
Reference: construction cases

Primary school

Primary school. 1350m to Kawagoe City Fukuhara Elementary School
1350m to Kawagoe City Fukuhara Elementary School

Junior high school

Junior high school. 1200m to Kawagoe City Fukuhara Junior High School
1200m to Kawagoe City Fukuhara Junior High School



Location