New Homes » Kanto » Saitama » Kawagoe
 
| | Kawagoe City Prefecture 埼玉県川越市 |
| Tobu Tojo Line "Shingashi" walk 20 minutes 東武東上線「新河岸」歩20分 |
| 2-story, LDK15 tatami mats or more, All room 6 tatami mats or more, Parking two Allowed, City gas, 2 or more sides balcony, Pre-ground survey, Immediate Available, Super close, Facing south, System kitchen, Bathroom Dryer, Yang per good 2階建、LDK15畳以上、全居室6畳以上、駐車2台可、都市ガス、2面以上バルコニー、地盤調査済、即入居可、スーパーが近い、南向き、システムキッチン、浴室乾燥機、陽当り良 |
| 2-story, LDK15 tatami mats or more, All room 6 tatami mats or more, Parking two Allowed, City gas, 2 or more sides balcony, Pre-ground survey, Immediate Available, Super close, Facing south, System kitchen, Bathroom Dryer, Yang per good, All room storage, Around traffic fewerese-style room, garden, Washbasin with shower, Face-to-face kitchen, Barrier-free, Toilet 2 places, Bathroom 1 tsubo or more, South balcony, Warm water washing toilet seat, Nantei, Underfloor Storage, The window in the bathroom, TV monitor interphone, Ventilation good, Water filter, All rooms are two-sided lighting, Flat terrain 2階建、LDK15畳以上、全居室6畳以上、駐車2台可、都市ガス、2面以上バルコニー、地盤調査済、即入居可、スーパーが近い、南向き、システムキッチン、浴室乾燥機、陽当り良好、全居室収納、周辺交通量少なめ、和室、庭、シャワー付洗面台、対面式キッチン、バリアフリー、トイレ2ヶ所、浴室1坪以上、南面バルコニー、温水洗浄便座、南庭、床下収納、浴室に窓、TVモニタ付インターホン、通風良好、浄水器、全室2面採光、平坦地 |
Features pickup 特徴ピックアップ | | Pre-ground survey / Parking two Allowed / Immediate Available / Super close / Facing south / System kitchen / Bathroom Dryer / Yang per good / All room storage / LDK15 tatami mats or more / Around traffic fewer / Japanese-style room / garden / Washbasin with shower / Face-to-face kitchen / Barrier-free / Toilet 2 places / Bathroom 1 tsubo or more / 2-story / 2 or more sides balcony / South balcony / Warm water washing toilet seat / Nantei / Underfloor Storage / The window in the bathroom / TV monitor interphone / Ventilation good / All room 6 tatami mats or more / Water filter / City gas / All rooms are two-sided lighting / Flat terrain 地盤調査済 /駐車2台可 /即入居可 /スーパーが近い /南向き /システムキッチン /浴室乾燥機 /陽当り良好 /全居室収納 /LDK15畳以上 /周辺交通量少なめ /和室 /庭 /シャワー付洗面台 /対面式キッチン /バリアフリー /トイレ2ヶ所 /浴室1坪以上 /2階建 /2面以上バルコニー /南面バルコニー /温水洗浄便座 /南庭 /床下収納 /浴室に窓 /TVモニタ付インターホン /通風良好 /全居室6畳以上 /浄水器 /都市ガス /全室2面採光 /平坦地 | Event information イベント情報 | | Local tours (please make a reservation beforehand) schedule / Every Saturday, Sunday and public holidays time / 10:00 ~ 18:00 現地見学会(事前に必ず予約してください)日程/毎週土日祝時間/10:00 ~ 18:00 | Price 価格 | | 22,800,000 yen 2280万円 | Floor plan 間取り | | 4LDK 4LDK | Units sold 販売戸数 | | 1 units 1戸 | Total units 総戸数 | | 1 units 1戸 | Land area 土地面積 | | 126.83 sq m (38.36 tsubo) (measured) 126.83m2(38.36坪)(実測) | Building area 建物面積 | | 102.87 sq m (31.11 tsubo) (measured) 102.87m2(31.11坪)(実測) | Driveway burden-road 私道負担・道路 | | Nothing, West 4m width (contact the road width 3.6m) 無、西4m幅(接道幅3.6m) | Completion date 完成時期(築年月) | | August 2013 2013年8月 | Address 住所 | | Kawagoe City Prefecture, Oaza Terao 埼玉県川越市大字寺尾 | Traffic 交通 | | Tobu Tojo Line "Shingashi" walk 20 minutes Tobu Tojo Line "Kamifukuoka" walk 27 minutes JR Kawagoe Line "Minami Furuya" walk 31 minutes 東武東上線「新河岸」歩20分 東武東上線「上福岡」歩27分 JR川越線「南古谷」歩31分
| Related links 関連リンク | | [Related Sites of this company] 【この会社の関連サイト】 | Person in charge 担当者より | | Rep Sekiguchi Takuya Age: 20 Daigyokai experience: buy a six-year customer of the house will do the "dream" to "target"! Not only in residential areas, Loan Ya, Then Please leave who bought the house! Since I am also a body that bought a house, Feeling you can see very! Thank you. 担当者関口 拓矢年齢:20代業界経験:6年お客様の家を買う「夢」を「目標」に致します!住宅だけでなく、ローンや、お家を買ったその後もお任せください!私も家を買った身なので、気持ちがすごくわかります!宜しくお願い致します。 | Contact お問い合せ先 | | TEL: 0120-958350 [Toll free] Please contact the "saw SUUMO (Sumo)" TEL:0120-958350【通話料無料】「SUUMO(スーモ)を見た」と問い合わせください | Building coverage, floor area ratio 建ぺい率・容積率 | | Fifty percent ・ Hundred percent 50%・100% | Time residents 入居時期 | | Immediate available 即入居可 | Land of the right form 土地の権利形態 | | Ownership 所有権 | Structure and method of construction 構造・工法 | | Wooden 2-story 木造2階建 | Use district 用途地域 | | One low-rise 1種低層 | Overview and notices その他概要・特記事項 | | Contact: Sekiguchi Takuya, Facilities: Public Water Supply, This sewage, City gas, Parking: car space 担当者:関口 拓矢、設備:公営水道、本下水、都市ガス、駐車場:カースペース | Company profile 会社概要 | | <Mediation> Saitama Governor (2) the first 020,861 No. Shimamura wood Co. Fujimino shop Yubinbango354-0036 Saitama Prefecture Fujimi Fujiminohigashi 4-9-1 <仲介>埼玉県知事(2)第020861号嶋村木材(株)ふじみ野店〒354-0036 埼玉県富士見市ふじみ野東4-9-1 |
Local appearance photo現地外観写真  Local (11 May 2013) Shooting
現地(2013年11月)撮影
Livingリビング  Local (11 May 2013) Shooting
現地(2013年11月)撮影
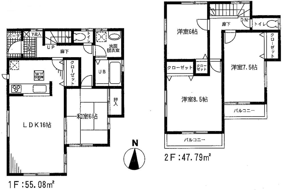
Floor plan間取り図  22,800,000 yen, 4LDK, Land area 126.83 sq m , Building area 102.87 sq m
2280万円、4LDK、土地面積126.83m2、建物面積102.87m2
Local appearance photo現地外観写真  Local (11 May 2013) Shooting
現地(2013年11月)撮影
Livingリビング  Local (11 May 2013) Shooting
現地(2013年11月)撮影
Bathroom浴室  Local (11 May 2013) Shooting
現地(2013年11月)撮影
Kitchenキッチン  Local (11 May 2013) Shooting
現地(2013年11月)撮影
Wash basin, toilet洗面台・洗面所  Local (11 May 2013) Shooting
現地(2013年11月)撮影
Toiletトイレ  Local (11 May 2013) Shooting
現地(2013年11月)撮影
Compartment figure区画図  22,800,000 yen, 4LDK, Land area 126.83 sq m , Building area 102.87 sq m
2280万円、4LDK、土地面積126.83m2、建物面積102.87m2
Kitchenキッチン  Local (11 May 2013) Shooting
現地(2013年11月)撮影
Location
|