New Homes » Kanto » Saitama » Kawagoe
 
| | Kawagoe City Prefecture 埼玉県川越市 |
| Seibu Shinjuku Line "Honkawagoe" walk 16 minutes 西武新宿線「本川越」歩16分 |
| High-quality housing acquisition support system object properties, Design house performance evaluation report has been acquired, Construction housing performance evaluation report acquisition plans 優良住宅取得支援制度対象物件、設計住宅性能評価書取得済、建設住宅性能評価書取得予定 |
| City gas, Public sewage, LDK14 Pledge, Face-to-face kitchen, All rooms are two-sided lighting, All room pair glass, Intercom with TV monitor. Building to completion, we will introduce a complete listing of other site. 都市ガス、公共下水、LDK14帖、対面キッチン、全室2面採光、全居室ペアガラス、TVモニター付インターホン。建物完成までは他の現場の完成物件をご紹介いたします。 |
Features pickup 特徴ピックアップ | | Design house performance with evaluation / Corresponding to the flat-35S / Pre-ground survey / Fiscal year Available / System kitchen / All room storage / A quiet residential area / Japanese-style room / Starting station / Face-to-face kitchen / Barrier-free / Toilet 2 places / Bathroom 1 tsubo or more / 2-story / Underfloor Storage / The window in the bathroom / TV monitor interphone / All rooms are two-sided lighting / Flat terrain 設計住宅性能評価付 /フラット35Sに対応 /地盤調査済 /年度内入居可 /システムキッチン /全居室収納 /閑静な住宅地 /和室 /始発駅 /対面式キッチン /バリアフリー /トイレ2ヶ所 /浴室1坪以上 /2階建 /床下収納 /浴室に窓 /TVモニタ付インターホン /全室2面採光 /平坦地 | Price 価格 | | 29,800,000 yen 2980万円 | Floor plan 間取り | | 4LDK 4LDK | Units sold 販売戸数 | | 1 units 1戸 | Land area 土地面積 | | 109.58 sq m (registration) 109.58m2(登記) | Building area 建物面積 | | 94.8 sq m (measured) 94.8m2(実測) | Driveway burden-road 私道負担・道路 | | Nothing, Northwest 4.8m width 無、北西4.8m幅 | Completion date 完成時期(築年月) | | January 2014 2014年1月 | Address 住所 | | Kawagoe City Prefecture Kosenba cho 2 埼玉県川越市小仙波町2 | Traffic 交通 | | Seibu Shinjuku Line "Honkawagoe" walk 16 minutes 西武新宿線「本川越」歩16分
| Related links 関連リンク | | [Related Sites of this company] 【この会社の関連サイト】 | Person in charge 担当者より | | Person in charge of real-estate and building Sekine Toshio Age: 50 Daigyokai Experience: 20 years Please contact us anything about the real estate. 担当者宅建関根 登志夫年齢:50代業界経験:20年不動産について何でもご相談ください。 | Contact お問い合せ先 | | TEL: 0800-603-0561 [Toll free] mobile phone ・ Also available from PHS Caller ID is not notified Please contact the "saw SUUMO (Sumo)" If it does not lead, If the real estate company TEL:0800-603-0561【通話料無料】携帯電話・PHSからもご利用いただけます 発信者番号は通知されません 「SUUMO(スーモ)を見た」と問い合わせください つながらない方、不動産会社の方は
| Building coverage, floor area ratio 建ぺい率・容積率 | | 60% ・ 192 percent 60%・192% | Time residents 入居時期 | | February 2014 schedule 2014年2月予定 | Land of the right form 土地の権利形態 | | Ownership 所有権 | Structure and method of construction 構造・工法 | | Wooden 2-story 木造2階建 | Use district 用途地域 | | One dwelling 1種住居 | Overview and notices その他概要・特記事項 | | Contact: Sekine Toshio, Facilities: Public Water Supply, This sewage, City gas, Building confirmation number: HPA-13-04778-1, Parking: car space 担当者:関根 登志夫、設備:公営水道、本下水、都市ガス、建築確認番号:HPA-13-04778-1、駐車場:カースペース | Company profile 会社概要 | | <Mediation> Minister of Land, Infrastructure and Transport (3) No. 006,185 (one company) National Housing Industry Association (Corporation) metropolitan area real estate Fair Trade Council member Asahi Housing Corporation Omiya Yubinbango330-0845 Saitama Omiya-ku Nakamachi 1-54-3 Visionary III 4 floor <仲介>国土交通大臣(3)第006185号(一社)全国住宅産業協会会員 (公社)首都圏不動産公正取引協議会加盟朝日住宅(株)大宮店〒330-0845 埼玉県さいたま市大宮区仲町1-54-3 ビジョナリーIII 4階 |
 Local appearance photo
現地外観写真
 Local photos, including front road
前面道路含む現地写真
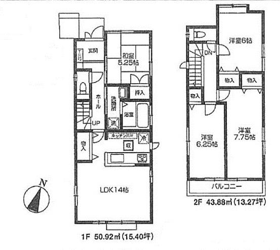
Floor plan間取り図  29,800,000 yen, 4LDK, Land area 109.58 sq m , Building area 94.8 sq m
2980万円、4LDK、土地面積109.58m2、建物面積94.8m2
 Parking lot
駐車場
Primary school小学校  520m up to elementary school Kawagoe first elementary school
小学校まで520m 川越第一小学校
 Other local
その他現地
Supermarketスーパー  900m Berg to supercomputers
スーパーまで900m ベルク
Government office役所  1000m Kawagoe city hall to public office
役所まで1000m 川越市役所
Other Environmental Photoその他環境写真  540m to other Environmental Photo old Kawagoe Castle Honmaru palace
その他環境写真まで540m 旧川越城本丸御殿
 440m to other Environmental Photo Kitain
その他環境写真まで440m 喜多院
Location
|