New Homes » Kanto » Saitama » Kawagoe
 
| | Kawagoe City Prefecture 埼玉県川越市 |
| Tobu Tojo Line "Shingashi" walk 8 minutes 東武東上線「新河岸」歩8分 |
| ☆ All five buildings of subdivision ☆ Good location of 8 minutes to the station ☆ Good per sun ☆全5棟の分譲地 ☆駅まで8分の好立地 ☆陽当たり良好 |
| ■ Local property ■ You can your tour of the day per. There is a non-public information ◇ ◇ can tell because local staff from. Follow-up after your purchase also we will respond quickly. ◆ Development subdivision in, City gas, Fiscal year Available, Design house performance with evaluation, Construction housing performance with evaluation, Seismic fit, Measures to conserve energy, Corresponding to the flat-35S, Pre-ground survey, Super close, It is close to the city, System kitchen, Yang per good, All room storage, Flat to the station, A quiet residential area, Washbasin with shower, Face-to-face kitchen, Barrier-free, Bathroom 1 tsubo or more, 2-story, South balcony, Double-glazing, Otobasu, Warm water washing toilet seat, Underfloor Storage, The window in the bathroom, TV monitor interphone, Ventilation good, Flat terrain ■地元物件■につき当日のご見学ができます。地元出身のスタッフだからお伝えできる◇未公開情報◇があります。ご購入後のアフターフォローもスピーディに対応致します。◆開発分譲地内、都市ガス、年度内入居可、設計住宅性能評価付、建設住宅性能評価付、耐震適合、省エネルギー対策、フラット35Sに対応、地盤調査済、スーパーが近い、市街地が近い、システムキッチン、陽当り良好、全居室収納、駅まで平坦、閑静な住宅地、シャワー付洗面台、対面式キッチン、バリアフリー、浴室1坪以上、2階建、南面バルコニー、複層ガラス、オートバス、温水洗浄便座、床下収納、浴室に窓、TVモニタ付インターホン、通風良好、平坦地 |
Features pickup 特徴ピックアップ | | Construction housing performance with evaluation / Design house performance with evaluation / Measures to conserve energy / Corresponding to the flat-35S / Pre-ground survey / Seismic fit / Fiscal year Available / Super close / It is close to the city / System kitchen / Yang per good / All room storage / Flat to the station / A quiet residential area / Washbasin with shower / Face-to-face kitchen / Barrier-free / Bathroom 1 tsubo or more / 2-story / South balcony / Double-glazing / Otobasu / Warm water washing toilet seat / Underfloor Storage / The window in the bathroom / TV monitor interphone / Ventilation good / City gas / Flat terrain / Development subdivision in 建設住宅性能評価付 /設計住宅性能評価付 /省エネルギー対策 /フラット35Sに対応 /地盤調査済 /耐震適合 /年度内入居可 /スーパーが近い /市街地が近い /システムキッチン /陽当り良好 /全居室収納 /駅まで平坦 /閑静な住宅地 /シャワー付洗面台 /対面式キッチン /バリアフリー /浴室1坪以上 /2階建 /南面バルコニー /複層ガラス /オートバス /温水洗浄便座 /床下収納 /浴室に窓 /TVモニタ付インターホン /通風良好 /都市ガス /平坦地 /開発分譲地内 | Event information イベント情報 | | Local sales meeting schedule / Now open 現地販売会日程/公開中 | Price 価格 | | 24,800,000 yen ~ 29,300,000 yen 2480万円 ~ 2930万円 | Floor plan 間取り | | 3LDK + S (storeroom) ~ 4LDK 3LDK+S(納戸) ~ 4LDK | Units sold 販売戸数 | | 5 units 5戸 | Total units 総戸数 | | 5 units 5戸 | Land area 土地面積 | | 100.11 sq m ~ 137.02 sq m (30.28 tsubo ~ 41.44 tsubo) (Registration) 100.11m2 ~ 137.02m2(30.28坪 ~ 41.44坪)(登記) | Building area 建物面積 | | 86.11 sq m ~ 93.98 sq m (26.04 tsubo ~ 28.42 tsubo) (measured) 86.11m2 ~ 93.98m2(26.04坪 ~ 28.42坪)(実測) | Completion date 完成時期(築年月) | | March 2014 mid-scheduled 2014年3月中旬予定 | Address 住所 | | Kawagoe City Prefecture, Oaza sand 1044-20 埼玉県川越市大字砂1044-20 | Traffic 交通 | | Tobu Tojo Line "Shingashi" walk 8 minutes JR Kawagoe Line "Minami Furuya" walk 28 minutes Tobu Tojo Line "Kamifukuoka" walk 30 minutes 東武東上線「新河岸」歩8分 JR川越線「南古谷」歩28分 東武東上線「上福岡」歩30分
| Related links 関連リンク | | [Related Sites of this company] 【この会社の関連サイト】 | Person in charge 担当者より | | Rep Bito Yu Age: 30 Daigyokai Experience: 15 years of the "smile of those who populated" as a real estate professional that take advantage of the sales experience of more than 15 years to the motto, High-quality service ・ information ・ We will carry out the advice of just because you live selection of support and local born along with the trust 担当者尾藤 郁年齢:30代業界経験:15年「住まれる方の笑顔」をモットーに15年以上の販売経験を活かした不動産のプロフェッショナルとして、質の高いサービス・情報・信頼と共にお住まい選びのサポートと地元出身だからこそのアドバイスをさせて頂きます | Contact お問い合せ先 | | TEL: 0800-603-7395 [Toll free] mobile phone ・ Also available from PHS Caller ID is not notified Please contact the "saw SUUMO (Sumo)" If it does not lead, If the real estate company TEL:0800-603-7395【通話料無料】携帯電話・PHSからもご利用いただけます 発信者番号は通知されません 「SUUMO(スーモ)を見た」と問い合わせください つながらない方、不動産会社の方は
| Building coverage, floor area ratio 建ぺい率・容積率 | | Kenpei rate: 60%, Volume ratio: 200% 建ペい率:60%、容積率:200% | Time residents 入居時期 | | March 2014 in late schedule 2014年3月下旬予定 | Land of the right form 土地の権利形態 | | Ownership 所有権 | Structure and method of construction 構造・工法 | | Wooden 2-story 木造2階建 | Use district 用途地域 | | One dwelling 1種住居 | Land category 地目 | | Residential land 宅地 | Other limitations その他制限事項 | | Regulations have by the Landscape Act, Shade limit Yes 景観法による規制有、日影制限有 | Overview and notices その他概要・特記事項 | | Contact: Bito Yu, Building confirmation number: HPA-13-07194-1 issue other 担当者:尾藤 郁、建築確認番号:HPA-13-07194-1号他 | Company profile 会社概要 | | <Mediation> Saitama Governor (2) the first 020,984 No. Century 21 (stock) life buddy Yubinbango356-0050 Saitama Prefecture Fujimino Fujimino 4-13-13 <仲介>埼玉県知事(2)第020984号センチュリー21(株)ライフバディ〒356-0050 埼玉県ふじみ野市ふじみ野4-13-13 |
Local appearance photo現地外観写真  Local (11 May 2013) Shooting
現地(2013年11月)撮影
Local photos, including front road前面道路含む現地写真  Local (11 May 2013) Shooting
現地(2013年11月)撮影
Local appearance photo現地外観写真  Local (11 May 2013) Shooting
現地(2013年11月)撮影
 Local (11 May 2013) Shooting
現地(2013年11月)撮影
Same specifications photos (living)同仕様写真(リビング)  Same specifications
同仕様
Same specifications photo (bathroom)同仕様写真(浴室)  Same specifications
同仕様
Same specifications photo (kitchen)同仕様写真(キッチン)  Same specifications
同仕様
Supermarketスーパー  Commodities Iida until Shingashi shop 417m
コモディイイダ新河岸店まで417m
Same specifications photos (Other introspection)同仕様写真(その他内観)  Same specifications
同仕様
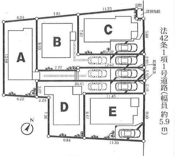
The entire compartment Figure全体区画図  Compartment figure
区画図
Local appearance photo現地外観写真  Local (11 May 2013) Shooting
現地(2013年11月)撮影
Supermarketスーパー  1108m until Inageya Kawagoe Shingashi shop
いなげや川越新河岸店まで1108m
Local appearance photo現地外観写真  Local (11 May 2013) Shooting
現地(2013年11月)撮影
Junior high school中学校  1511m to Kawagoe Sand corn junior high school
川越市立砂中学校まで1511m
Local appearance photo現地外観写真  Local (11 May 2013) Shooting
現地(2013年11月)撮影
Primary school小学校  1033m to Kawagoe City higher-order Elementary School
川越市立高階小学校まで1033m
Local appearance photo現地外観写真  Local (11 May 2013) Shooting
現地(2013年11月)撮影
Location
|