New Homes » Kanto » Saitama » Kawagoe
 
| | Kawagoe City Prefecture 埼玉県川越市 |
| JR Kawagoe Line "Kawagoe" walk 18 minutes JR川越線「川越」歩18分 |
| The house that was to form a happy life essence of the Nordic, It is "Nordic House". 北欧のしあわせな暮らしのエッセンスを形にした住まいが、「北欧ハウス」です。 |
| The Kawagoe will remain also "rooftops of warehouse building" is now. Warehouse building is a clever fire-resistant construction to prevent the catch fire, Is what developed as Edo townhouse format of. It can not be seen easily by now, We kept the Edo vestiges. Heisei 11 years in December was selected to the "conservation district of traditional buildings" in the country, In January 2007, it was selected in the "beautiful historic climate 100 election in Japan". 川越には「蔵造りの町並み」が今も残っています。蔵造りは類焼を防ぐための巧妙な耐火建築で、江戸の町家形式として発達したものです。今ではなかなか見ることのできない、江戸の面影をとどめています。平成11年12月には国の「重要伝統的建造物群保存地区」に選定され、平成19年1月には「美しい日本の歴史的風土100選」に選定されました。 |
Local guide map 現地案内図 | | Local guide map 現地案内図 | Features pickup 特徴ピックアップ | | Corresponding to the flat-35S / Pre-ground survey / 2 along the line more accessible / Super close / It is close to the city / Facing south / System kitchen / Bathroom Dryer / All room storage / Flat to the station / Siemens south road / A quiet residential area / LDK15 tatami mats or more / Around traffic fewer / Or more before road 6m / Corner lot / Japanese-style room / Shaping land / garden / Washbasin with shower / Face-to-face kitchen / Wide balcony / Toilet 2 places / Bathroom 1 tsubo or more / 2-story / South balcony / Double-glazing / Otobasu / Warm water washing toilet seat / Underfloor Storage / Urban neighborhood / Dish washing dryer / Walk-in closet / Water filter / City gas / Flat terrain / Development subdivision in フラット35Sに対応 /地盤調査済 /2沿線以上利用可 /スーパーが近い /市街地が近い /南向き /システムキッチン /浴室乾燥機 /全居室収納 /駅まで平坦 /南側道路面す /閑静な住宅地 /LDK15畳以上 /周辺交通量少なめ /前道6m以上 /角地 /和室 /整形地 /庭 /シャワー付洗面台 /対面式キッチン /ワイドバルコニー /トイレ2ヶ所 /浴室1坪以上 /2階建 /南面バルコニー /複層ガラス /オートバス /温水洗浄便座 /床下収納 /都市近郊 /食器洗乾燥機 /ウォークインクロゼット /浄水器 /都市ガス /平坦地 /開発分譲地内 | Property name 物件名 | | Nordic House - an easy-to-use Mato stylish interior. Kawagoe-cho, Shinjuku / Notice advertising 北欧ハウス-使いやすい間取お洒落な内装。川越市新宿町/予告広告 | Price 価格 | | Undecided 未定 | Floor plan 間取り | | 3LDK ~ 4LDK 3LDK ~ 4LDK | Units sold 販売戸数 | | Undecided 未定 | Total units 総戸数 | | 12 units 12戸 | Land area 土地面積 | | 103 sq m ・ 130 sq m (registration) 103m2・130m2(登記) | Building area 建物面積 | | 94.5 sq m ~ 108.52 sq m 94.5m2 ~ 108.52m2 | Driveway burden-road 私道負担・道路 | | None なし | Completion date 完成時期(築年月) | | Mid-May 2014 2014年5月中旬予定 | Address 住所 | | Kawagoe City Prefecture, Shinjuku-cho 5-22-18, 埼玉県川越市新宿町5-22-18、他 | Traffic 交通 | | JR Kawagoe Line "Kawagoe" walk 18 minutes Tobu Tojo Line "Kawagoe" walk 25 minutes JR川越線「川越」歩18分 東武東上線「川越市」歩25分
| Related links 関連リンク | | [Related Sites of this company] 【この会社の関連サイト】 | Contact お問い合せ先 | | TEL: 0800-602-7131 [Toll free] mobile phone ・ Also available from PHS Caller ID is not notified Please contact the "saw SUUMO (Sumo)" If it does not lead, If the real estate company TEL:0800-602-7131【通話料無料】携帯電話・PHSからもご利用いただけます 発信者番号は通知されません 「SUUMO(スーモ)を見た」と問い合わせください つながらない方、不動産会社の方は
| Sale schedule 販売スケジュール | | ※ Plans to sell in mid-March 2014. ※ Plans to sell in mid-March 2014. ※2014年3月中旬より販売予定。※2014年3月中旬より販売予定。 | Building coverage, floor area ratio 建ぺい率・容積率 | | Building coverage 60% 70% volume rate of 160% 200% 建ぺい率60% 70% 容積率160% 200% | Time residents 入居時期 | | June 2014 schedule 2014年6月予定 | Land of the right form 土地の権利形態 | | Ownership 所有権 | Structure and method of construction 構造・工法 | | Wooden 2-story (conventional method) 木造2階建(在来工法) | Construction 施工 | | KI Star Real Estate Co., Ltd. ケイアイスター不動産株式会社 | Use district 用途地域 | | One middle and high 1種中高 | Land category 地目 | | Field (current state: residential land) 畑 (現況:宅地) | Other limitations その他制限事項 | | ※ Including garage area 10.14m2: 1 Building ※ Parking spaces: One (1 ・ 5 ・ 12 Building), Two (2 ~ 4, 6 ~ 11 Building) ※ Development activities permitted: No. 2500620 (2013 July 29, 2008) ※ Development change permission: No. 2500621 (2013 September 2, 2009) ※ Development change permission: No. 2500622 (2013 1 ※1号棟:ガレージ面積10.14m2含む ※駐車スペース:1台(1・5・12号棟)、2台(2 ~ 4、6 ~ 11号棟) ※開発行為許可:第2500620号(平成25年7月29日) ※開発変更許可:第2500621号(平成25年9月2日) ※開発変更許可:第2500622号(平成25年1 | Overview and notices その他概要・特記事項 | | Building confirmation number: No. SJK-KX1311042721 (2013 November 27, 2009), other 建築確認番号:第SJK-KX1311042721号(平成25年11月27日)、他 | Company profile 会社概要 | | <Seller> Minister of Land, Infrastructure and Transport (4) No. 005508 KI Star Real Estate Co., Ltd. Kawagoe shop Yubinbango350-1113 Kawagoe City Prefecture Tamachi 3-8 <売主>国土交通大臣(4)第005508号ケイアイスター不動産(株)川越店〒350-1113 埼玉県川越市田町3-8 |

 Rendering
完成予想図
Same specifications photos (living)同仕様写真(リビング)  ■ Eco-carat nice design characteristic, Ecocarat. Also function was also equipped with a "to control the moisture with us humidity control function" and "deodorant function that will erase the smell" in fulfilling appearance, Installation nice tile also the body is in the living room
■エコカラットステキなデザインが特徴的な、エコカラット。機能も充実で「湿気をコントロールしてくれる調湿機能」「匂いを消してくれる消臭機能」をそなえた見た目にも、体にもステキなタイルがリビングに設置
Same specifications photos (Other introspection)同仕様写真(その他内観)  ■ Washroom
■洗面所
 ■ Accent wall satchel and hat and physical education clothes bag, etc., Installing a wall hook, which is multiplied by a nephew and I tend to things Pontsu. Also chose some of the design of the hook. Without breaking the design of the room, Cleaner can be wall
■アクセントウォールランドセルや帽子や体育着袋など、ポンッとおいてしましがちな物をかけられる壁面フックを設置。フックもデザイン性のあるものをチョイス。お部屋のデザインを崩すことなく、スッキリできる壁
 ■ It installed a large mirror that grooming can check the entrance mirror entrance.
■エントランスミラーエントランスに身だしなみをチェックできる大きなミラーを設置。
Same specifications photos (living)同仕様写真(リビング)  ■ Before gate counter kitchen, design ・ durability ・ Established an excellent counter to usability. And the children of the study and stuck or eat breakfast, It is also useful as a counter to put the dishes.
■ゲートカウンターキッチン前には、デザイン・耐久性・使い勝手に優れたカウンターを設置。お子様の勉強やささっと朝食を食べれたり、お料理を置くカウンターとしても便利です。
 ■ Study counter is not put quite as well as you to put a later study counter. Everyday use of PC Ya, Audio class. Study desk for children Ya, Convenience A that can use tailored to the TPO, etc. instead ironing board of wife
■スタディーカウンター後から置こうとしてもなかなか置けないのがスタディーカウンター。普段使いのPCや、オーディオ類。お子様の勉強机や、奥様のアイロン台変わりなどTPOに合わせた使い方ができる便利ア
Same specifications photos (Other introspection)同仕様写真(その他内観)  ■ Such as the walls of the niche LDK space to design a niche (the wall that was hollowed out a wall in a concave shape), Decorated, such as family photos.
■ニッチLDKスペースの壁などにニッチ(壁を凹状にくりぬいた壁)を設計し、家族の写真など飾れます。
Same specifications photos (appearance)同仕様写真(外観)  ■ The high heat-insulating door is in thermal insulation door entrance. It adopted a multilayer glass insulation panel door of the aluminum profile frame and the door thickness 42mm, It does not escape the room of heat.
■断熱ドア玄関には断熱性の高いドアを。アルミ形材枠とドア厚42mmの断熱パネルドアに複層ガラスを採用し、室内の熱を逃がさないようにしています。
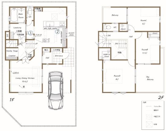
Floor plan間取り図  (1 Building), Price TBD , 3LDK, Land area 111.35 sq m , Building area 98.12 sq m
(1号棟)、価格 未定 、3LDK、土地面積111.35m2、建物面積98.12m2
Station駅  Tobu Tojo Line "Kawagoe" 1370m to the station
東武東上線「川越」駅まで1370m
Bank銀行  Saitama suspension credit union 280m to Minami Kawagoe branch
埼玉懸信用金庫 川越南支店まで280m
Primary school小学校  710m to Kawagoe Municipal Shinjuku Elementary School
川越市立新宿小学校まで710m
Junior high school中学校  1060m to Kawagoe Jonan Junior High School
川越市立城南中学校まで1060m
Supermarketスーパー  Yaoko 240m to Kawagoe Shinjuku
ヤオコー 川越新宿店まで240m
Hospital病院  Sekishindo to the hospital 1365m
赤心堂病院まで1365m
Post office郵便局  495m to Kawagoe Asahimachi post office
川越旭町郵便局まで495m
Local photos, including front road前面道路含む現地写真  Local (12 May 2013) Shooting
現地(2013年12月)撮影
 Local guide map
現地案内図
 Local (12 May 2013) Shooting
現地(2013年12月)撮影
Drug storeドラッグストア  Drag Seimusu 240m to Kawagoe Shinjuku
ドラッグセイムス 川越新宿店まで240m
 The entire compartment Figure
全体区画図
Government office役所  Kawagoe City Hall 950m to the south community center
川越市役所 南公民館まで950m
Location
|