|
|
Kawagoe City Prefecture
埼玉県川越市
|
|
Tobu Tojo Line "Shingashi" walk 17 minutes
東武東上線「新河岸」歩17分
|
|
A quiet residential area, Living environment favorable Popular face-to-face kitchen to wife To Shinjuku 42 minutes To Shibuya 47 minutes
閑静な住宅地、住環境良好 奥様に人気の対面キッチン 新宿まで42分 渋谷まで47分
|
|
A quiet residential area, Living environment favorable Popular face-to-face kitchen to wife To Shinjuku 42 minutes To Shibuya 47 minutes
閑静な住宅地、住環境良好 奥様に人気の対面キッチン 新宿まで42分 渋谷まで47分
|
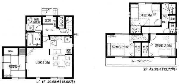
Features pickup 特徴ピックアップ | | Corresponding to the flat-35S / System kitchen / A quiet residential area / LDK15 tatami mats or more / Face-to-face kitchen / Toilet 2 places / Bathroom 1 tsubo or more / TV monitor interphone フラット35Sに対応 /システムキッチン /閑静な住宅地 /LDK15畳以上 /対面式キッチン /トイレ2ヶ所 /浴室1坪以上 /TVモニタ付インターホン |
Price 価格 | | 23.8 million yen 2380万円 |
Floor plan 間取り | | 4LDK 4LDK |
Units sold 販売戸数 | | 1 units 1戸 |
Total units 総戸数 | | 1 units 1戸 |
Land area 土地面積 | | 99.89 sq m (30.21 tsubo) (Registration) 99.89m2(30.21坪)(登記) |
Building area 建物面積 | | 91.91 sq m (27.80 tsubo) (Registration) 91.91m2(27.80坪)(登記) |
Driveway burden-road 私道負担・道路 | | Nothing, North 4m width 無、北4m幅 |
Completion date 完成時期(築年月) | | November 2013 2013年11月 |
Address 住所 | | Kawagoe City Prefecture, Oaza Terao 埼玉県川越市大字寺尾 |
Traffic 交通 | | Tobu Tojo Line "Shingashi" walk 17 minutes Tobu Tojo Line "Kamifukuoka" walk 23 minutes 東武東上線「新河岸」歩17分 東武東上線「上福岡」歩23分
|
Related links 関連リンク | | [Related Sites of this company] 【この会社の関連サイト】 |
Contact お問い合せ先 | | TEL: 0800-808-9320 [Toll free] mobile phone ・ Also available from PHS Caller ID is not notified Please contact the "saw SUUMO (Sumo)" If it does not lead, If the real estate company TEL:0800-808-9320【通話料無料】携帯電話・PHSからもご利用いただけます 発信者番号は通知されません 「SUUMO(スーモ)を見た」と問い合わせください つながらない方、不動産会社の方は
|
Building coverage, floor area ratio 建ぺい率・容積率 | | Fifty percent ・ Hundred percent 50%・100% |
Time residents 入居時期 | | Consultation 相談 |
Land of the right form 土地の権利形態 | | Ownership 所有権 |
Structure and method of construction 構造・工法 | | Wooden 2-story 木造2階建 |
Use district 用途地域 | | One low-rise 1種低層 |
Overview and notices その他概要・特記事項 | | Facilities: Public Water Supply, Building confirmation number: first SJK-KX1311010547, Parking: car space 設備:公営水道、建築確認番号:第SJK-KX1311010547、駐車場:カースペース |
Company profile 会社概要 | | <Mediation> Saitama Governor (3) No. 019135 (Corporation) Prefecture Building Lots and Buildings Transaction Business Association (Corporation) metropolitan area real estate Fair Trade Council member Co., Ltd. Prefecture, housing counseling center Yubinbango354-0015 Saitama Prefecture Fujimi Higashimizuhodai 2-9-12 <仲介>埼玉県知事(3)第019135号(公社)埼玉県宅地建物取引業協会会員 (公社)首都圏不動産公正取引協議会加盟(株)埼玉県住宅相談センター〒354-0015 埼玉県富士見市東みずほ台2-9-12 |