New Homes » Kanto » Saitama » Kawagoe
 
| | Kawagoe City Prefecture 埼玉県川越市 |
| Tobu Tojo Line "Tsurugashima" walk 20 minutes 東武東上線「鶴ヶ島」歩20分 |
| Since Zento of shaping land facing the south side 6M public road per day is good. Car space is we ensure the 2 car. Low-E glass pair, It is energy-saving Eco Jaws water heater. 全棟南側6M公道に面している整形地なので日当たり良好です。カースペースは2台分を確保いたしました。Low-Eペアガラス、エコジョーズ給湯器で省エネです。 |
| ■ Green, quiet residential area, It is safe to be less child car street. ■ Kawagoe Nishio ・ 300M to Kawagoe Nishinaka ■ Supermarket ・ Day-to-day shopping spot, such as a convenience store is located abundant. ■ Pre-ground survey, With ground guarantee ■ Kitchen is a water purifier with faucet standard on artificial marble top. ■ Entrance door card key system ■緑豊かで閑静な住宅街、車通りも少なくお子様にも安心です。■川越西小・川越西中まで300M■スーパー・コンビニなど日々のお買いものスポットは豊富にあります。■地盤調査済み、地盤保証付き■キッチンは人造大理石トップで浄水器付水栓標準装備です。■玄関ドアはカードキーシステム |
Features pickup 特徴ピックアップ | | Parking two Allowed / 2 along the line more accessible / System kitchen / All room storage / Flat to the station / Siemens south road / A quiet residential area / LDK15 tatami mats or more / Around traffic fewer / Or more before road 6m / Japanese-style room / Shaping land / Washbasin with shower / Face-to-face kitchen / Wide balcony / Toilet 2 places / Bathroom 1 tsubo or more / 2-story / Double-glazing / Otobasu / Warm water washing toilet seat / The window in the bathroom / TV monitor interphone / Walk-in closet / Water filter / City gas / Flat terrain / Readjustment land within 駐車2台可 /2沿線以上利用可 /システムキッチン /全居室収納 /駅まで平坦 /南側道路面す /閑静な住宅地 /LDK15畳以上 /周辺交通量少なめ /前道6m以上 /和室 /整形地 /シャワー付洗面台 /対面式キッチン /ワイドバルコニー /トイレ2ヶ所 /浴室1坪以上 /2階建 /複層ガラス /オートバス /温水洗浄便座 /浴室に窓 /TVモニタ付インターホン /ウォークインクロゼット /浄水器 /都市ガス /平坦地 /区画整理地内 | Event information イベント情報 | | Local guide Board (please make a reservation beforehand) schedule / Every Saturday, Sunday and public holidays ◇ consultation of mortgage ・ ・ ・ If the down payment is less, please contact us ◇ tour of the model house ・ ・ ・ We will guide you through the neighborhood of the completed properties ◇ specification of your description ・ ・ ・ Pamphlet, Give you you a detailed your description in the specification, etc. 現地案内会(事前に必ず予約してください)日程/毎週土日祝◇住宅ローンのご相談・・・頭金が少ない場合もご相談下さい◇モデルハウスの見学・・・近隣の完成物件をご案内いたします◇仕様のご説明・・・パンフレット、仕様書等で詳細なご説明をさしあげます | Property name 物件名 | | ◇ Libre Garden ◇ YoshidaShin-cho 2-chome, all five buildings ◇リーブルガーデン◇吉田新町2丁目全5棟 | Price 価格 | | 25,800,000 yen ~ 27,800,000 yen 2580万円 ~ 2780万円 | Floor plan 間取り | | 4LDK 4LDK | Units sold 販売戸数 | | 5 units 5戸 | Total units 総戸数 | | 5 units 5戸 | Land area 土地面積 | | 110.22 sq m ~ 113.15 sq m (33.34 tsubo ~ 34.22 tsubo) (Registration) 110.22m2 ~ 113.15m2(33.34坪 ~ 34.22坪)(登記) | Building area 建物面積 | | 96.88 sq m ~ 98.54 sq m (29.30 tsubo ~ 29.80 square meters) 96.88m2 ~ 98.54m2(29.30坪 ~ 29.80坪) | Driveway burden-road 私道負担・道路 | | Road width: 6m, Asphaltic pavement 道路幅:6m、アスファルト舗装 | Completion date 完成時期(築年月) | | April 2014 schedule 2014年4月予定 | Address 住所 | | Kawagoe City Prefecture YoshidaShin cho 2-13 埼玉県川越市吉田新町2-13 | Traffic 交通 | | Tobu Tojo Line "Tsurugashima" walk 20 minutes JR Kawagoe Line "Matoba" walk 25 minutes Tobu Tojo Line "Tsurugashima" 10 minutes Yoshida Ayumi Shinmachi 3 minutes by bus 東武東上線「鶴ヶ島」歩20分 JR川越線「的場」歩25分 東武東上線「鶴ヶ島」バス10分吉田新町歩3分
| Related links 関連リンク | | [Related Sites of this company] 【この会社の関連サイト】 | Contact お問い合せ先 | | Yamashita builders (Ltd.) TEL: 0800-805-6485 [Toll free] mobile phone ・ Also available from PHS Caller ID is not notified Please contact the "saw SUUMO (Sumo)" If it does not lead, If the real estate company 山下工務店(株)TEL:0800-805-6485【通話料無料】携帯電話・PHSからもご利用いただけます 発信者番号は通知されません 「SUUMO(スーモ)を見た」と問い合わせください つながらない方、不動産会社の方は
| Most price range 最多価格帯 | | 27 million yen (4 units) 2700万円台(4戸) | Building coverage, floor area ratio 建ぺい率・容積率 | | Kenpei rate: 60% ・ 200% 建ペい率:60%・200% | Time residents 入居時期 | | Consultation 相談 | Land of the right form 土地の権利形態 | | Ownership 所有権 | Structure and method of construction 構造・工法 | | Steel 2-story 鉄骨2階建 | Use district 用途地域 | | Two low-rise 2種低層 | Land category 地目 | | Residential land 宅地 | Overview and notices その他概要・特記事項 | | Building confirmation number: SJ-KX1311032952 other 建築確認番号:SJ-KX1311032952他 | Company profile 会社概要 | | <Marketing alliance (agency)> Saitama Governor (1) the first 021,575 No. Yamashita builders Co. Yubinbango351-0006 Saitama Prefecture Asaka Nakamachi 2-2-19 <販売提携(代理)>埼玉県知事(1)第021575号山下工務店(株)〒351-0006 埼玉県朝霞市仲町2-2-19 |
Rendering (appearance)完成予想図(外観)  Building 2 Rendering
2号棟完成予想図
 4 Building Rendering ・ ・ ・ Orthodox appearance that even after 10 years timeless
4号棟完成予想図・・・10年後も飽きのこないオーソドックスな外観
The entire compartment Figure全体区画図  Compartment figure
区画図
Local appearance photo現地外観写真  Selling local December 23 ・ ・ ・ Day is good even in this time.
販売現地12月23日・・・この時期でも日当たり良好です。
Same specifications photos (appearance)同仕様写真(外観)  Seller same specifications construction cases ・ ・ ・ appearance
売主同仕様施工例・・・外観
Same specifications photos (living)同仕様写真(リビング)  Seller same specifications construction cases ・ ・ ・ living
売主同仕様施工例・・・リビング
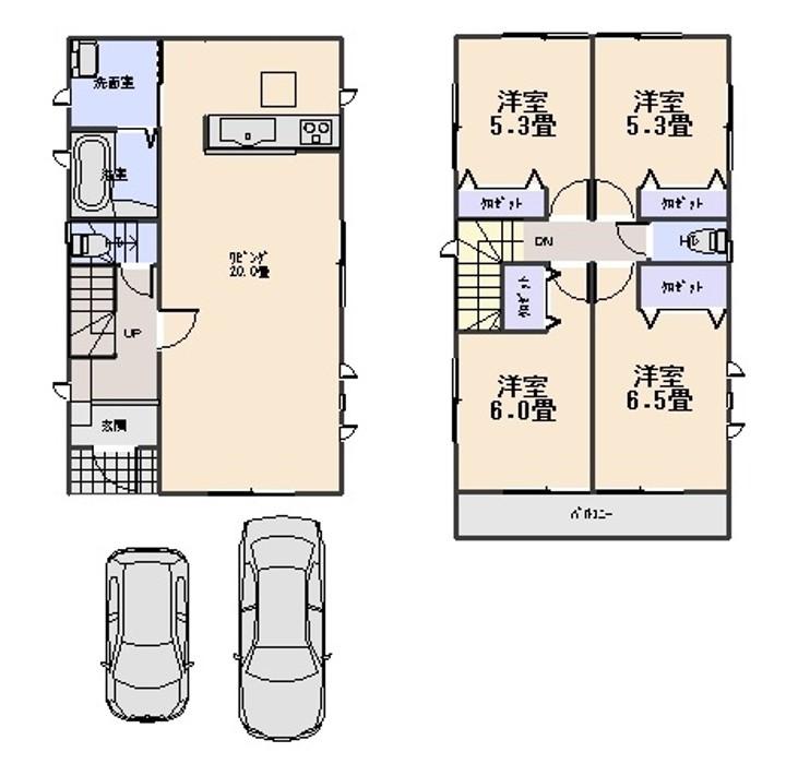
Floor plan間取り図  (Building 2), Price 27.3 million yen, 4LDK, Land area 113.07 sq m , Building area 96.88 sq m
(2号棟)、価格2730万円、4LDK、土地面積113.07m2、建物面積96.88m2
 (1 Building), Price 27,800,000 yen, 4LDK, Land area 113.15 sq m , Building area 97.7 sq m
(1号棟)、価格2780万円、4LDK、土地面積113.15m2、建物面積97.7m2
 (3 Building), Price 27.3 million yen, 4LDK, Land area 112.98 sq m , Building area 98.54 sq m
(3号棟)、価格2730万円、4LDK、土地面積112.98m2、建物面積98.54m2
 (4 Building), Price 25,800,000 yen, 4LDK, Land area 110.22 sq m , Building area 97.7 sq m
(4号棟)、価格2580万円、4LDK、土地面積110.22m2、建物面積97.7m2
 (5 Building), Price 27,800,000 yen, 4LDK, Land area 113.07 sq m , Building area 97.7 sq m
(5号棟)、価格2780万円、4LDK、土地面積113.07m2、建物面積97.7m2
Other Equipmentその他設備  To take full advantage of the dead space of the feet, The pursuit of storage capacity and ease of use "slide type"
足元のデッドスペースをフル活用し、収納力と使い勝手を追求した「スライドタイプ」
 Enhance the thermal efficiency by effectively utilizing the waste heat that occurs when a boil water, If "energy-saving water heater" Eco Jaws, Herase the amount of gas, Since CO2 emissions also become less of, It can contribute to the prevention of global warming, In addition you can also save gas rates.
お湯を沸かすときに発生する排熱を有効利用して熱効率を高めた、“省エネ給湯器”エコジョーズなら、ガスの使用量を減らせ、CO2の排出も少なくなるので、地球温暖化防止に貢献でき、さらにガス料金の節約もできます。
 ・ The height of the wash basin is 800mm. Washing the face can also be shampoo also in a comfortable position. ・ It is a bowl shape in pursuit of ease of use. ・ Freshly every type of toothbrush comes with. ・ It can be a wide range of storage from some of the height that you want to stock up small.
・洗面台の高さは800mm。洗顔もシャンプーも楽な姿勢でできます。・使いやすさを追求したボウル形状です。・置き型の歯ブラシ立てが付いています。・ストックしておきたい高さのあるものから小物まで幅広く収納することができます。
 ・ Firm water-saving in the new shape that eliminates the waste. ・ In devising friendly body, Comfortable entering and relaxation. ・ Water-saving effect About 14%
・ムダをなくした新形状でしっかり節水。・身体にやさしい工夫で、くつろぎの入り心地。・節水効果 約14%
 ・ Borderless shape in consideration of the cleaning ease ・ Tornado cleaning to wash all over the inside of the toilet bowl in the double of water flow ・ The pottery surface was coated in slippery at the nano-level "Sefi on Detect" toilet bowl ・ Automatically from "deodorizing", Deodorizing in cooperation switches to suction weight of about 2 times the "power deodorizing"
・お掃除しやすさを考慮したフチなし形状・ダブルの水流で便器内をくまなく洗浄するトルネード洗浄・陶器表面をナノレベルでツルツルにコーティングした「セフィオンテクト」便器・自動で「脱臭」から、吸い込み量約2倍の「パワー脱臭」に切り替わり協力に脱臭
 Residential insulation performance will depend largely on the performance of the opening. Door that has been adopted in this property is the thermal insulation specifications to frame. Also, The window glass, Greatly solar heat and ultraviolet light to adopt a thermal barrier Low-e double glass that can be cut, To achieve a reduction of good indoor environment and the heating and cooling load.
住宅の断熱性能は開口部の性能に大きく左右されます。当物件で採用しているドアは枠まで断熱仕様です。また、窓ガラスには、日射熱や紫外線を大幅にカットできる遮熱Low-e複層ガラスを採用し、良好な室内環境と冷暖房負荷の軽減を実現します。
Construction ・ Construction method ・ specification構造・工法・仕様  Standard adopted "rebar-filled concrete mat foundation" to the foundation in this property.
当物件では基礎に「鉄筋入りコンクリートベタ基礎」を標準採用。
 In this listing is, Using a ceramic system of siding on the outer wall finish,
当物件では、外壁仕上材に窯業系のサイディングを使用して、
 Adopt a "seismic hardware" is at the junction anchoring the structure material.
構造材をつなぎとめる接合部には「耐震金物」を採用。
Local photos, including front road前面道路含む現地写真  Selling local December 23 ・ ・ ・ Facing the 6M south road
販売現地12月23日・・・6M南道路に面しています
Rendering (appearance)完成予想図(外観)  Building 2 Rendering
2号棟完成予想図
Supermarketスーパー  Ecos until Kawatsuru shop 1001m
エコス川鶴店まで1001m
 814m until Inageya Kawagoe Isehara shop
いなげや川越伊勢原店まで814m
Drug storeドラッグストア  Until Biggue Matsugaoka shop 500m
ビッグエー松が丘店まで500m
Junior high school中学校  251m to Kawagoe Municipal Kawagoe West Junior High School
川越市立川越西中学校まで251m
Primary school小学校  Kawagoe City Museum Kawagoe Nishi Elementary School 300m to
川越市立川越西小学校まで300m
Kindergarten ・ Nursery幼稚園・保育園  Kasahata to rape flower nursery 671m
笠幡菜の花保育園まで671m
Park公園  968m until your Ise mound park
御伊勢塚公園まで968m
Location
|