|
|
Saitama Prefecture Kita-Katsushika District Matsubushi
埼玉県北葛飾郡松伏町
|
|
Isesaki Tobu "Kitakoshigaya" bus 30 fractional input under walk 5 minutes
東武伊勢崎線「北越谷」バス30分溜入下歩5分
|
|
Quiet and living environment favorable. It has secured two car spaces minutes! We cut 20 million yen with a wood utilization point! !
閑静で住環境良好。カースペース2台分確保してます!木材利用ポイント付きで2000万円切りました!!
|
|
A quiet residential area, All room 6 tatami mats or more, All room storage, Bathroom Dryer, Parking two Allowedese-style room, Washbasin with shower, Toilet 2 places, Otobasu, Warm water washing toilet seat, Underfloor Storage, TV monitor interphone
閑静な住宅地、全居室6畳以上、全居室収納、浴室乾燥機、駐車2台可、和室、シャワー付洗面台、トイレ2ヶ所、オートバス、温水洗浄便座、床下収納、TVモニタ付インターホン
|
Features pickup 特徴ピックアップ | | Parking two Allowed / Bathroom Dryer / All room storage / A quiet residential area / Japanese-style room / Washbasin with shower / Toilet 2 places / Otobasu / Warm water washing toilet seat / Underfloor Storage / TV monitor interphone / All room 6 tatami mats or more 駐車2台可 /浴室乾燥機 /全居室収納 /閑静な住宅地 /和室 /シャワー付洗面台 /トイレ2ヶ所 /オートバス /温水洗浄便座 /床下収納 /TVモニタ付インターホン /全居室6畳以上 |
Price 価格 | | 19,800,000 yen 1980万円 |
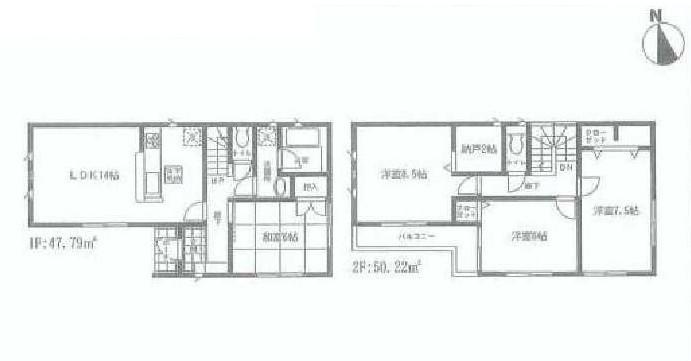
Floor plan 間取り | | 4LDK 4LDK |
Units sold 販売戸数 | | 1 units 1戸 |
Total units 総戸数 | | 5 units 5戸 |
Land area 土地面積 | | 130.53 sq m (registration) 130.53m2(登記) |
Building area 建物面積 | | 98.01 sq m (registration) 98.01m2(登記) |
Driveway burden-road 私道負担・道路 | | Nothing 無 |
Completion date 完成時期(築年月) | | January 2014 2014年1月 |
Address 住所 | | Saitama Prefecture Kita-Katsushika District Matsubushi Oaza Matsubushi 埼玉県北葛飾郡松伏町大字松伏 |
Traffic 交通 | | Isesaki Tobu "Kitakoshigaya" bus 30 fractional input under walk 5 minutes 東武伊勢崎線「北越谷」バス30分溜入下歩5分
|
Related links 関連リンク | | [Related Sites of this company] 【この会社の関連サイト】 |
Person in charge 担当者より | | Person in charge of real-estate and building FP Masaki Takayuki Age: 40 Daigyokai Experience: 10 years other than the above qualification Mortgage adviser. Your sale of Tobu wayside of real estate, Anything please contact us if you Relocation of thing. There is confidence in the sale. Please leave with peace of mind to me. 担当者宅建FP正木 孝之年齢:40代業界経験:10年上記以外資格 住宅ローンアドバイザー。東武沿線の不動産のご売却、お住み替えの事なら何でもご相談下さい。売却には自信があります。私に安心してお任せ下さい。 |
Contact お問い合せ先 | | TEL: 0800-603-0709 [Toll free] mobile phone ・ Also available from PHS Caller ID is not notified Please contact the "saw SUUMO (Sumo)" If it does not lead, If the real estate company TEL:0800-603-0709【通話料無料】携帯電話・PHSからもご利用いただけます 発信者番号は通知されません 「SUUMO(スーモ)を見た」と問い合わせください つながらない方、不動産会社の方は
|
Building coverage, floor area ratio 建ぺい率・容積率 | | 60% ・ 200% 60%・200% |
Time residents 入居時期 | | Consultation 相談 |
Land of the right form 土地の権利形態 | | Ownership 所有権 |
Structure and method of construction 構造・工法 | | Wooden 2-story 木造2階建 |
Use district 用途地域 | | Two mid-high 2種中高 |
Overview and notices その他概要・特記事項 | | Contact: Masaki Takayuki, Facilities: Public Water Supply, This sewage, Building confirmation number: No. 13UDI1W Ken 02411, Parking: car space 担当者:正木 孝之、設備:公営水道、本下水、建築確認番号:第13UDI1W建02411号、駐車場:カースペース |
Company profile 会社概要 | | <Mediation> Minister of Land, Infrastructure and Transport (11) No. 002401 (Corporation) Prefecture Building Lots and Buildings Transaction Business Association (Corporation) metropolitan area real estate Fair Trade Council member (Ltd.) a central residential real estate Solutions Division Division Sales Section Yubinbango343-0845 Saitama Prefecture Koshigaya Minami Koshigaya 1-21-2 <仲介>国土交通大臣(11)第002401号(公社)埼玉県宅地建物取引業協会会員 (公社)首都圏不動産公正取引協議会加盟(株)中央住宅不動産ソリューション事業部本部営業課〒343-0845 埼玉県越谷市南越谷1-21-2 |