New Homes » Kanto » Saitama » Niiza
 
| | Saitama Prefecture Niiza 埼玉県新座市 |
| Seibu Ikebukuro Line "Hibarigaoka" walk 20 minutes 西武池袋線「ひばりヶ丘」歩20分 |
| Corresponding to the flat-35S, Pre-ground survey, Year Available, Parking two Allowed, Super close, Facing south, System kitchen, Bathroom Dryer, Yang per good, All room storage, Siemens south road, A quiet residential area, LD フラット35Sに対応、地盤調査済、年内入居可、駐車2台可、スーパーが近い、南向き、システムキッチン、浴室乾燥機、陽当り良好、全居室収納、南側道路面す、閑静な住宅地、LD |
Features pickup 特徴ピックアップ | | Corresponding to the flat-35S / Pre-ground survey / Year Available / Parking two Allowed / Super close / Facing south / System kitchen / Bathroom Dryer / Yang per good / All room storage / Siemens south road / A quiet residential area / LDK15 tatami mats or more / Around traffic fewer / Corner lot / Japanese-style room / Shaping land / Washbasin with shower / Face-to-face kitchen / Security enhancement / Toilet 2 places / Bathroom 1 tsubo or more / 2-story / 2 or more sides balcony / South balcony / Double-glazing / Zenshitsuminami direction / Warm water washing toilet seat / Nantei / Underfloor Storage / The window in the bathroom / TV monitor interphone / Leafy residential area / Water filter / City gas / A large gap between the neighboring house / Flat terrain / Development subdivision in フラット35Sに対応 /地盤調査済 /年内入居可 /駐車2台可 /スーパーが近い /南向き /システムキッチン /浴室乾燥機 /陽当り良好 /全居室収納 /南側道路面す /閑静な住宅地 /LDK15畳以上 /周辺交通量少なめ /角地 /和室 /整形地 /シャワー付洗面台 /対面式キッチン /セキュリティ充実 /トイレ2ヶ所 /浴室1坪以上 /2階建 /2面以上バルコニー /南面バルコニー /複層ガラス /全室南向き /温水洗浄便座 /南庭 /床下収納 /浴室に窓 /TVモニタ付インターホン /緑豊かな住宅地 /浄水器 /都市ガス /隣家との間隔が大きい /平坦地 /開発分譲地内 | Price 価格 | | 27,800,000 yen ~ 34,800,000 yen 2780万円 ~ 3480万円 | Floor plan 間取り | | 4LDK 4LDK | Units sold 販売戸数 | | 17 units 17戸 | Total units 総戸数 | | 18 units 18戸 | Land area 土地面積 | | 100.04 sq m ~ 115.09 sq m (registration) 100.04m2 ~ 115.09m2(登記) | Building area 建物面積 | | 92.74 sq m ~ 98.12 sq m (registration) 92.74m2 ~ 98.12m2(登記) | Completion date 完成時期(築年月) | | In late September 2013 2013年9月下旬 | Address 住所 | | Saitama Prefecture Nizashinodera 3 埼玉県新座市野寺3 | Traffic 交通 | | Seibu Ikebukuro Line "Hibarigaoka" walk 20 minutes 西武池袋線「ひばりヶ丘」歩20分
| Person in charge 担当者より | | Rep Watanabe Shota Age: 20 Daigyokai experience: was started five years Seibu line railroad area, Please leave Kenroku real estate of the community (founded 45 years Kenroku group). Stocks also such advertising before the information, We also will support the day of the tour. 担当者渡邊 章太年齢:20代業界経験:5年西武線沿線エリアをはじめとした、地域密着の兼六不動産(創業45年 兼六グループ)にお任せください。広告掲載前の情報なども取り揃えており、当日の見学も対応致しております。 | Contact お問い合せ先 | | TEL: 0800-603-3520 [Toll free] mobile phone ・ Also available from PHS Caller ID is not notified Please contact the "saw SUUMO (Sumo)" If it does not lead, If the real estate company TEL:0800-603-3520【通話料無料】携帯電話・PHSからもご利用いただけます 発信者番号は通知されません 「SUUMO(スーモ)を見た」と問い合わせください つながらない方、不動産会社の方は
| Most price range 最多価格帯 | | 30 million yen (2 units) 3000万円台(2戸) | Building coverage, floor area ratio 建ぺい率・容積率 | | Kenpei rate: 60%, Volume ratio: 100% 建ペい率:60%、容積率:100% | Time residents 入居時期 | | Consultation 相談 | Land of the right form 土地の権利形態 | | Ownership 所有権 | Structure and method of construction 構造・工法 | | Wooden 2-story 木造2階建 | Use district 用途地域 | | One dwelling 1種住居 | Land category 地目 | | Residential land 宅地 | Overview and notices その他概要・特記事項 | | Contact: Watanabe Shota, Building confirmation number: TKK 確済 No. 13-406 ~ 担当者:渡邊 章太、建築確認番号:TKK確済13-406号 ~ | Company profile 会社概要 | | <Mediation> Governor of Tokyo (2) the first 083,428 No. Kenroku Real Estate Co., Ltd. Yubinbango178-0061 Nerima-ku, Tokyo Ōizumigakuenchō 1-29-7 <仲介>東京都知事(2)第083428号兼六不動産(株)〒178-0061 東京都練馬区大泉学園町1-29-7 |
Same specifications photos (living)同仕様写真(リビング)  Same specifications construction cases
同仕様施工例
 Same specifications photo (bathroom)
同仕様写真(浴室)
 Same specifications photo (kitchen)
同仕様写真(キッチン)
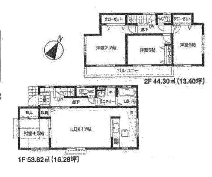
Floor plan間取り図  (12), Price 27,800,000 yen, 4LDK, Land area 110.18 sq m , Building area 92.74 sq m
(12)、価格2780万円、4LDK、土地面積110.18m2、建物面積92.74m2
 (13), Price 30,800,000 yen, 4LDK, Land area 115.09 sq m , Building area 98.12 sq m
(13)、価格3080万円、4LDK、土地面積115.09m2、建物面積98.12m2
Construction ・ Construction method ・ specification構造・工法・仕様  Standard specification
標準仕様
Location
|