New Homes » Kanto » Saitama » Niiza
 
| | Saitama Prefecture Niiza 埼玉県新座市 |
| Seibu Ikebukuro Line "Higashi Kurume" 10 minutes Ayumi Nishibori 9 minutes by bus 西武池袋線「東久留米」バス10分西堀歩9分 |
| 12 / 7 Price Cuts ・ Southwest corner lot ・ Land area 40.73 square meters 12/7値下げしました・南西角地・土地面積40.73坪 |
Features pickup 特徴ピックアップ | | Corresponding to the flat-35S / Pre-ground survey / Parking two Allowed / Immediate Available / Facing south / System kitchen / Yang per good / A quiet residential area / LDK15 tatami mats or more / Corner lot / Japanese-style room / Face-to-face kitchen / Toilet 2 places / Bathroom 1 tsubo or more / 2-story / Double-glazing / The window in the bathroom / TV monitor interphone / All room 6 tatami mats or more / City gas フラット35Sに対応 /地盤調査済 /駐車2台可 /即入居可 /南向き /システムキッチン /陽当り良好 /閑静な住宅地 /LDK15畳以上 /角地 /和室 /対面式キッチン /トイレ2ヶ所 /浴室1坪以上 /2階建 /複層ガラス /浴室に窓 /TVモニタ付インターホン /全居室6畳以上 /都市ガス | Price 価格 | | 30,800,000 yen 3080万円 | Floor plan 間取り | | 4LDK 4LDK | Units sold 販売戸数 | | 1 units 1戸 | Total units 総戸数 | | 1 units 1戸 | Land area 土地面積 | | 134.67 sq m (40.73 tsubo) (Registration) 134.67m2(40.73坪)(登記) | Building area 建物面積 | | 105.98 sq m (32.05 tsubo) (Registration) 105.98m2(32.05坪)(登記) | Driveway burden-road 私道負担・道路 | | 25.3 sq m , South 4.2m width, West 4.5m width 25.3m2、南4.2m幅、西4.5m幅 | Completion date 完成時期(築年月) | | July 2013 2013年7月 | Address 住所 | | Saitama Prefecture Niiza Ishigami 1 埼玉県新座市石神1 | Traffic 交通 | | Seibu Ikebukuro Line "Higashi Kurume" 10 minutes Ayumi Nishibori 9 minutes by bus Seibu Ikebukuro Line "Hibarigaoka" walk 35 minutes Seibu Ikebukuro Line "Kiyose" walk 38 minutes 西武池袋線「東久留米」バス10分西堀歩9分 西武池袋線「ひばりヶ丘」歩35分 西武池袋線「清瀬」歩38分
| Person in charge 担当者より | | Person in charge of real-estate and building Komura Yasuyuki Age: 40 Daigyokai Experience: 6 years [Sales manager] Popular property will get sold really fast. When you find favorite property is, Please to act as soon as possible! ! Subsequent mortgage and follow-up Please leave. 担当者宅建小村 康之年齢:40代業界経験:6年【営業課長】人気のある物件は本当に早く売れてしまいます。気に入った物件が見つかったら、早めに行動してください!!その後の住宅ローンやアフターフォローはお任せください。 | Contact お問い合せ先 | | TEL: 0800-602-5712 [Toll free] mobile phone ・ Also available from PHS Caller ID is not notified Please contact the "saw SUUMO (Sumo)" If it does not lead, If the real estate company TEL:0800-602-5712【通話料無料】携帯電話・PHSからもご利用いただけます 発信者番号は通知されません 「SUUMO(スーモ)を見た」と問い合わせください つながらない方、不動産会社の方は
| Building coverage, floor area ratio 建ぺい率・容積率 | | 60% ・ Hundred percent 60%・100% | Time residents 入居時期 | | Immediate available 即入居可 | Land of the right form 土地の権利形態 | | Ownership 所有権 | Structure and method of construction 構造・工法 | | Wooden 2-story 木造2階建 | Use district 用途地域 | | One low-rise 1種低層 | Overview and notices その他概要・特記事項 | | Contact: Komura Yasuyuki, Facilities: Public Water Supply, This sewage, City gas, Building confirmation number: SJK-KK1311030059, Parking: car space 担当者:小村 康之、設備:公営水道、本下水、都市ガス、建築確認番号:SJK-KK1311030059、駐車場:カースペース | Company profile 会社概要 | | <Mediation> Saitama Governor (1) No. 022059 (Ltd.) My Town Seibu Yubinbango352-0035 Saitama Prefecture Niiza Kurihara 5-6-24 <仲介>埼玉県知事(1)第022059号(株)マイタウン西武〒352-0035 埼玉県新座市栗原5-6-24 |
Local appearance photo現地外観写真  Friendly calm living environment in child-rearing
子育てに優しい落ち着いた住環境
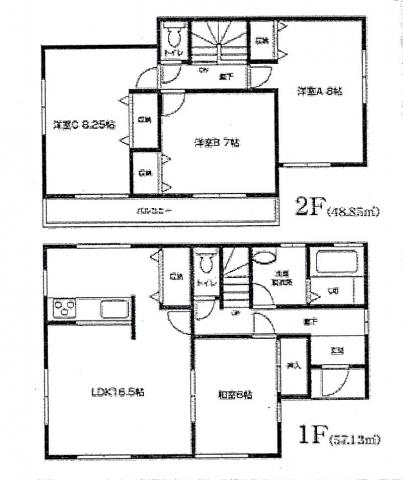
Floor plan間取り図  30,800,000 yen, 4LDK, Land area 134.67 sq m , Building area 105.98 sq m
3080万円、4LDK、土地面積134.67m2、建物面積105.98m2
Livingリビング  Bright living shine of the Interior
インテリアの映える明るいリビング
Bathroom浴室  Bright bathroom of with window
窓付きの明るい浴室
Kitchenキッチン  Face-to-face kitchen the conversation is lively
会話が弾む対面キッチン
Non-living roomリビング以外の居室  Warmth of wood friendly flooring
木の温もりが優しいフローリング
Wash basin, toilet洗面台・洗面所  Convenient Vanity
便利な洗髪洗面化粧台
Toiletトイレ  Comfortable with warm water washing toilet seat
快適な温水洗浄便座付
Primary school小学校  Niiza Tateishi God 400m up to elementary school
新座市立石神小学校まで400m
Hospital病院  Niiza 400m to the hospital
新座病院まで400m
Convenience storeコンビニ  Until the Seven-Eleven 100m
セブンイレブンまで100m
Junior high school中学校  Niiza 800m to stand sixth junior high school
新座市立第六中学校まで800m
Hospital病院  Horinouchi 828m to the hospital
堀ノ内病院まで828m
Location
|