New Homes » Kanto » Saitama » Niiza
 
| | Saitama Prefecture Niiza 埼玉県新座市 |
| Tobu Tojo Line "Wako" walk 54 minutes 東武東上線「和光市」歩54分 |
| Because of the large-scale development site, Clean streets 大規模開発現場の為、きれいな街並み |
| ● leafy residential area plenty 2 Pledge also housed ● ● loose the entire surface of 5m road ●緑豊かな住宅街●収納もたっぷり2帖●ゆったりとした全面5m道路 |
Features pickup 特徴ピックアップ | | Bathroom Dryer / Yang per good / All room storage / Flat to the station / A quiet residential area / LDK15 tatami mats or more / Around traffic fewer / Shaping land / Washbasin with shower / Face-to-face kitchen / Toilet 2 places / 2-story / South balcony / Zenshitsuminami direction / Leafy residential area / Ventilation good / Walk-in closet / Water filter / City gas / Maintained sidewalk / Flat terrain / Development subdivision in 浴室乾燥機 /陽当り良好 /全居室収納 /駅まで平坦 /閑静な住宅地 /LDK15畳以上 /周辺交通量少なめ /整形地 /シャワー付洗面台 /対面式キッチン /トイレ2ヶ所 /2階建 /南面バルコニー /全室南向き /緑豊かな住宅地 /通風良好 /ウォークインクロゼット /浄水器 /都市ガス /整備された歩道 /平坦地 /開発分譲地内 | Price 価格 | | 27,800,000 yen 2780万円 | Floor plan 間取り | | 4LDK 4LDK | Units sold 販売戸数 | | 1 units 1戸 | Total units 総戸数 | | 20 units 20戸 | Land area 土地面積 | | 100.35 sq m (registration) 100.35m2(登記) | Building area 建物面積 | | 95.17 sq m (measured) 95.17m2(実測) | Driveway burden-road 私道負担・道路 | | Share interests 591 sq m × (1 / 20), North 5m width (contact the road width 9.6m) 共有持分591m2×(1/20)、北5m幅(接道幅9.6m) | Completion date 完成時期(築年月) | | September 2013 2013年9月 | Address 住所 | | Saitama Prefecture Niiza Nobidome 1 埼玉県新座市野火止1 | Traffic 交通 | | Tobu Tojo Line "Wako" walk 54 minutes Tobu Tojo Line "Asakadai" walk 37 minutes JR Musashino Line "Niiza" walk 24 minutes 東武東上線「和光市」歩54分 東武東上線「朝霞台」歩37分 JR武蔵野線「新座」歩24分 | Contact お問い合せ先 | | TEL: 0120-487005 [Toll free] Please contact the "saw SUUMO (Sumo)" TEL:0120-487005【通話料無料】「SUUMO(スーモ)を見た」と問い合わせください | Building coverage, floor area ratio 建ぺい率・容積率 | | 60% ・ 200% 60%・200% | Time residents 入居時期 | | Consultation 相談 | Land of the right form 土地の権利形態 | | Ownership 所有権 | Structure and method of construction 構造・工法 | | Wooden 2-story 木造2階建 | Use district 用途地域 | | One dwelling 1種住居 | Overview and notices その他概要・特記事項 | | Facilities: Public Water Supply, This sewage, City gas, Building confirmation number: 13UDI1W1 Ken 01073, Parking: car space 設備:公営水道、本下水、都市ガス、建築確認番号:13UDI1W1建01073、駐車場:カースペース | Company profile 会社概要 | | <Mediation> Saitama Governor (1) Article 021 556 issue (stock) Freesia Home Yubinbango352-0001 Saitama Prefecture Niiza northeast 2-19-11 <仲介>埼玉県知事(1)第021556号(株)フリージアホーム〒352-0001 埼玉県新座市東北2-19-11 |
Local appearance photo現地外観写真  Local (August 2013) Shooting 13 Building
現地(2013年8月)撮影 13号棟
Local photos, including front road前面道路含む現地写真  Local (August 2013) Shooting
現地(2013年8月)撮影
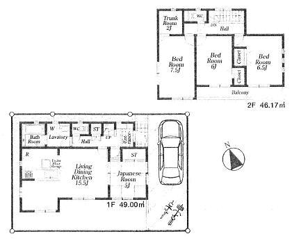
Floor plan間取り図  27,800,000 yen, 4LDK, Land area 100.35 sq m , Building area 95.17 sq m 13 Building
2780万円、4LDK、土地面積100.35m2、建物面積95.17m2 13号棟
Local appearance photo現地外観写真  Local (August 2013) Shooting
現地(2013年8月)撮影
Supermarketスーパー  SEIYU Nobidome to the store 1096m
SEIYU 野火止店まで1096m
Compartment figure区画図  27,800,000 yen, 4LDK, Land area 100.35 sq m , Building area 95.17 sq m
2780万円、4LDK、土地面積100.35m2、建物面積95.17m2
Local appearance photo現地外観写真  Local (August 2013) Shooting
現地(2013年8月)撮影
Location
|