New Homes » Kanto » Saitama » Niiza
 
| | Saitama Prefecture Niiza 埼玉県新座市 |
| Seibu Ikebukuro Line "Hibarigaoka" walk 25 minutes 西武池袋線「ひばりヶ丘」歩25分 |
| Seismic Grade 3 acquisition ・ Construction housing performance evaluation report acquisition plans ・ Highest grade acquisition of six items in the performance evaluation report 耐震等級3取得・建設住宅性能評価書取得予定・性能評価書において6項目の最高等級取得 |
Features pickup 特徴ピックアップ | | Construction housing performance with evaluation / Design house performance with evaluation / Corresponding to the flat-35S / Pre-ground survey / Facing south / System kitchen / A quiet residential area / Washbasin with shower / Face-to-face kitchen / Toilet 2 places / Bathroom 1 tsubo or more / 2-story / Double-glazing / Underfloor Storage / The window in the bathroom / TV monitor interphone / Living stairs 建設住宅性能評価付 /設計住宅性能評価付 /フラット35Sに対応 /地盤調査済 /南向き /システムキッチン /閑静な住宅地 /シャワー付洗面台 /対面式キッチン /トイレ2ヶ所 /浴室1坪以上 /2階建 /複層ガラス /床下収納 /浴室に窓 /TVモニタ付インターホン /リビング階段 | Price 価格 | | 28.8 million yen 2880万円 | Floor plan 間取り | | 3LDK 3LDK | Units sold 販売戸数 | | 1 units 1戸 | Total units 総戸数 | | 1 units 1戸 | Land area 土地面積 | | 87.04 sq m (26.32 tsubo) (Registration) 87.04m2(26.32坪)(登記) | Building area 建物面積 | | 80.89 sq m (24.46 tsubo) (Registration) 80.89m2(24.46坪)(登記) | Driveway burden-road 私道負担・道路 | | Nothing, West 4m width 無、西4m幅 | Completion date 完成時期(築年月) | | January 2014 2014年1月 | Address 住所 | | Saitama Prefecture Nizashinodera 2 埼玉県新座市野寺2 | Traffic 交通 | | Seibu Ikebukuro Line "Hibarigaoka" walk 25 minutes Seibu Ikebukuro Line "Hoya" walk 31 minutes Seibu Ikebukuro Line "Higashi Kurume" walk 30 minutes 西武池袋線「ひばりヶ丘」歩25分 西武池袋線「保谷」歩31分 西武池袋線「東久留米」歩30分
| Person in charge 担当者より | | Rep wilderness Naomi Age: 30 Daigyokai Experience: 11 years [Sales] I also I purchased my home a few years ago. "House" is the highest shopping in life. We are pleased that the help can be. I always thought that it be nice If you can end long-term relationship. 担当者原野 直美年齢:30代業界経験:11年【営業】私も数年前にマイホームを購入致しました。「家」は人生の中で一番高いお買い物。そのお手伝いが出来ることを嬉しく思います。末長くお付き合いが出来たらいいなといつも思っています。 | Contact お問い合せ先 | | TEL: 0800-602-5712 [Toll free] mobile phone ・ Also available from PHS Caller ID is not notified Please contact the "saw SUUMO (Sumo)" If it does not lead, If the real estate company TEL:0800-602-5712【通話料無料】携帯電話・PHSからもご利用いただけます 発信者番号は通知されません 「SUUMO(スーモ)を見た」と問い合わせください つながらない方、不動産会社の方は
| Building coverage, floor area ratio 建ぺい率・容積率 | | 60% ・ 200% 60%・200% | Time residents 入居時期 | | February 2014 schedule 2014年2月予定 | Land of the right form 土地の権利形態 | | Ownership 所有権 | Structure and method of construction 構造・工法 | | Wooden 2-story 木造2階建 | Use district 用途地域 | | One middle and high 1種中高 | Overview and notices その他概要・特記事項 | | Contact: wilderness Naomi, Facilities: Public Water Supply, This sewage, Building confirmation number: HPA-13-05689-1, Parking: car space 担当者:原野 直美、設備:公営水道、本下水、建築確認番号:HPA-13-05689-1、駐車場:カースペース | Company profile 会社概要 | | <Mediation> Saitama Governor (1) No. 022059 (Ltd.) My Town Seibu Yubinbango352-0035 Saitama Prefecture Niiza Kurihara 5-6-24 <仲介>埼玉県知事(1)第022059号(株)マイタウン西武〒352-0035 埼玉県新座市栗原5-6-24 |
Local appearance photo現地外観写真  Is an environment suitable for the elementary school near the child-rearing
小学校近く子育てに適した環境です
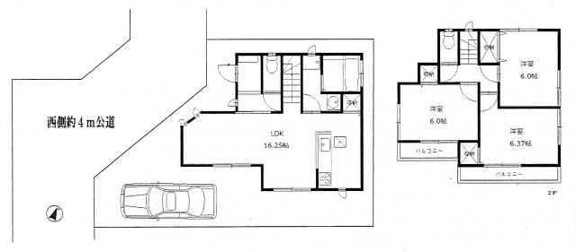
Floor plan間取り図  28.8 million yen, 3LDK, Land area 87.04 sq m , Building area 80.89 sq m
2880万円、3LDK、土地面積87.04m2、建物面積80.89m2
Local photos, including front road前面道路含む現地写真  convenience store, Super near the shopping is convenient
コンビニ、スーパー近く買物便利です
Kindergarten ・ Nursery幼稚園・保育園  Katayama 300m to kindergarten
かたやま幼稚園まで300m
Primary school小学校  130m to Niiza City eight stone elementary school
新座市立八石小学校まで130m
Junior high school中学校  Niiza 670m to stand fifth junior high school
新座市立第五中学校まで670m
Supermarketスーパー  530m until Inageya Niiza Nodera shop
いなげや新座野寺店まで530m
 778m until Hanamasa Hibarigaoka store meat
肉のハナマサひばりケ丘店まで778m
Convenience storeコンビニ  519m to FamilyMart Niiza Kurihara shop
ファミリーマート新座栗原店まで519m
Drug storeドラッグストア  795m until well Park Niiza Nodera shop
ウェルパーク新座野寺店まで795m
Location
|