New Homes » Kanto » Saitama » Niiza
 
| | Saitama Prefecture Niiza 埼玉県新座市 |
| JR Musashino Line "Niiza" walk 12 minutes JR武蔵野線「新座」歩12分 |
| ~ Site of gardening and home garden can enjoy open-minded 52 square meters more than the room! Friends also a lot can be called parallel 4 cars of car spaces. LDK17.5 Pledge, All room 6.0 quires more spacious living space ~ ~ ガーデニングや家庭菜園も楽しめる開放的な52坪超のゆとりの敷地!お友達もたくさん呼べる並列4台分のカースペース。LDK17.5帖、全居室6.0帖以上の広々住空間 ~ |
| ■ Glad smooth housework flow line to the busy mom of water around the adjacent ■ Open space parking 3 cars and over the front door to welcome customers with a blow-by, Land 50 square meters or more, LDK15 tatami mats or more, Atrium, Face-to-face kitchen, System kitchen, All room storage, All room 6 tatami mats or more, Bathroom Dryer, Bathroom 1 tsubo or more, Warm water washing toilet seat, Washbasin with shower, Double-glazing, TV monitor interphone, All rooms are two-sided lighting, A quiet residential area, Flat terrain ■水回り隣接の忙しいママに嬉しいスムーズな家事動線■お客様を迎える玄関は吹き抜けのある開放的な空間駐車3台以上可、土地50坪以上、LDK15畳以上、吹抜け、対面式キッチン、システムキッチン、全居室収納、全居室6畳以上、浴室乾燥機、浴室1坪以上、温水洗浄便座、シャワー付洗面台、複層ガラス、TVモニタ付インターホン、全室2面採光、閑静な住宅地、平坦地 |
Features pickup 特徴ピックアップ | | Parking three or more possible / 2 along the line more accessible / Land 50 square meters or more / System kitchen / Bathroom Dryer / All room storage / A quiet residential area / LDK15 tatami mats or more / Japanese-style room / Starting station / Shaping land / Washbasin with shower / Face-to-face kitchen / Toilet 2 places / Bathroom 1 tsubo or more / 2-story / Southeast direction / Double-glazing / Warm water washing toilet seat / Underfloor Storage / The window in the bathroom / Atrium / TV monitor interphone / All room 6 tatami mats or more / All rooms are two-sided lighting / Flat terrain 駐車3台以上可 /2沿線以上利用可 /土地50坪以上 /システムキッチン /浴室乾燥機 /全居室収納 /閑静な住宅地 /LDK15畳以上 /和室 /始発駅 /整形地 /シャワー付洗面台 /対面式キッチン /トイレ2ヶ所 /浴室1坪以上 /2階建 /東南向き /複層ガラス /温水洗浄便座 /床下収納 /浴室に窓 /吹抜け /TVモニタ付インターホン /全居室6畳以上 /全室2面採光 /平坦地 | Price 価格 | | 42,800,000 yen 4280万円 | Floor plan 間取り | | 4LDK 4LDK | Units sold 販売戸数 | | 1 units 1戸 | Total units 総戸数 | | 1 units 1戸 | Land area 土地面積 | | 174.74 sq m (registration) 174.74m2(登記) | Building area 建物面積 | | 109.3 sq m (registration) 109.3m2(登記) | Driveway burden-road 私道負担・道路 | | 27.73 sq m , Southeast 4m width (contact the road width 12.9m) 27.73m2、南東4m幅(接道幅12.9m) | Completion date 完成時期(築年月) | | February 2014 2014年2月 | Address 住所 | | Saitama Prefecture Niiza Nobidome 5 埼玉県新座市野火止5 | Traffic 交通 | | JR Musashino Line "Niiza" walk 12 minutes Tobu Tojo Line "Shiki" bus 5 minutes Kitano entrance walk 9 minutes Tobu Tojo Line "Asakadai" walk 36 minutes JR武蔵野線「新座」歩12分東武東上線「志木」バス5分北野入口歩9分 東武東上線「朝霞台」歩36分
| Related links 関連リンク | | [Related Sites of this company] 【この会社の関連サイト】 | Person in charge 担当者より | | Person in charge of real-estate and building Tezuka Terumi Age: become a base of 40's life, but is that what "house", Protagonist of life I think the "family" everyone to live there! I would like to make a lot of memories in the dream of my home ... if that order, Socializing your thoroughly. 担当者宅建手塚 輝美年齢:40代暮らしのベースになるのは「家」そのものですが、暮らしの主役はそこに住まう「家族」皆様だと思います!夢のマイホームで たくさんの思い出を作って頂きたい… その為なら、とことんお付き合い致します。 | Contact お問い合せ先 | | TEL: 0800-603-1160 [Toll free] mobile phone ・ Also available from PHS Caller ID is not notified Please contact the "saw SUUMO (Sumo)" If it does not lead, If the real estate company TEL:0800-603-1160【通話料無料】携帯電話・PHSからもご利用いただけます 発信者番号は通知されません 「SUUMO(スーモ)を見た」と問い合わせください つながらない方、不動産会社の方は
| Building coverage, floor area ratio 建ぺい率・容積率 | | Fifty percent ・ 80% 50%・80% | Time residents 入居時期 | | March 2014 schedule 2014年3月予定 | Land of the right form 土地の権利形態 | | Ownership 所有権 | Structure and method of construction 構造・工法 | | Wooden 2-story 木造2階建 | Use district 用途地域 | | One low-rise 1種低層 | Other limitations その他制限事項 | | Height district 高度地区 | Overview and notices その他概要・特記事項 | | Contact: Tezuka Terumi, Facilities: Public Water Supply, This sewage, Building confirmation number: No. SJK-KX1111010714, Parking: car space 担当者:手塚 輝美、設備:公営水道、本下水、建築確認番号:第SJK-KX1111010714号、駐車場:カースペース | Company profile 会社概要 | | <Mediation> Minister of Land, Infrastructure and Transport (5) No. 005,084 (one company) National Housing Industry Association (Corporation) metropolitan area real estate Fair Trade Council member (Ltd.) best select Shiki shop Yubinbango353-0004 Saitama Prefecture Shiki Honcho 5-21-21 Westwood Building first floor <仲介>国土交通大臣(5)第005084号(一社)全国住宅産業協会会員 (公社)首都圏不動産公正取引協議会加盟(株)ベストセレクト志木店〒353-0004 埼玉県志木市本町5-21-21 ウエストウッドビル1階 |
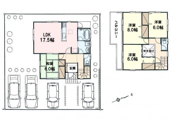
Floor plan間取り図  42,800,000 yen, 4LDK, Land area 174.74 sq m , Building area 109.3 sq m ☆ Spacious 50 square meters or more of the site area ☆
4280万円、4LDK、土地面積174.74m2、建物面積109.3m2 ☆広々50坪以上の敷地面積☆
Supermarketスーパー  450m until fresh Museum World City (6-minute walk)
生鮮館世界市(徒歩6分)まで450m
Park公園  850m to Kitano second park (11 minutes walk)
北野第二公園(徒歩11分)まで850m
Hospital病院  750m until Nakamura Clinic (10 minutes walk)
中村クリニック(徒歩10分)まで750m
Other Environmental Photoその他環境写真  960m until niiza station (a 12-minute walk)
新座駅(徒歩12分)まで960m
Drug storeドラッグストア  700m to drag Seimusu (a 9-minute walk)
ドラッグセイムス(徒歩9分)まで700m
Hospital病院  Kitano 1100m to the hospital (a 14-minute walk)
北野病院(徒歩14分)まで1100m
Location
|