New Homes » Kanto » Saitama » Nishi-ku
 
| | Saitama city west district 埼玉県さいたま市西区 |
| JR Kawagoe Line "Sashiogi" walk 15 minutes JR川越線「指扇」歩15分 |
| ■ ■ ■ Earthquake resistant ・ Vibration Control residential house Strong house in the earthquake in the use of the original seismic control panel ■ ■ ■ ■■■耐震・制震住宅の家 オリジナル制震パネルを利用で地震に強い家■■■ |
| Supermarket, Park is also near the child-rearing environment favorable location. ◇◇ standard equipment of enhancement ◇◇ ・ Entrance smart control key, Color TV door, Crime prevention measures in the shutter shutters ・ Sick measures, 24-hour ventilation system, Environmental care in the water purifier ・ Built-in dishwasher, スーパー、公園も近く子育て環境良好なロケーションです。◇◇充実の標準設備◇◇・玄関スマートコントロールキー、カラーテレビドアホン、シャッター雨戸で防犯対策・シックハウス対策、24時間換気システム、浄水器で環境ケア・ビルトイン食洗機、 |
Features pickup 特徴ピックアップ | | Vibration Control ・ Seismic isolation ・ Earthquake resistant / Parking two Allowed / Super close / System kitchen / All room storage / A quiet residential area / LDK15 tatami mats or more / Around traffic fewer / Shaping land / Washbasin with shower / Face-to-face kitchen / Toilet 2 places / Bathroom 1 tsubo or more / 2-story / Double-glazing / Warm water washing toilet seat / Underfloor Storage / TV monitor interphone / Ventilation good / All living room flooring / Dish washing dryer / Water filter / All rooms are two-sided lighting 制震・免震・耐震 /駐車2台可 /スーパーが近い /システムキッチン /全居室収納 /閑静な住宅地 /LDK15畳以上 /周辺交通量少なめ /整形地 /シャワー付洗面台 /対面式キッチン /トイレ2ヶ所 /浴室1坪以上 /2階建 /複層ガラス /温水洗浄便座 /床下収納 /TVモニタ付インターホン /通風良好 /全居室フローリング /食器洗乾燥機 /浄水器 /全室2面採光 | Event information イベント情報 | | Local sales meetings (please visitors to direct local) schedule / Every Saturday, Sunday and public holidays time / 10:00 ~ 17:30 every Saturday, Sunday and public holidays 10:00 ~ 17:00 local sales meeting held in! Please join us feel free to. 現地販売会(直接現地へご来場ください)日程/毎週土日祝時間/10:00 ~ 17:30毎週土日祝10:00 ~ 17:00現地販売会開催中!お気軽にお越しください。 | Price 価格 | | 26,800,000 yen 2680万円 | Floor plan 間取り | | 4LDK 4LDK | Units sold 販売戸数 | | 1 units 1戸 | Total units 総戸数 | | 2 units 2戸 | Land area 土地面積 | | 122.16 sq m 122.16m2 | Building area 建物面積 | | 99.77 sq m 99.77m2 | Driveway burden-road 私道負担・道路 | | Nothing, Southwest 4.5m width (contact the road width 3.5m) 無、南西4.5m幅(接道幅3.5m) | Completion date 完成時期(築年月) | | January 2016 2016年1月 | Address 住所 | | Saitama city west district Plaza 埼玉県さいたま市西区プラザ | Traffic 交通 | | JR Kawagoe Line "Sashiogi" walk 15 minutes JR川越線「指扇」歩15分
| Related links 関連リンク | | [Related Sites of this company] 【この会社の関連サイト】 | Person in charge 担当者より | | [Regarding this property.] Strong house in earthquake We are using the original seismic control panel 【この物件について】地震に強い家 オリジナル制震パネルを使用しています | Contact お問い合せ先 | | TEL: 0800-603-2699 [Toll free] mobile phone ・ Also available from PHS Caller ID is not notified Please contact the "saw SUUMO (Sumo)" If it does not lead, If the real estate company TEL:0800-603-2699【通話料無料】携帯電話・PHSからもご利用いただけます 発信者番号は通知されません 「SUUMO(スーモ)を見た」と問い合わせください つながらない方、不動産会社の方は
| Building coverage, floor area ratio 建ぺい率・容積率 | | Fifty percent ・ Hundred percent 50%・100% | Land of the right form 土地の権利形態 | | Ownership 所有権 | Structure and method of construction 構造・工法 | | Wooden 2-story (framing method) 木造2階建(軸組工法) | Construction 施工 | | (Ltd.) Seongnam construction (株)城南建設 | Use district 用途地域 | | One low-rise 1種低層 | Overview and notices その他概要・特記事項 | | Facilities: Public Water Supply, This sewage, City gas, Building confirmation number: No. 13UDI3T Ken 01051, Parking: car space 設備:公営水道、本下水、都市ガス、建築確認番号:第13UDI3T建01051号、駐車場:カースペース | Company profile 会社概要 | | <Mediation> Saitama Governor (3) No. 018711 (Ltd.) Co-op sales center Yubinbango330-0042 Saitama Urawa Ward City Kizaki 4-28-2 <仲介>埼玉県知事(3)第018711号(株)コープ販売センター〒330-0042 埼玉県さいたま市浦和区木崎4-28-2 |
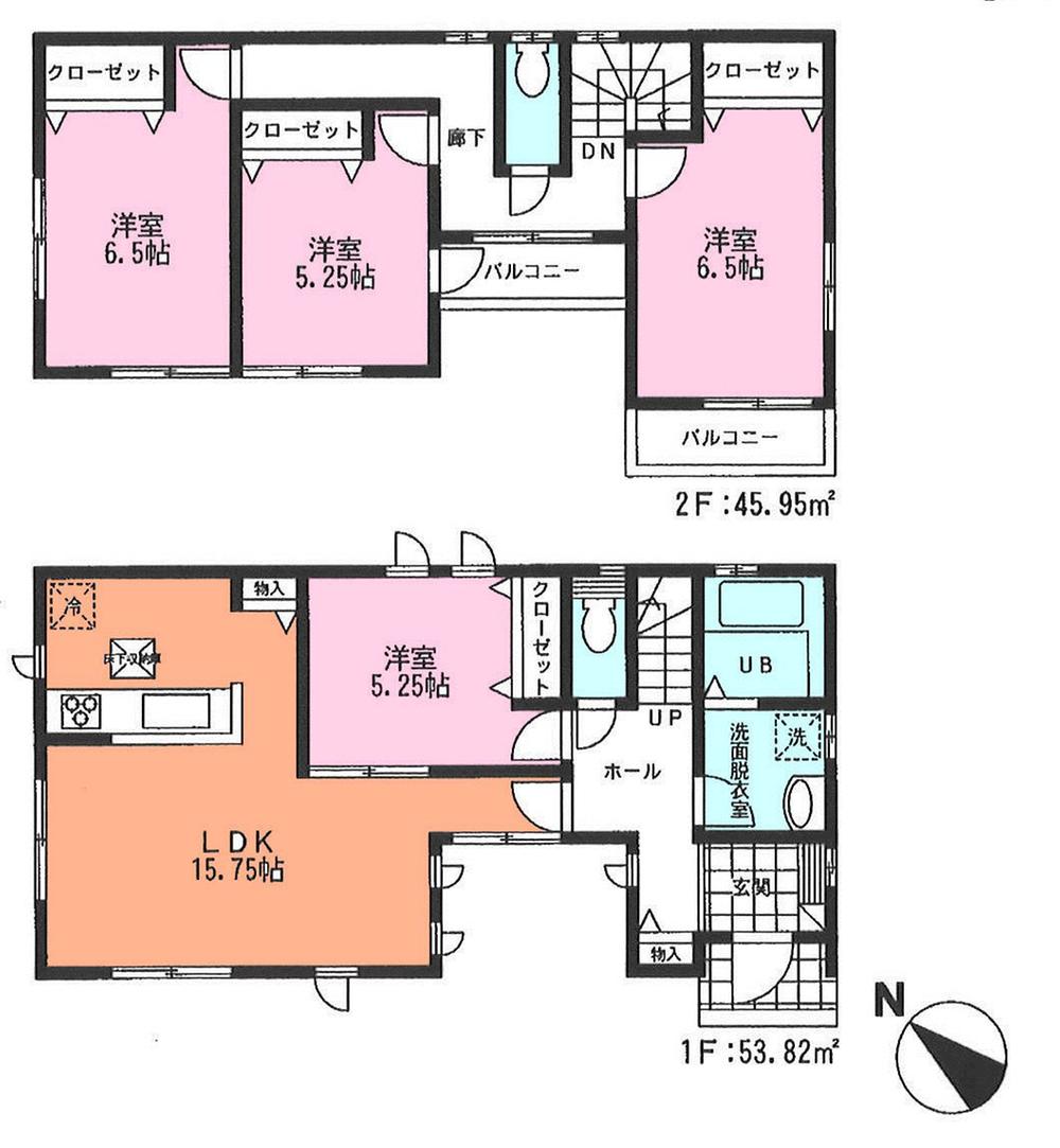
Floor plan間取り図  26,800,000 yen, 4LDK, Land area 122.16 sq m , Building area 99.77 sq m All rooms are two-sided lighting LDK is spacious 15.75 Pledge The kitchen can be used as a pantry there is storage space
2680万円、4LDK、土地面積122.16m2、建物面積99.77m2 全室2面採光 LDKは広々15.75帖 キッチンには収納スペース有りパントリーとして利用できます
Compartment figure区画図  26,800,000 yen, 4LDK, Land area 122.16 sq m , Building area 99.77 sq m car space two is possible.
2680万円、4LDK、土地面積122.16m2、建物面積99.77m2 カースペース2台可能です。
 Same specifications photos (appearance)
同仕様写真(外観)
 Local appearance photo
現地外観写真
Same specifications photos (living)同仕様写真(リビング)  Living entering bright sunlight
明るい陽射しの入るリビング
Same specifications photo (kitchen)同仕様写真(キッチン)  With Herman Inc. of built-in dishwasher
ハーマン社製のビルトイン食洗機付き
 Local photos, including front road
前面道路含む現地写真
Location
|