|
|
Saitama Prefecture Okegawa
埼玉県桶川市
|
|
JR Takasaki Line "Okegawa" walk 10 minutes
JR高崎線「桶川」歩10分
|
|
Station 10-minute walk! Pharmacy 3-minute walk! 2-minute convenience store walk!
駅徒歩10分!薬局徒歩3分!コンビニ徒歩2分!
|
|
In Okegawa Izumi, Day is the emergence of a good all two buildings site. Because there is a distance of soon from the station, I think in a place such as not to mention the convenient and nearby commercial facilities? , It has been built using the wall material that I can also be exchanged for something delicious and furniture of local Dairaito, Strong house in the earthquake and fire. So we have completed, You can visit at any time! Please feel free to tell us please!
桶川市泉にて、日当たり良好な全2棟現場の登場です。駅からほどなくの距離にありますので、商業施設が近くて便利なのは言うに及ばずといったところではないでしょうか?木材利用ポイント(30万円相当分)が利用できますので、地方の美味しいものや家具にも交換できますよダイライトという壁材を使って建てられており、地震と火事に強い家。完成しておりますので、いつでもご覧いただくことができます!どうぞお気軽にお申し付けくださいませ!
|
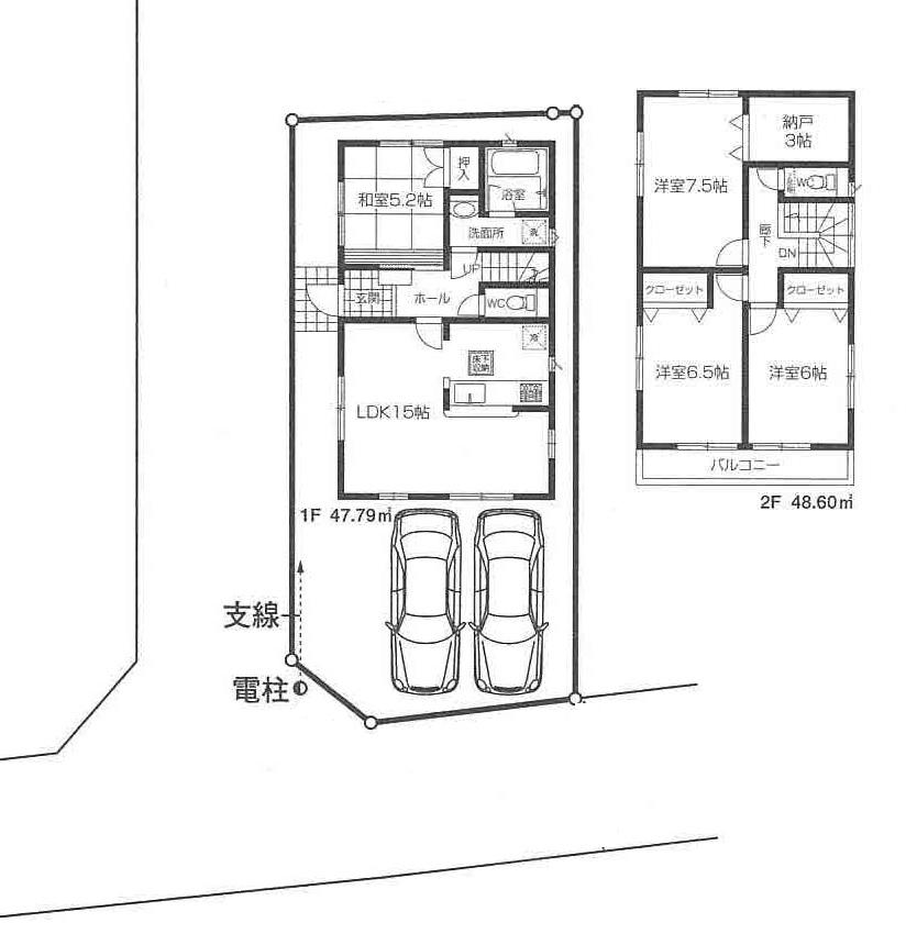
Features pickup 特徴ピックアップ | | Solar power system / Pre-ground survey / Parking two Allowed / Super close / Facing south / System kitchen / All room storage / LDK15 tatami mats or more / Around traffic fewer / Corner lot / Japanese-style room / Shaping land / Washbasin with shower / Face-to-face kitchen / Toilet 2 places / Bathroom 1 tsubo or more / 2-story / South balcony / All rooms are two-sided lighting 太陽光発電システム /地盤調査済 /駐車2台可 /スーパーが近い /南向き /システムキッチン /全居室収納 /LDK15畳以上 /周辺交通量少なめ /角地 /和室 /整形地 /シャワー付洗面台 /対面式キッチン /トイレ2ヶ所 /浴室1坪以上 /2階建 /南面バルコニー /全室2面採光 |
Price 価格 | | 27,800,000 yen 2780万円 |
Floor plan 間取り | | 4LDK + S (storeroom) 4LDK+S(納戸) |
Units sold 販売戸数 | | 2 units 2戸 |
Total units 総戸数 | | 2 units 2戸 |
Land area 土地面積 | | 109.78 sq m ~ 109.85 sq m (33.20 tsubo ~ 33.22 tsubo) (Registration) 109.78m2 ~ 109.85m2(33.20坪 ~ 33.22坪)(登記) |
Building area 建物面積 | | 95.17 sq m ~ 96.39 sq m (28.78 tsubo ~ 29.15 tsubo) (measured) 95.17m2 ~ 96.39m2(28.78坪 ~ 29.15坪)(実測) |
Completion date 完成時期(築年月) | | October 2013 2013年10月 |
Address 住所 | | Saitama Prefecture Okegawa Izumi 1 埼玉県桶川市泉1 |
Traffic 交通 | | JR Takasaki Line "Okegawa" walk 10 minutes JR高崎線「桶川」歩10分
|
Related links 関連リンク | | [Related Sites of this company] 【この会社の関連サイト】 |
Person in charge 担当者より | | [Regarding this property.] Wood utilization point, Short "Mokpo" in implementation! 【この物件について】木材利用ポイント、略して「もくぽ」実施中! |
Contact お問い合せ先 | | TEL: 0800-603-1885 [Toll free] mobile phone ・ Also available from PHS Caller ID is not notified Please contact the "saw SUUMO (Sumo)" If it does not lead, If the real estate company TEL:0800-603-1885【通話料無料】携帯電話・PHSからもご利用いただけます 発信者番号は通知されません 「SUUMO(スーモ)を見た」と問い合わせください つながらない方、不動産会社の方は
|
Building coverage, floor area ratio 建ぺい率・容積率 | | Kenpei rate: 60%, Volume ratio: 160% 建ペい率:60%、容積率:160% |
Time residents 入居時期 | | Consultation 相談 |
Land of the right form 土地の権利形態 | | Ownership 所有権 |
Structure and method of construction 構造・工法 | | Wooden 2-story (framing method) 木造2階建(軸組工法) |
Use district 用途地域 | | Two mid-high 2種中高 |
Company profile 会社概要 | | <Mediation> Minister of Land, Infrastructure and Transport (4) No. 005817 (Corporation) All Japan Real Estate Association (Corporation) metropolitan area real estate Fair Trade Council member (Ltd.) Estate Hakuba Saitama store Lesson 3 Yubinbango362-0042 Saitama Prefecture Ageo Yatsu 2-1-1 show Sun Plaza 5th floor (Ito-Yokado) <仲介>国土交通大臣(4)第005817号(公社)全日本不動産協会会員 (公社)首都圏不動産公正取引協議会加盟(株)エステート白馬さいたま店3課〒362-0042 埼玉県上尾市谷津2-1-1 ショーサンプラザ5階(イトーヨーカドー) |