New Homes » Kanto » Saitama » Chuo-ku
 
| | Saitama, Chuo-ku, 埼玉県さいたま市中央区 |
| JR Keihin Tohoku Line "Kitaurawa" walk 14 minutes JR京浜東北線「北浦和」歩14分 |
| Earthquake-proof! Earthquake-resistant structure "Housing Performance Evaluation: The best grade" acquisition All Shitsuminami-facing two-story 地震に強い!耐震構造「住宅性能評価:最高等級」取得 2階建ての全室南向きです |
| Design house performance with evaluation, Pre-ground survey, Parking two Allowed, Immediate Available, 2 along the line more accessible, It is close to golf course, It is close to the city, System kitchen, Yang per good, All room storage, Flat to the station, LDK15 tatami mats or more, Shaping land, Garden more than 10 square meters, garden, Washbasin with shower, Face-to-face kitchen, Wide balcony, Barrier-free, Toilet 2 places, Bathroom 1 tsubo or more, 2-story, Double-glazing, Zenshitsuminami direction, Warm water washing toilet seat, Nantei, Underfloor Storage, The window in the bathroom, TV monitor interphone, Leafy residential area, Ventilation good, All living room flooring, All room 6 tatami mats or more, Water filter, City gas 設計住宅性能評価付、地盤調査済、駐車2台可、即入居可、2沿線以上利用可、ゴルフ場が近い、市街地が近い、システムキッチン、陽当り良好、全居室収納、駅まで平坦、LDK15畳以上、整形地、庭10坪以上、庭、シャワー付洗面台、対面式キッチン、ワイドバルコニー、バリアフリー、トイレ2ヶ所、浴室1坪以上、2階建、複層ガラス、全室南向き、温水洗浄便座、南庭、床下収納、浴室に窓、TVモニタ付インターホン、緑豊かな住宅地、通風良好、全居室フローリング、全居室6畳以上、浄水器、都市ガス |
Features pickup 特徴ピックアップ | | Design house performance with evaluation / Pre-ground survey / Parking two Allowed / 2 along the line more accessible / It is close to golf course / It is close to the city / System kitchen / Yang per good / All room storage / Flat to the station / LDK15 tatami mats or more / Shaping land / Garden more than 10 square meters / garden / Washbasin with shower / Face-to-face kitchen / Wide balcony / Barrier-free / Toilet 2 places / Bathroom 1 tsubo or more / 2-story / Double-glazing / Zenshitsuminami direction / Warm water washing toilet seat / Nantei / Underfloor Storage / The window in the bathroom / TV monitor interphone / Leafy residential area / Ventilation good / All living room flooring / All room 6 tatami mats or more / Water filter / City gas 設計住宅性能評価付 /地盤調査済 /駐車2台可 /2沿線以上利用可 /ゴルフ場が近い /市街地が近い /システムキッチン /陽当り良好 /全居室収納 /駅まで平坦 /LDK15畳以上 /整形地 /庭10坪以上 /庭 /シャワー付洗面台 /対面式キッチン /ワイドバルコニー /バリアフリー /トイレ2ヶ所 /浴室1坪以上 /2階建 /複層ガラス /全室南向き /温水洗浄便座 /南庭 /床下収納 /浴室に窓 /TVモニタ付インターホン /緑豊かな住宅地 /通風良好 /全居室フローリング /全居室6畳以上 /浄水器 /都市ガス | Price 価格 | | 37,800,000 yen 3780万円 | Floor plan 間取り | | 4LDK 4LDK | Units sold 販売戸数 | | 1 units 1戸 | Total units 総戸数 | | 1 units 1戸 | Land area 土地面積 | | 104.69 sq m (31.66 square meters) 104.69m2(31.66坪) | Building area 建物面積 | | 96.46 sq m (29.17 square meters) 96.46m2(29.17坪) | Driveway burden-road 私道負担・道路 | | Nothing, West 4m width 無、西4m幅 | Completion date 完成時期(築年月) | | November 2013 2013年11月 | Address 住所 | | Saitama, Chuo-ku, Shin'nakazato 3 埼玉県さいたま市中央区新中里3 | Traffic 交通 | | JR Keihin Tohoku Line "Kitaurawa" walk 14 minutes JR Saikyo Line "Yonohonmachi" walk 15 minutes JR京浜東北線「北浦和」歩14分 JR埼京線「与野本町」歩15分
| Related links 関連リンク | | [Related Sites of this company] 【この会社の関連サイト】 | Person in charge 担当者より | | [Regarding this property.] 2 line 2 Station is available 【この物件について】2路線2駅利用可能です | Contact お問い合せ先 | | TEL: 0800-603-1886 [Toll free] mobile phone ・ Also available from PHS Caller ID is not notified Please contact the "saw SUUMO (Sumo)" If it does not lead, If the real estate company TEL:0800-603-1886【通話料無料】携帯電話・PHSからもご利用いただけます 発信者番号は通知されません 「SUUMO(スーモ)を見た」と問い合わせください つながらない方、不動産会社の方は
| Building coverage, floor area ratio 建ぺい率・容積率 | | 60% ・ 200% 60%・200% | Time residents 入居時期 | | Consultation 相談 | Land of the right form 土地の権利形態 | | Ownership 所有権 | Structure and method of construction 構造・工法 | | Wooden 2-story (framing method) 木造2階建(軸組工法) | Use district 用途地域 | | One dwelling 1種住居 | Overview and notices その他概要・特記事項 | | Facilities: Public Water Supply, This sewage, City gas, Building confirmation number: HPA-13-02500-1, Parking: car space 設備:公営水道、本下水、都市ガス、建築確認番号:HPA-13-02500-1、駐車場:カースペース | Company profile 会社概要 | | <Mediation> Minister of Land, Infrastructure and Transport (4) No. 005817 (Corporation) All Japan Real Estate Association (Corporation) metropolitan area real estate Fair Trade Council member (Ltd.) Estate Hakuba Saitama store Lesson 5 Yubinbango362-0042 Saitama Prefecture Ageo Yatsu 2-1-1 show Sun Plaza 5th floor (Ito-Yokado) <仲介>国土交通大臣(4)第005817号(公社)全日本不動産協会会員 (公社)首都圏不動産公正取引協議会加盟(株)エステート白馬さいたま店5課〒362-0042 埼玉県上尾市谷津2-1-1 ショーサンプラザ5階(イトーヨーカドー) |
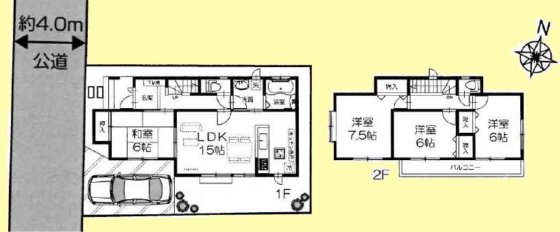
Floor plan間取り図  37,800,000 yen, 4LDK, Land area 104.69 sq m , Building area 96.46 sq m
3780万円、4LDK、土地面積104.69m2、建物面積96.46m2
 Local appearance photo
現地外観写真
 Local photos, including front road
前面道路含む現地写真
 Living
リビング
 Bathroom
浴室
 Kitchen
キッチン
 Non-living room
リビング以外の居室
 Wash basin, toilet
洗面台・洗面所
 Balcony
バルコニー
 Living
リビング
 Kitchen
キッチン
 Non-living room
リビング以外の居室
 Living
リビング
 Non-living room
リビング以外の居室
 Non-living room
リビング以外の居室
Location
|