|
|
Saitama city north district
埼玉県さいたま市北区
|
|
JR Takasaki Line "Miyahara" walk 17 minutes
JR高崎線「宮原」歩17分
|
|
Spacious land 65 square meters! Car space 4 units can be! Comfortable is a good living environment to live in close convenient drugstores and convenience stores that we are able to catch the ball in the vast garden.
広々とした土地65坪!カースペース4台可能です!広大なお庭でキャッチボールが出来ちゃいます便利なドラッグストアやコンビニも近くて住み心地の良い住環境です。
|
Features pickup 特徴ピックアップ | | Seismic fit / Parking three or more possible / 2 along the line more accessible / Land 50 square meters or more / Super close / It is close to the city / Facing south / System kitchen / Bathroom Dryer / Yang per good / All room storage / A quiet residential area / LDK15 tatami mats or more / Around traffic fewer / Or more before road 6m / Japanese-style room / Shaping land / Garden more than 10 square meters / garden / Washbasin with shower / Barrier-free / Toilet 2 places / Bathroom 1 tsubo or more / 2-story / 2 or more sides balcony / South balcony / Double-glazing / Warm water washing toilet seat / Nantei / Underfloor Storage / Ventilation good / Water filter / A large gap between the neighboring house 耐震適合 /駐車3台以上可 /2沿線以上利用可 /土地50坪以上 /スーパーが近い /市街地が近い /南向き /システムキッチン /浴室乾燥機 /陽当り良好 /全居室収納 /閑静な住宅地 /LDK15畳以上 /周辺交通量少なめ /前道6m以上 /和室 /整形地 /庭10坪以上 /庭 /シャワー付洗面台 /バリアフリー /トイレ2ヶ所 /浴室1坪以上 /2階建 /2面以上バルコニー /南面バルコニー /複層ガラス /温水洗浄便座 /南庭 /床下収納 /通風良好 /浄水器 /隣家との間隔が大きい |
Price 価格 | | 27,800,000 yen 2780万円 |
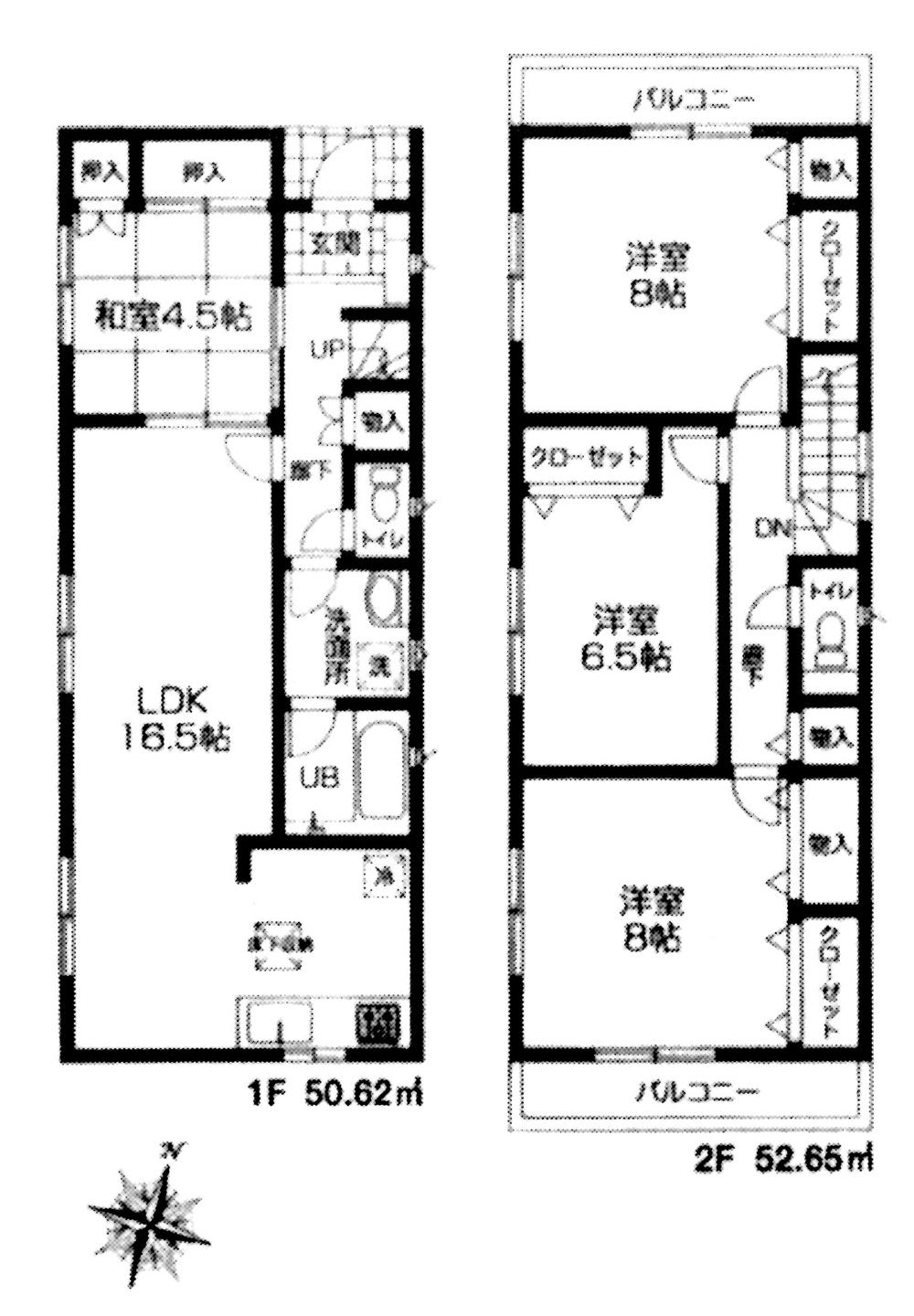
Floor plan 間取り | | 4LDK 4LDK |
Units sold 販売戸数 | | 1 units 1戸 |
Total units 総戸数 | | 1 units 1戸 |
Land area 土地面積 | | 215.77 sq m (65.27 tsubo) (measured) 215.77m2(65.27坪)(実測) |
Building area 建物面積 | | 103.27 sq m (31.23 tsubo) (measured) 103.27m2(31.23坪)(実測) |
Driveway burden-road 私道負担・道路 | | Nothing, Northeast 6.3m width 無、北東6.3m幅 |
Completion date 完成時期(築年月) | | January 2014 2014年1月 |
Address 住所 | | Saitama city north district Nara 埼玉県さいたま市北区奈良町 |
Traffic 交通 | | JR Takasaki Line "Miyahara" walk 17 minutes JR Kawagoe Line "Nisshin" walk 24 minutes Saitama new urban transportation Inasen "east Miyahara" walk 30 minutes JR高崎線「宮原」歩17分 JR川越線「日進」歩24分 埼玉新都市交通伊奈線「東宮原」歩30分
|
Related links 関連リンク | | [Related Sites of this company] 【この会社の関連サイト】 |
Person in charge 担当者より | | Rep phase root Koji Age: 40 Daigyokai Experience: 1 year has been the importance to day-to-day behavior of the "customers of the ideal dwelling is possible to talk to come into view". One of the important events in your looking for life! ! I will best support in your eyes such a important event! ! 担当者相根 孝治年齢:40代業界経験:1年”お客様の理想の住まいが見えてくるまでお話をする事”を大切に日々の行動をしています。お住まい探しは人生でも大切なイベントの1つ!!そんな大切なイベントをお客様目線で全力サポート致します!! |
Contact お問い合せ先 | | TEL: 0800-600-1407 [Toll free] mobile phone ・ Also available from PHS Caller ID is not notified Please contact the "saw SUUMO (Sumo)" If it does not lead, If the real estate company TEL:0800-600-1407【通話料無料】携帯電話・PHSからもご利用いただけます 発信者番号は通知されません 「SUUMO(スーモ)を見た」と問い合わせください つながらない方、不動産会社の方は
|
Building coverage, floor area ratio 建ぺい率・容積率 | | 60% ・ 200% 60%・200% |
Time residents 入居時期 | | January 2014 2014年1月 |
Land of the right form 土地の権利形態 | | Ownership 所有権 |
Structure and method of construction 構造・工法 | | Wooden 2-story (framing method) 木造2階建(軸組工法) |
Use district 用途地域 | | One middle and high 1種中高 |
Overview and notices その他概要・特記事項 | | Contact: Eine Koji, Facilities: Public Water Supply, This sewage, Individual LPG, Building confirmation number: No. 13UDI11W Ken 01796, Parking: car space 担当者:相根 孝治、設備:公営水道、本下水、個別LPG、建築確認番号:第13UDI11W建01796号、駐車場:カースペース |
Company profile 会社概要 | | <Mediation> Saitama Governor (2) No. 020205 (Ltd.) Crane House Stella Town Omiya Yubinbango331-0812 Saitama city north district Miyahara-cho 1-854-1 Stella Town 3 floor <仲介>埼玉県知事(2)第020205号(株)クレインハウス ステラタウン大宮店〒331-0812 埼玉県さいたま市北区宮原町1-854-1 ステラタウン3階 |