|
|
Saitama city west district
埼玉県さいたま市西区
|
|
JR Keihin-Tohoku Line "Omiya" 10 minutes Sajikawa walk 8 minutes by bus
JR京浜東北線「大宮」バス10分佐知川歩8分
|
|
☆ Access convenient "Omiya" station available! Site 45 square meters of room! Car space 2 cars! Face-to-face kitchen can feel your family close! Inquiry to toll-free 0800-800-8557!
☆アクセス便利な「大宮」駅利用可能!ゆとりの敷地45坪!カースペース2台分!ご家族を近くに感じられる対面キッチン!お問合せはフリーダイヤル0800-800-8557まで!
|
|
Parking two Allowed, 2 along the line more accessible, Super close, System kitchen, Bathroom Dryer, All room storageese-style room, Starting station, Face-to-face kitchen, 2-story, South balcony, Underfloor Storage, The window in the bathroom, TV monitor interphone, Water filter
駐車2台可、2沿線以上利用可、スーパーが近い、システムキッチン、浴室乾燥機、全居室収納、和室、始発駅、対面式キッチン、2階建、南面バルコニー、床下収納、浴室に窓、TVモニタ付インターホン、浄水器
|
Features pickup 特徴ピックアップ | | Parking two Allowed / 2 along the line more accessible / Super close / System kitchen / Bathroom Dryer / All room storage / Japanese-style room / Starting station / Washbasin with shower / Face-to-face kitchen / Toilet 2 places / 2-story / South balcony / Warm water washing toilet seat / Underfloor Storage / The window in the bathroom / TV monitor interphone / Water filter 駐車2台可 /2沿線以上利用可 /スーパーが近い /システムキッチン /浴室乾燥機 /全居室収納 /和室 /始発駅 /シャワー付洗面台 /対面式キッチン /トイレ2ヶ所 /2階建 /南面バルコニー /温水洗浄便座 /床下収納 /浴室に窓 /TVモニタ付インターホン /浄水器 |
Price 価格 | | 26,800,000 yen 2680万円 |
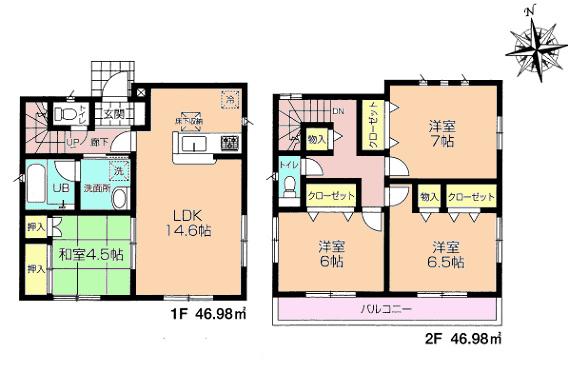
Floor plan 間取り | | 4LDK 4LDK |
Units sold 販売戸数 | | 1 units 1戸 |
Total units 総戸数 | | 1 units 1戸 |
Land area 土地面積 | | 150.07 sq m (45.39 tsubo) (Registration) 150.07m2(45.39坪)(登記) |
Building area 建物面積 | | 93.96 sq m (28.42 tsubo) (Registration) 93.96m2(28.42坪)(登記) |
Driveway burden-road 私道負担・道路 | | Nothing, North 4m width 無、北4m幅 |
Completion date 完成時期(築年月) | | December 2013 2013年12月 |
Address 住所 | | Saitama city west district Oaza Nakanobayashi 埼玉県さいたま市西区大字中野林 |
Traffic 交通 | | JR Keihin-Tohoku Line "Omiya" 10 minutes Sajikawa walk 8 minutes by bus JR Saikyo Line "Omiya" 10 minutes Sajikawa walk 8 minutes by bus JR京浜東北線「大宮」バス10分佐知川歩8分 JR埼京線「大宮」バス10分佐知川歩8分
|
Related links 関連リンク | | [Related Sites of this company] 【この会社の関連サイト】 |
Person in charge 担当者より | | [Regarding this property.] ☆ Access convenient "Omiya" station available! Site 45 square meters of room! Car space 2 cars! Face-to-face kitchen can feel your family close! Free dial [0800-800-8557] Please feel free to contact us to! 【この物件について】☆アクセス便利な「大宮」駅利用可能!ゆとりの敷地45坪!カースペース2台分!ご家族を近くに感じられる対面キッチン!フリーダイヤル【0800-800-8557】までお気軽にお問合わせください! |
Contact お問い合せ先 | | TEL: 0800-8008557 [Toll free] Please contact the "saw SUUMO (Sumo)" TEL:0800-8008557【通話料無料】「SUUMO(スーモ)を見た」と問い合わせください |
Building coverage, floor area ratio 建ぺい率・容積率 | | 60% ・ 160% 60%・160% |
Time residents 入居時期 | | Consultation 相談 |
Land of the right form 土地の権利形態 | | Ownership 所有権 |
Structure and method of construction 構造・工法 | | Wooden 2-story 木造2階建 |
Use district 用途地域 | | Urbanization control area 市街化調整区域 |
Other limitations その他制限事項 | | Sewer treatment area Development activity permit Development activities inspected certificate Development change permission Conformity certification has been acquired 下水道処置区域 開発行為許可証 開発行為検査済証 開発変更許可 適合証明取得済 |
Overview and notices その他概要・特記事項 | | Facilities: Public Water Supply, This sewage, Individual LPG, Building Permits reason: land sale by the development permit, etc., Building confirmation number: No. 13UDI1W Ken 02205, Parking: car space 設備:公営水道、本下水、個別LPG、建築許可理由:開発許可等による分譲地、建築確認番号:第13UDI1W建02205号、駐車場:カースペース |
Company profile 会社概要 | | <Mediation> Saitama Governor (2) No. 021094 (Ltd.) Eidai House Omiya Yubinbango330-0854 Saitama Omiya-ku Sakuragicho 4-213 <仲介>埼玉県知事(2)第021094号(株)永大ハウス大宮店〒330-0854 埼玉県さいたま市大宮区桜木町4-213 |