New Homes » Kanto » Saitama » Omiya-ku


Saitama Omiya-ku,
JR Keihin-Tohoku Line "Omiya" walk 16 minutes
[Present] now, To customers all contact, Popular soft fluffy HAPPY WAON pillow gift! !
■ 16-minute walk from Omiya Station ■ "20-year warranty" in the peace of mind ■ Safety of "KDP21] Construction method
Features pickup
Corresponding to the flat-35S / 2 along the line more accessible / Facing south / System kitchen / All room storage / Shaping land / Washbasin with shower / Face-to-face kitchen / Toilet 2 places / Warm water washing toilet seat / Underfloor Storage / The window in the bathroom / TV monitor interphone / Walk-in closet / All room 6 tatami mats or more / Three-story or more / All rooms are two-sided lighting / Readjustment land within
Price
28,950,000 yen
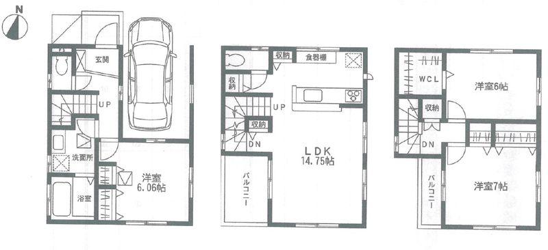
Floor plan
3LDK
Units sold
1 units
Total units
1 units
Land area
62.92 sq m
Building area
101.62 sq m , Among the first floor garage 9.91 sq m
Driveway burden-road
Nothing, North 8m width
Completion date
June 2013
Address
Saitama Omiya-ku, bank-cho 1
Traffic
JR Keihin-Tohoku Line "Omiya" walk 16 minutes
Tobu Noda line "Kitaomiya" walk 8 minutes
Saitama new urban transport Inasen "Railway Museum" walk 6 minutes
Related links
[Related Sites of this company]
Contact
TEL: 0800-805-3596 [Toll free] mobile phone ・ Also available from PHS
Caller ID is not notified
Please contact the "saw SUUMO (Sumo)"
If it does not lead, If the real estate company
Building coverage, floor area ratio
60% ・ 200%
Time residents
Consultation
Land of the right form
Ownership
Structure and method of construction
Wooden three-story (KDP21 method)
Use district
One dwelling
Other limitations
Shade limit Yes
Overview and notices
Facilities: Public Water Supply, This sewage, City gas, Building confirmation number: No. H24SHC117659, Parking: Car Port
Company profile
<Mediation> Minister of Land, Infrastructure and Transport (1) the first 008,536 No. ion housing (Ltd.) Four Members Yubinbango104-0033, Chuo-ku, Tokyo Shinkawa 1-24-12


Floor plan

Floor plan. 28,950,000 yen, 3LDK, Land area 62.92 sq m , Building area 101.62 sq m floor plan
28,950,000 yen, 3LDK, Land area 62.92 sq m , Building area 101.62 sq m floor plan

Other

Other. Tobu Store Co., Ltd. Kitaomiya shop
Tobu Store Co., Ltd. Kitaomiya shop

Other. Kobe kindergarten
Kobe kindergarten

Other. Uenishi park
Uenishi park

Other. Omiya Central General Hospital
Omiya Central General Hospital



Location