|
|
Saitama Prefecture shiraoka
埼玉県白岡市
|
|
JR Utsunomiya Line "Shinshiraoka" walk 14 minutes
JR宇都宮線「新白岡」歩14分
|
|
Car space two Allowed.
カースペース2台可。
|
|
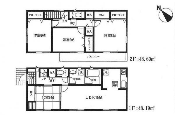
Flat 35 target properties. With bathroom dryer. With solar panels. LDK spacious about 15 Pledge. So we have the building completed, It also supports the day of your visit. Please feel free to tell us.
フラット35対象物件。浴室乾燥機付。太陽光パネル付。LDK広々約15帖。建物完成しておりますので、当日のご見学も対応しております。お気軽にお申し付けください。
|
Features pickup 特徴ピックアップ | | Solar power system / Parking two Allowed / Immediate Available / Land 50 square meters or more / System kitchen / Bathroom Dryer / Yang per good / All room storage / LDK15 tatami mats or more / Or more before road 6m / Japanese-style room / Toilet 2 places / 2-story / Warm water washing toilet seat / Underfloor Storage / TV monitor interphone / Southwestward 太陽光発電システム /駐車2台可 /即入居可 /土地50坪以上 /システムキッチン /浴室乾燥機 /陽当り良好 /全居室収納 /LDK15畳以上 /前道6m以上 /和室 /トイレ2ヶ所 /2階建 /温水洗浄便座 /床下収納 /TVモニタ付インターホン /南西向き |
Price 価格 | | 21,800,000 yen 2180万円 |
Floor plan 間取り | | 4LDK 4LDK |
Units sold 販売戸数 | | 1 units 1戸 |
Total units 総戸数 | | 2 units 2戸 |
Land area 土地面積 | | 193.06 sq m (registration) 193.06m2(登記) |
Building area 建物面積 | | 96.79 sq m (registration) 96.79m2(登記) |
Driveway burden-road 私道負担・道路 | | Nothing, Northeast 6m width 無、北東6m幅 |
Completion date 完成時期(築年月) | | August 2013 2013年8月 |
Address 住所 | | Saitama Prefecture shiraoka Takaiwa 埼玉県白岡市高岩 |
Traffic 交通 | | JR Utsunomiya Line "Shinshiraoka" walk 14 minutes JR宇都宮線「新白岡」歩14分
|
Related links 関連リンク | | [Related Sites of this company] 【この会社の関連サイト】 |
Person in charge 担当者より | | Rep Kanno Takami Age: 40 Daigyokai Experience: 6 years customer so I will do my best so that many can respond to your request, It does not matter what it. First consultation. 担当者菅野 孝美年齢:40代業界経験:6年お客様のご要望に数多く応えられるよう頑張りますので、どんな事でもかまいません。まずはご相談を。 |
Contact お問い合せ先 | | TEL: 0800-603-0561 [Toll free] mobile phone ・ Also available from PHS Caller ID is not notified Please contact the "saw SUUMO (Sumo)" If it does not lead, If the real estate company TEL:0800-603-0561【通話料無料】携帯電話・PHSからもご利用いただけます 発信者番号は通知されません 「SUUMO(スーモ)を見た」と問い合わせください つながらない方、不動産会社の方は
|
Building coverage, floor area ratio 建ぺい率・容積率 | | 60% ・ 200% 60%・200% |
Time residents 入居時期 | | Immediate available 即入居可 |
Land of the right form 土地の権利形態 | | Ownership 所有権 |
Structure and method of construction 構造・工法 | | Wooden 2-story 木造2階建 |
Use district 用途地域 | | Two dwellings 2種住居 |
Overview and notices その他概要・特記事項 | | Contact: Kanno Takami, Facilities: Public Water Supply, This sewage, Building confirmation number: No. 13UDI1W Ken 00378, Parking: car space 担当者:菅野 孝美、設備:公営水道、本下水、建築確認番号:第13UDI1W建00378号、駐車場:カースペース |
Company profile 会社概要 | | <Mediation> Minister of Land, Infrastructure and Transport (3) No. 006,185 (one company) National Housing Industry Association (Corporation) metropolitan area real estate Fair Trade Council member Asahi Housing Corporation Omiya Yubinbango330-0845 Saitama Omiya-ku Nakamachi 1-54-3 Visionary III 4 floor <仲介>国土交通大臣(3)第006185号(一社)全国住宅産業協会会員 (公社)首都圏不動産公正取引協議会加盟朝日住宅(株)大宮店〒330-0845 埼玉県さいたま市大宮区仲町1-54-3 ビジョナリーIII 4階 |