New Homes » Kanto » Saitama » Soka
 
| | Soka 埼玉県草加市 |
| Saitama high-speed rail "Angyo Totsuka" walk 19 minutes 埼玉高速鉄道「戸塚安行」歩19分 |
| ◎ a quiet residential area! Is the new home is located in the beautiful streets in the readjustment land ◎ Shinsakae elementary school ・ Xin Rong until junior high school 10-minute walk (750m)! ◎ 4LDK that can respond to a variety of family structure! ◎閑静な住宅地!区画整理地内の綺麗な街並みに立地する新築住宅です◎新栄小学校・新栄中学校まで徒歩10分(750m)!◎様々な家族構成に対応できる4LDK! |
| ◇ 2 wayside 2 Station Available! Saitama high-speed rail "Angyo Totsuka" station walk 19 minutes & Isesaki Tobu "Nitta" station walk 36 minutes! It is also available bus service from Totsuka Angyo Station. Access to the city is good, convenient location ◇ elementary and junior high schools within a 10-minute walk! This is a featured property in your home that come with child ◇ Because it is a new home, Equipment has been enhanced counter kitchen, TV monitor with intercom, Heating function ・ Ventilation dryer with bathroom, Water purifier with lever faucet, Washlet toilet Other. ※ Car space two Allowed (limited to models) ※ Please leave our founding 43 years in the local! Tobu Isesaki Line is Nitta Station east exit 5-minute walk! Porras birthplace of! Please visit us by all means! We inquiry wait from everyone ◇2沿線2駅利用可!埼玉高速鉄道「戸塚安行」駅徒歩19分&東武伊勢崎線「新田」駅徒歩36分!戸塚安行駅からはバス便もございます。都心へのアクセス良好で便利な立地です◇小中学校徒歩10分圏内!お子様のいらっしゃるご家庭におすすめの物件です◇新築住宅ですので、設備が充実していますカウンターキッチン、TVモニター付きインターフォン、暖房機能・換気乾燥機付き浴室、浄水器付きレバー水栓、ウォシュレットトイレほか。※カースペース2台可(車種に制限あり)※地元で創業43年の当社にお任せ下さい!東武伊勢崎線新田駅東口徒歩5分です!ポラス発祥の地!ぜひご来店ください!皆様からのお問合せお待ちしています |
Features pickup 特徴ピックアップ | | Parking two Allowed / 2 along the line more accessible / Fiscal year Available / System kitchen / Bathroom Dryer / All room storage / Japanese-style room / Shaping land / Washbasin with shower / Face-to-face kitchen / Toilet 2 places / 2-story / Double-glazing / Warm water washing toilet seat / Underfloor Storage / The window in the bathroom / TV monitor interphone / Southwestward / Water filter / All rooms are two-sided lighting / roof balcony / Readjustment land within 駐車2台可 /2沿線以上利用可 /年度内入居可 /システムキッチン /浴室乾燥機 /全居室収納 /和室 /整形地 /シャワー付洗面台 /対面式キッチン /トイレ2ヶ所 /2階建 /複層ガラス /温水洗浄便座 /床下収納 /浴室に窓 /TVモニタ付インターホン /南西向き /浄水器 /全室2面採光 /ルーフバルコニー /区画整理地内 | Price 価格 | | 27,900,000 yen 2790万円 | Floor plan 間取り | | 4LDK 4LDK | Units sold 販売戸数 | | 1 units 1戸 | Total units 総戸数 | | 1 units 1戸 | Land area 土地面積 | | 100 sq m (30.24 tsubo) (Registration) 100m2(30.24坪)(登記) | Building area 建物面積 | | 89.43 sq m (27.05 tsubo) (Registration) 89.43m2(27.05坪)(登記) | Driveway burden-road 私道負担・道路 | | Nothing, North 4m width 無、北4m幅 | Completion date 完成時期(築年月) | | January 2014 2014年1月 | Address 住所 | | Soka Shinsakae cho 埼玉県草加市新栄町 | Traffic 交通 | | Saitama high-speed rail "Angyo Totsuka" walk 19 minutes Saitama high-speed rail "Angyo Totsuka" bus 6 minutes new Hyoe walk 5 minutes Isesaki Tobu "Nitta" walk 36 minutes 埼玉高速鉄道「戸塚安行」歩19分 埼玉高速鉄道「戸塚安行」バス6分新兵衛歩5分 東武伊勢崎線「新田」歩36分
| Related links 関連リンク | | [Related Sites of this company] 【この会社の関連サイト】 | Person in charge 担当者より | | Person in charge of real-estate and building Sawada Masato Age: 20 Daigyokai Experience: 4 years [Graduate] Chiyoda ward, Tokyo [hobby] Watching sports (especially football), tennis 担当者宅建澤田 正人年齢:20代業界経験:4年【出身】東京都千代田区【趣味】スポーツ観戦(特にサッカー)、テニス | Contact お問い合せ先 | | TEL: 0800-603-0721 [Toll free] mobile phone ・ Also available from PHS Caller ID is not notified Please contact the "saw SUUMO (Sumo)" If it does not lead, If the real estate company TEL:0800-603-0721【通話料無料】携帯電話・PHSからもご利用いただけます 発信者番号は通知されません 「SUUMO(スーモ)を見た」と問い合わせください つながらない方、不動産会社の方は
| Building coverage, floor area ratio 建ぺい率・容積率 | | 60% ・ 150% 60%・150% | Time residents 入居時期 | | February 2014 schedule 2014年2月予定 | Land of the right form 土地の権利形態 | | Ownership 所有権 | Structure and method of construction 構造・工法 | | Wooden 2-story 木造2階建 | Use district 用途地域 | | One low-rise 1種低層 | Overview and notices その他概要・特記事項 | | Contact: Sawada Masato, Facilities: Public Water Supply, This sewage, Individual LPG, Building confirmation number: No. SJK-KX1311200251, Parking: car space 担当者:澤田 正人、設備:公営水道、本下水、個別LPG、建築確認番号:第SJK-KX1311200251号、駐車場:カースペース | Company profile 会社概要 | | <Mediation> Minister of Land, Infrastructure and Transport (11) No. 002401 (Corporation) Prefecture Building Lots and Buildings Transaction Business Association (Corporation) metropolitan area real estate Fair Trade Council member (Ltd.) a central residential Soka Information Center Yubinbango340-0052 Soka KimuAkira cho 329-1 <仲介>国土交通大臣(11)第002401号(公社)埼玉県宅地建物取引業協会会員 (公社)首都圏不動産公正取引協議会加盟(株)中央住宅草加情報センター〒340-0052 埼玉県草加市金明町329-1 |
Local appearance photo現地外観写真  2014 in late January will be completed! Saitama high-speed rail "Angyo Totsuka" station walk 19 minutes! Shaping land! Car space two Allowed! Please feel free to contact us please site (December 2013) Shooting
平成26年1月下旬完成予定!埼玉高速鉄道「戸塚安行」駅徒歩19分!整形地!カースペース2台可!どうぞお気軽にお問い合わせ下さい現地(2013年12月)撮影
 Frontal road Northeast side 4m Local (12 May 2013) Shooting
前面道路 北東側4m 現地(2013年12月)撮影
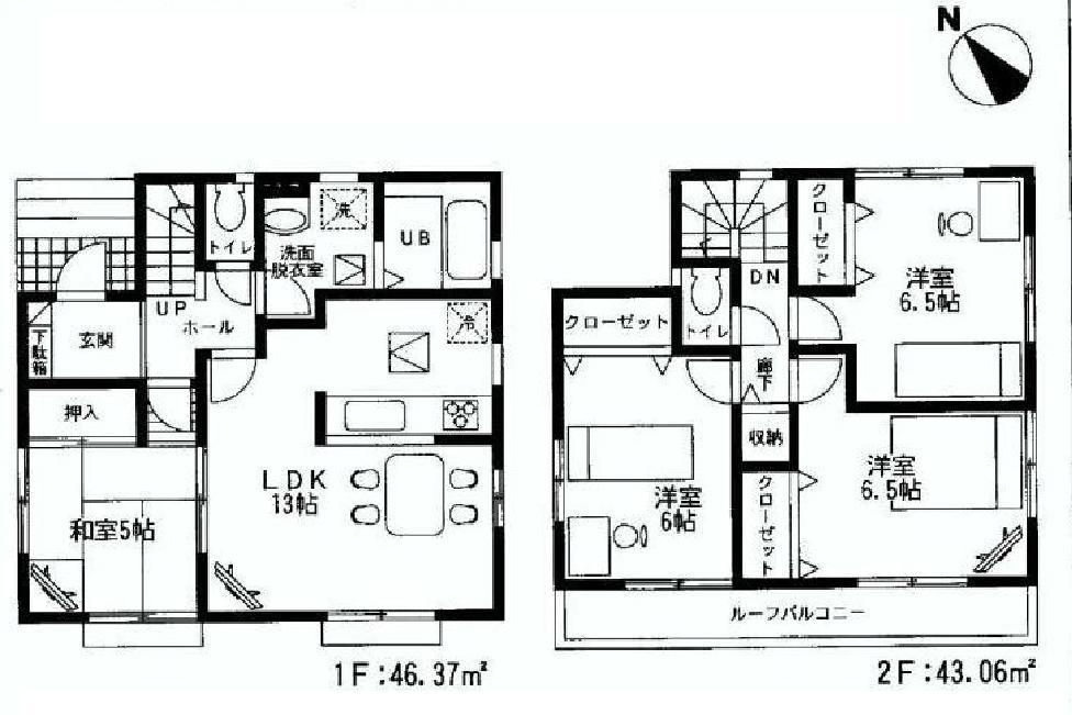
Floor plan間取り図  27,900,000 yen, 4LDK, Land area 100 sq m , Building area 89.43 sq m
2790万円、4LDK、土地面積100m2、建物面積89.43m2
Local photos, including front road前面道路含む現地写真  Local (12 May 2013) Shooting
現地(2013年12月)撮影
Primary school小学校  Soka Municipal Shinyoung to elementary school 750m
草加市立新栄小学校まで750m
Junior high school中学校  Soka Municipal Shinyoung until junior high school 750m
草加市立新栄中学校まで750m
Kindergarten ・ Nursery幼稚園・保育園  Shinei 1000m to nursery school
しんえい保育園まで1000m
 1240m to Komaki kindergarten
小牧幼稚園まで1240m
Hospital病院  290m until the medical corporation moved Mountain Association Ninomiya hospital
医療法人移山会二宮病院まで290m
Park公園  520m until Angyodewa park
安行出羽公園まで520m
Location
|