New Homes » Kanto » Saitama » Toda
 
| | Toda City Prefecture 埼玉県戸田市 |
| JR Saikyo Line "Musashi Urawa" walk 26 minutes JR埼京線「武蔵浦和」歩26分 |
| Immediate Available, 2 along the line more accessible, System kitchen, Bathroom Dryer, All room storage, Or more before road 6m, Toilet 2 places, 2-story, South balcony, Zenshitsuminami direction, TV monitor interphone, Development sale 即入居可、2沿線以上利用可、システムキッチン、浴室乾燥機、全居室収納、前道6m以上、トイレ2ヶ所、2階建、南面バルコニー、全室南向き、TVモニタ付インターホン、開発分譲 |
| Available already completed per turnkey is Kano !! 2 station 2 wayside over access to each district is also good yang per per good !! south balcony. 完成済みにつき即入居叶です!!2駅2沿線以上利用可能で各方面へのアクセスも良好!!南面バルコニーにつき陽当り良好です。 |
Features pickup 特徴ピックアップ | | 2 along the line more accessible / System kitchen / Bathroom Dryer / All room storage / Or more before road 6m / Toilet 2 places / 2-story / South balcony / Zenshitsuminami direction / TV monitor interphone / Development subdivision in 2沿線以上利用可 /システムキッチン /浴室乾燥機 /全居室収納 /前道6m以上 /トイレ2ヶ所 /2階建 /南面バルコニー /全室南向き /TVモニタ付インターホン /開発分譲地内 | Price 価格 | | 26,800,000 yen ・ 27,800,000 yen 2680万円・2780万円 | Floor plan 間取り | | 4LDK ・ 4LDK + S (storeroom) 4LDK・4LDK+S(納戸) | Units sold 販売戸数 | | 3 units 3戸 | Total units 総戸数 | | 6 units 6戸 | Land area 土地面積 | | 108.83 sq m ~ 113.17 sq m (32.92 tsubo ~ 34.23 tsubo) (Registration) 108.83m2 ~ 113.17m2(32.92坪 ~ 34.23坪)(登記) | Building area 建物面積 | | 83.83 sq m ~ 92.33 sq m (25.35 tsubo ~ 27.92 tsubo) (Registration) 83.83m2 ~ 92.33m2(25.35坪 ~ 27.92坪)(登記) | Driveway burden-road 私道負担・道路 | | Road width: 7.96m ~ 10.9m 道路幅:7.96m ~ 10.9m | Completion date 完成時期(築年月) | | October 2013 2013年10月 | Address 住所 | | Toda City Prefecture Bijogi 2 埼玉県戸田市美女木2 | Traffic 交通 | | JR Saikyo Line "Musashi Urawa" walk 26 minutes JR Saikyo Line "Musashi Urawa" 8 minutes Bijogi bypass inlet walk 1 minute bus JR Saikyo Line "Toda north" walk 26 minutes JR埼京線「武蔵浦和」歩26分 JR埼京線「武蔵浦和」バス8分美女木バイパス入口歩1分 JR埼京線「北戸田」歩26分
| Related links 関連リンク | | [Related Sites of this company] 【この会社の関連サイト】 | Contact お問い合せ先 | | TEL: 0800-601-6346 [Toll free] mobile phone ・ Also available from PHS Caller ID is not notified Please contact the "saw SUUMO (Sumo)" If it does not lead, If the real estate company TEL:0800-601-6346【通話料無料】携帯電話・PHSからもご利用いただけます 発信者番号は通知されません 「SUUMO(スーモ)を見た」と問い合わせください つながらない方、不動産会社の方は
| Most price range 最多価格帯 | | 27 million yen (2 units) 2700万円台(2戸) | Building coverage, floor area ratio 建ぺい率・容積率 | | Kenpei rate: 60%, Volume ratio: 200% 建ペい率:60%、容積率:200% | Time residents 入居時期 | | Consultation 相談 | Land of the right form 土地の権利形態 | | Ownership 所有権 | Structure and method of construction 構造・工法 | | Wooden 2-story 木造2階建 | Use district 用途地域 | | Semi-industrial 準工業 | Other limitations その他制限事項 | | There is garbage storage equity (2.90 sq m × 1 / 6) ゴミ置き場持分あり(2.90m2×1/6) | Overview and notices その他概要・特記事項 | | Building confirmation number: No. 13UDI1W Ken 00847 ~ The 13UDI1W Ken No. 00852 建築確認番号:第13UDI1W建00847号 ~ 第13UDI1W建00852号 | Company profile 会社概要 | | <Mediation> Minister of Land, Infrastructure and Transport (2) Toda City Prefecture No. 007773 (Ltd.) Heiwa Real Estate Todakoen shop Yubinbango335-0023 Honcho 4-17-23 second floor <仲介>国土交通大臣(2)第007773号(株)平和不動産戸田公園店〒335-0023 埼玉県戸田市本町4-17-23 2階 |
Local appearance photo現地外観写真  1 Building Local (10 May 2013) Shooting
1号棟 現地(2013年10月)撮影
Otherその他  Musashi Urawa Station
武蔵浦和駅
Local appearance photo現地外観写真  6 Building Local (10 May 2013) Shooting
6号棟 現地(2013年10月)撮影
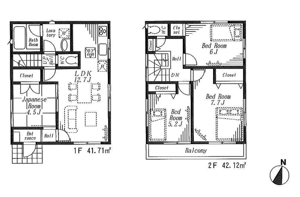
Floor plan間取り図  (1 Building), Price 27,800,000 yen, 4LDK+S, Land area 108.83 sq m , Building area 89.9 sq m
(1号棟)、価格2780万円、4LDK+S、土地面積108.83m2、建物面積89.9m2
Local appearance photo現地外観写真  6 Building Local (10 May 2013) Shooting
6号棟 現地(2013年10月)撮影
Local photos, including front road前面道路含む現地写真  Local (10 May 2013) Shooting
現地(2013年10月)撮影
Shopping centreショッピングセンター  1154m to Aeon Mall Toda north
イオンモール北戸田まで1154m
The entire compartment Figure全体区画図  Compartment figure
区画図
Otherその他  Bijogi elementary school
美女木小学校
Floor plan間取り図  (4 Building), Price 26,800,000 yen, 4LDK, Land area 113.17 sq m , Building area 92.33 sq m
(4号棟)、価格2680万円、4LDK、土地面積113.17m2、建物面積92.33m2
Park公園  Saimizuumi Doman to Green Park 1243m
彩湖道満グリーンパークまで1243m
Floor plan間取り図  (5 Building), Price 27,800,000 yen, 4LDK, Land area 110.1 sq m , Building area 83.83 sq m
(5号棟)、価格2780万円、4LDK、土地面積110.1m2、建物面積83.83m2
Location
|