2012February
17.8 million yen, 2LDK, 58.08 sq m
New Homes » Kanto » Saitama » Tokorozawa
 
| | Tokorozawa Prefecture 埼玉県所沢市 |
| Seibu Ikebukuro Line "Nishitokorozawa" walk 18 minutes 西武池袋線「西所沢」歩18分 |
Features pickup 特徴ピックアップ | | System kitchen / Bathroom Dryer / 2-story / Underfloor Storage / TV monitor interphone / Water filter / Attic storage システムキッチン /浴室乾燥機 /2階建 /床下収納 /TVモニタ付インターホン /浄水器 /屋根裏収納 | Price 価格 | | 17.8 million yen 1780万円 | Floor plan 間取り | | 2LDK 2LDK | Units sold 販売戸数 | | 1 units 1戸 | Land area 土地面積 | | 63 sq m (registration) 63m2(登記) | Building area 建物面積 | | 58.08 sq m (registration) 58.08m2(登記) | Driveway burden-road 私道負担・道路 | | Nothing 無 | Completion date 完成時期(築年月) | | February 2012 2012年2月 | Address 住所 | | Tokorozawa Prefecture, Oaza Kume 埼玉県所沢市大字久米 | Traffic 交通 | | Seibu Ikebukuro Line "Nishitokorozawa" walk 18 minutes 西武池袋線「西所沢」歩18分
| Person in charge 担当者より | | [Regarding this property.] 10 million yen in new construction. Modern was a dark brown and white color scheme with a stylish housing. Living there is a feeling of opening in the atrium. 【この物件について】新築で1000万円台。ダークブラウンと白を基調にしたモダンでおしゃれな住宅です。リビングは吹抜けで開放感があります。 | Contact お問い合せ先 | | TEL: 0800-603-1850 [Toll free] mobile phone ・ Also available from PHS Caller ID is not notified Please contact the "saw SUUMO (Sumo)" If it does not lead, If the real estate company TEL:0800-603-1850【通話料無料】携帯電話・PHSからもご利用いただけます 発信者番号は通知されません 「SUUMO(スーモ)を見た」と問い合わせください つながらない方、不動産会社の方は
| Time residents 入居時期 | | Consultation 相談 | Land of the right form 土地の権利形態 | | Ownership 所有権 | Structure and method of construction 構造・工法 | | Wooden 2-story 木造2階建 | Overview and notices その他概要・特記事項 | | Facilities: Public Water Supply, This sewage, Parking: car space 設備:公営水道、本下水、駐車場:カースペース | Company profile 会社概要 | | <Mediation> Saitama Governor (6) No. 016314 (Corporation) Prefecture Building Lots and Buildings Transaction Business Association (Corporation) metropolitan area real estate Fair Trade Council member Ye station Tokorozawa central store (Ltd.) Seiwa housing Yubinbango359-1113 Tokorozawa Prefecture Kita-cho, 17-14 Sykes Building 2F <仲介>埼玉県知事(6)第016314号(公社)埼玉県宅地建物取引業協会会員 (公社)首都圏不動産公正取引協議会加盟イエステーション所沢中央店(株)セイワハウジング〒359-1113 埼玉県所沢市喜多町17-14 サイクスビル2F |
 Living
リビング
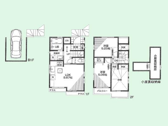
Floor plan間取り図  17.8 million yen, 2LDK, Land area 63 sq m , Building area 58.08 sq m
1780万円、2LDK、土地面積63m2、建物面積58.08m2
 Local appearance photo
現地外観写真
 Local appearance photo
現地外観写真
 Bathroom
浴室
 Kitchen
キッチン
 Non-living room
リビング以外の居室
 Wash basin, toilet
洗面台・洗面所
Receipt収納  Attic storage
小屋裏収納庫
 Toilet
トイレ
 Other introspection
その他内観
 Receipt
収納
Location
|