New Homes » Kanto » Saitama » Tokorozawa
 
| | Tokorozawa Prefecture 埼玉県所沢市 |
| Seibu Shinjuku Line "Kokukoen" 10 minutes Nakatomiminami walk 4 minutes by bus 西武新宿線「航空公園」バス10分中富南歩4分 |
| Living environment Este City subdivision peace of mind in the beautiful cityscape The site is land shaped by a 165 sq m of the room The building is a large floor plans of also 102 sq m. 美しい街並みで安心の住環境エステシティ分譲地 敷地はゆとりの165m2で整形地 建物も102m2の大型間取りです。 |
| Corresponding to the flat-35S, Parking three or more possible, 2 along the line more accessible, LDK18 tatami mats or more, Facing south, System kitchen, Bathroom Dryer, Yang per good, All room storage, A quiet residential area, Or more before road 6mese-style room, Shaping land, Washbasin with shower, Face-to-face kitchen, Wide balcony, Toilet 2 places, Bathroom 1 tsubo or more, 2-story, South balcony, Double-glazing, Otobasu, Warm water washing toilet seat, Nantei, Underfloor Storage, The window in the bathroom, TV monitor interphone, Ventilation good, All room 6 tatami mats or more, Water filter, All rooms are two-sided lighting, Flat terrain, Readjustment land within フラット35Sに対応、駐車3台以上可、2沿線以上利用可、LDK18畳以上、南向き、システムキッチン、浴室乾燥機、陽当り良好、全居室収納、閑静な住宅地、前道6m以上、和室、整形地、シャワー付洗面台、対面式キッチン、ワイドバルコニー、トイレ2ヶ所、浴室1坪以上、2階建、南面バルコニー、複層ガラス、オートバス、温水洗浄便座、南庭、床下収納、浴室に窓、TVモニタ付インターホン、通風良好、全居室6畳以上、浄水器、全室2面採光、平坦地、区画整理地内 |
Features pickup 特徴ピックアップ | | Corresponding to the flat-35S / Parking three or more possible / 2 along the line more accessible / LDK18 tatami mats or more / Facing south / System kitchen / Bathroom Dryer / Yang per good / All room storage / A quiet residential area / Or more before road 6m / Japanese-style room / Shaping land / Washbasin with shower / Face-to-face kitchen / Wide balcony / Toilet 2 places / Bathroom 1 tsubo or more / 2-story / South balcony / Double-glazing / Otobasu / Warm water washing toilet seat / Nantei / Underfloor Storage / The window in the bathroom / TV monitor interphone / Ventilation good / All room 6 tatami mats or more / Water filter / All rooms are two-sided lighting / Flat terrain / Readjustment land within フラット35Sに対応 /駐車3台以上可 /2沿線以上利用可 /LDK18畳以上 /南向き /システムキッチン /浴室乾燥機 /陽当り良好 /全居室収納 /閑静な住宅地 /前道6m以上 /和室 /整形地 /シャワー付洗面台 /対面式キッチン /ワイドバルコニー /トイレ2ヶ所 /浴室1坪以上 /2階建 /南面バルコニー /複層ガラス /オートバス /温水洗浄便座 /南庭 /床下収納 /浴室に窓 /TVモニタ付インターホン /通風良好 /全居室6畳以上 /浄水器 /全室2面採光 /平坦地 /区画整理地内 | Price 価格 | | 29,800,000 yen 2980万円 | Floor plan 間取り | | 4LDK 4LDK | Units sold 販売戸数 | | 2 units 2戸 | Total units 総戸数 | | 2 units 2戸 | Land area 土地面積 | | 165.18 sq m ~ 165.19 sq m (49.96 tsubo ~ 49.96 tsubo) (Registration) 165.18m2 ~ 165.19m2(49.96坪 ~ 49.96坪)(登記) | Building area 建物面積 | | 102.67 sq m (31.05 tsubo) (Registration) 102.67m2(31.05坪)(登記) | Driveway burden-road 私道負担・道路 | | Road width: 6.0m, Asphaltic pavement 道路幅:6.0m、アスファルト舗装 | Completion date 完成時期(築年月) | | January 2014 late schedule 2014年1月下旬予定 | Address 住所 | | Tokorozawa Prefecture Nakatomiminami 2 埼玉県所沢市中富南2 | Traffic 交通 | | Seibu Shinjuku Line "Kokukoen" 10 minutes Nakatomiminami walk 4 minutes by bus JR Musashino Line "Higashitokorozawa" bus 15 minutes Nakatomiminami walk 4 minutes Seibu Ikebukuro Line "Tokorozawa" walk 50 minutes 西武新宿線「航空公園」バス10分中富南歩4分 JR武蔵野線「東所沢」バス15分中富南歩4分西武池袋線「所沢」歩50分
| Contact お問い合せ先 | | TEL: 0800-603-1887 [Toll free] mobile phone ・ Also available from PHS Caller ID is not notified Please contact the "saw SUUMO (Sumo)" If it does not lead, If the real estate company TEL:0800-603-1887【通話料無料】携帯電話・PHSからもご利用いただけます 発信者番号は通知されません 「SUUMO(スーモ)を見た」と問い合わせください つながらない方、不動産会社の方は
| Building coverage, floor area ratio 建ぺい率・容積率 | | Kenpei rate: 60%, Volume ratio: 150% 建ペい率:60%、容積率:150% | Time residents 入居時期 | | January 2014 late schedule 2014年1月下旬予定 | Land of the right form 土地の権利形態 | | Ownership 所有権 | Structure and method of construction 構造・工法 | | Wooden 2-story (framing method) 木造2階建(軸組工法) | Use district 用途地域 | | One middle and high 1種中高 | Land category 地目 | | Residential land 宅地 | Other limitations その他制限事項 | | Height ceiling Yes, Site area minimum Yes, Shade limit Yes 高さ最高限度有、敷地面積最低限度有、日影制限有 | Overview and notices その他概要・特記事項 | | Building confirmation number: 13-770 建築確認番号:13-770 | Company profile 会社概要 | | <Mediation> Minister of Land, Infrastructure and Transport (4) No. 005817 (Corporation) All Japan Real Estate Association (Corporation) metropolitan area real estate Fair Trade Council member (Ltd.) Estate Hakuba Tokorozawa shop sales Division 1 Yubinbango359-1124 Tokorozawa Prefecture Higashi Sumiyoshi 12-23 Hakuba Building <仲介>国土交通大臣(4)第005817号(公社)全日本不動産協会会員 (公社)首都圏不動産公正取引協議会加盟(株)エステート白馬所沢店営業1課〒359-1124 埼玉県所沢市東住吉12-23 白馬ビルディング |
Local appearance photo現地外観写真  Local (12 May 2013) Shooting
現地(2013年12月)撮影
Local photos, including front road前面道路含む現地写真  Local (July 2013) Shooting
現地(2013年7月)撮影
Kitchenキッチン  Indoor (12 May 2013) Shooting
室内(2013年12月)撮影
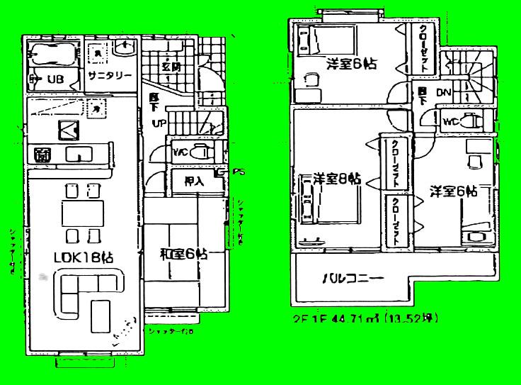
Floor plan間取り図  (2), Price 29,800,000 yen, 4LDK, Land area 165.19 sq m , Building area 102.67 sq m
(2)、価格2980万円、4LDK、土地面積165.19m2、建物面積102.67m2
Local appearance photo現地外観写真  Local (12 May 2013) Shooting
現地(2013年12月)撮影
Livingリビング  Indoor (12 May 2013) Shooting
室内(2013年12月)撮影
Bathroom浴室  Indoor (12 May 2013) Shooting
室内(2013年12月)撮影
 Construction ・ Construction method ・ specification
構造・工法・仕様
 Security equipment
防犯設備
Balconyバルコニー  Local (12 May 2013) Shooting
現地(2013年12月)撮影
Supermarketスーパー  Ozamu up to 400m
オザムまで400m
Other introspectionその他内観  Indoor (12 May 2013) Shooting
室内(2013年12月)撮影
 The entire compartment Figure
全体区画図
 Other Equipment
その他設備
Home centerホームセンター  Until Keiyo D2 400m
ケイヨーD2まで400m
 Other Equipment
その他設備
Primary school小学校  Nakatomi to elementary school 1300m
中富小学校まで1300m
 Other Equipment
その他設備
Park公園  Michisoba East Park 600m to
道傍東公園まで600m
 Cooling and heating ・ Air conditioning
冷暖房・空調設備
 350m to Musashino park
武蔵野公園まで350m
Location
|