New Homes » Kanto » Saitama » Tokorozawa
 
| | Tokorozawa Prefecture 埼玉県所沢市 |
| Seibu Ikebukuro Line "Kotesashi" walk 13 minutes 西武池袋線「小手指」歩13分 |
| It is a convenient location that can be used 2 Line 2 Station. Conversation of the family is momentum in the popularity of face-to-face kitchen adoption. Japanese-style is easy-to-use floor plan adjacent to the living room. Near living environment good elementary school and supermarkets 2路線2駅利用できる便利な立地です。 人気の対面キッチン採用で家族の会話が弾みます。和室がリビングに隣接した使いやすい間取りです。 小学校やスーパーが近く生活環境良好 |
| ■ Comfortable life in all window glazing ■ With closet in each room ■全窓ペアガラスで快適な暮らし■各居室にクローゼット付 |
Features pickup 特徴ピックアップ | | Corresponding to the flat-35S / 2 along the line more accessible / Facing south / Bathroom Dryer / A quiet residential area / Japanese-style room / Bathroom 1 tsubo or more / 2-story / Double-glazing / TV monitor interphone フラット35Sに対応 /2沿線以上利用可 /南向き /浴室乾燥機 /閑静な住宅地 /和室 /浴室1坪以上 /2階建 /複層ガラス /TVモニタ付インターホン | Price 価格 | | 34,900,000 yen 3490万円 | Floor plan 間取り | | 4LDK 4LDK | Units sold 販売戸数 | | 1 units 1戸 | Total units 総戸数 | | 2 units 2戸 | Land area 土地面積 | | 136.79 sq m 136.79m2 | Building area 建物面積 | | 91.08 sq m 91.08m2 | Driveway burden-road 私道負担・道路 | | 13.78 sq m , North 4m width 13.78m2、北4m幅 | Completion date 完成時期(築年月) | | February 2014 2014年2月 | Address 住所 | | Tokorozawa Prefecture Kamiarai 4 埼玉県所沢市上新井4 | Traffic 交通 | | Seibu Ikebukuro Line "Kotesashi" walk 13 minutes Seibu Shinjuku Line "Shin Tokorozawa" walk 15 minutes 西武池袋線「小手指」歩13分 西武新宿線「新所沢」歩15分
| Contact お問い合せ先 | | TEL: 0120-778772 [Toll free] Please contact the "saw SUUMO (Sumo)" TEL:0120-778772【通話料無料】「SUUMO(スーモ)を見た」と問い合わせください | Time residents 入居時期 | | February 2014 schedule 2014年2月予定 | Land of the right form 土地の権利形態 | | Ownership 所有権 | Structure and method of construction 構造・工法 | | Wooden 2-story 木造2階建 | Other limitations その他制限事項 | | Yes communal area Effective residential land area is 115.12 sq m. 共用部分あり 有効宅地面積は115.12m2です。 | Overview and notices その他概要・特記事項 | | Building confirmation number: No. HPA13-06579, Parking: car space 建築確認番号:第HPA13-06579号、駐車場:カースペース | Company profile 会社概要 | | <Mediation> Saitama Governor (7) No. 013630 (Corporation) All Japan Real Estate Association (Corporation) metropolitan area real estate Fair Trade Council member Co., Ltd. Yamaguchi planning design headquarters Yubinbango359-1113 Tokorozawa Prefecture Kita-cho, 9-5 <仲介>埼玉県知事(7)第013630号(公社)全日本不動産協会会員 (公社)首都圏不動産公正取引協議会加盟(株)山口企画設計本社〒359-1113 埼玉県所沢市喜多町9-5 |
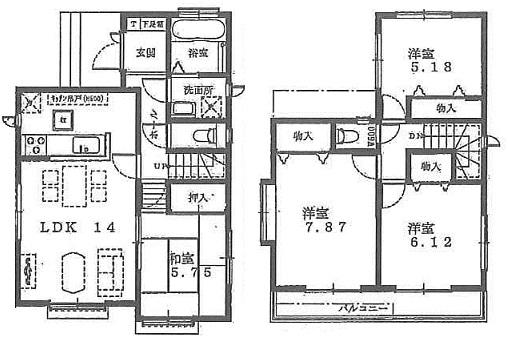
Floor plan間取り図  34,900,000 yen, 4LDK, Land area 136.79 sq m , Building area 91.08 sq m floor plan
3490万円、4LDK、土地面積136.79m2、建物面積91.08m2 間取り図
Local photos, including front road前面道路含む現地写真  Local (December 6, 2013) Shooting
現地(2013年12月6日)撮影
Other localその他現地  Local (December 6, 2013) Shooting
現地(2013年12月6日)撮影
Station駅  1040m to Kotesashi Station
小手指駅まで1040m
 1200m until Shin Tokorozawa Station
新所沢駅まで1200m
Primary school小学校  Kamiarai until elementary school 640m
上新井小学校まで640m
Junior high school中学校  Kotesashi 2080m until junior high school
小手指中学校まで2080m
Supermarketスーパー  Until Seiyu 640m
西友まで640m
Location
|