New Homes » Kanto » Saitama » Tokorozawa
 
| | Tokorozawa Prefecture 埼玉県所沢市 |
| JR Musashino Line "Shin Akitsu" walk 21 minutes JR武蔵野線「新秋津」歩21分 |
| It is very spacious with a land area 51 square meters more than. To ensure greater than or equal to a total rooms 6 Pledge, Storage is also perfect for those big family because there a lot. 敷地面積51坪超で大変広々としています。全室6帖以上を確保し、収納もたくさんございますので大家族の方にもぴったりです。 |
| Corresponding to the flat-35S, Parking two Allowed, 2 along the line more accessible, Land 50 square meters or more, LDK18 tatami mats or more, Facing south, System kitchen, Bathroom Dryer, Yang per good, All room storage, A quiet residential area, Around traffic fewerese-style room, Shaping land, Washbasin with shower, Face-to-face kitchen, Barrier-free, Bathroom 1 tsubo or more, 2-story, South balcony, Double-glazing, Underfloor Storage, The window in the bathroom, Leafy residential area, Ventilation good, Dish washing dryer, Walk-in closet, All room 6 tatami mats or more, Water filter, Attic storage, Floor heating フラット35Sに対応、駐車2台可、2沿線以上利用可、土地50坪以上、LDK18畳以上、南向き、システムキッチン、浴室乾燥機、陽当り良好、全居室収納、閑静な住宅地、周辺交通量少なめ、和室、整形地、シャワー付洗面台、対面式キッチン、バリアフリー、浴室1坪以上、2階建、南面バルコニー、複層ガラス、床下収納、浴室に窓、緑豊かな住宅地、通風良好、食器洗乾燥機、ウォークインクロゼット、全居室6畳以上、浄水器、屋根裏収納、床暖房 |
Features pickup 特徴ピックアップ | | Corresponding to the flat-35S / Parking two Allowed / 2 along the line more accessible / Land 50 square meters or more / LDK18 tatami mats or more / Facing south / System kitchen / Bathroom Dryer / Yang per good / All room storage / A quiet residential area / Around traffic fewer / Japanese-style room / Shaping land / Washbasin with shower / Face-to-face kitchen / Barrier-free / Bathroom 1 tsubo or more / 2-story / South balcony / Double-glazing / Underfloor Storage / The window in the bathroom / Leafy residential area / Ventilation good / Dish washing dryer / Walk-in closet / All room 6 tatami mats or more / Water filter / Attic storage / Floor heating フラット35Sに対応 /駐車2台可 /2沿線以上利用可 /土地50坪以上 /LDK18畳以上 /南向き /システムキッチン /浴室乾燥機 /陽当り良好 /全居室収納 /閑静な住宅地 /周辺交通量少なめ /和室 /整形地 /シャワー付洗面台 /対面式キッチン /バリアフリー /浴室1坪以上 /2階建 /南面バルコニー /複層ガラス /床下収納 /浴室に窓 /緑豊かな住宅地 /通風良好 /食器洗乾燥機 /ウォークインクロゼット /全居室6畳以上 /浄水器 /屋根裏収納 /床暖房 | Price 価格 | | 36,800,000 yen 3680万円 | Floor plan 間取り | | 4LDK + S (storeroom) 4LDK+S(納戸) | Units sold 販売戸数 | | 1 units 1戸 | Total units 総戸数 | | 1 units 1戸 | Land area 土地面積 | | 169.85 sq m (registration) 169.85m2(登記) | Building area 建物面積 | | 114.43 sq m (measured) 114.43m2(実測) | Driveway burden-road 私道負担・道路 | | Nothing, East 4m width 無、東4m幅 | Completion date 完成時期(築年月) | | May 2014 2014年5月 | Address 住所 | | Tokorozawa Prefecture, Oaza Shimoyasumatsu 埼玉県所沢市大字下安松 | Traffic 交通 | | JR Musashino Line "Shin Akitsu" walk 21 minutes Seibu Ikebukuro Line "Akitsu" walk 18 minutes JR Musashino Line "Higashitokorozawa" walk 21 minutes JR武蔵野線「新秋津」歩21分 西武池袋線「秋津」歩18分 JR武蔵野線「東所沢」歩21分 | Person in charge 担当者より | | Person in charge of real-estate and building Watanabe Masaru Age: 30 Daigyokai Experience: 8 years Everyone is real estate purchase faced hope and anxiety. I will guide you while clenching the gratitude of which you can by the help of such an important event. We look forward to consultation. 担当者宅建渡辺 勝年齢:30代業界経験:8年だれしもが希望と不安をかかえる不動産購入。そんな大切な出来事のお手伝いをさせていただけるありがたさを噛みしめながらご案内させていただきます。ご相談お待ちしております。 | Contact お問い合せ先 | | TEL: 0800-603-0670 [Toll free] mobile phone ・ Also available from PHS Caller ID is not notified Please contact the "saw SUUMO (Sumo)" If it does not lead, If the real estate company TEL:0800-603-0670【通話料無料】携帯電話・PHSからもご利用いただけます 発信者番号は通知されません 「SUUMO(スーモ)を見た」と問い合わせください つながらない方、不動産会社の方は
| Building coverage, floor area ratio 建ぺい率・容積率 | | Fifty percent ・ 80% 50%・80% | Time residents 入居時期 | | May 2014 plans 2014年5月予定 | Land of the right form 土地の権利形態 | | Ownership 所有権 | Structure and method of construction 構造・工法 | | Wooden 2-story 木造2階建 | Use district 用途地域 | | One low-rise 1種低層 | Other limitations その他制限事項 | | Agricultural Land Act notification requirements, Some agreement passage 農地法届出要、一部協定通路 | Overview and notices その他概要・特記事項 | | Contact: Watanabe Wins, Facilities: Public Water Supply, This sewage, Individual LPG, Building confirmation number: No. 13UDI3T Ken 02502, Parking: car space 担当者:渡辺 勝、設備:公営水道、本下水、個別LPG、建築確認番号:第13UDI3T建02502号、駐車場:カースペース | Company profile 会社概要 | | <Mediation> Minister of Land, Infrastructure and Transport (3) No. 006,323 (one company) National Housing Industry Association (Corporation) metropolitan area real estate Fair Trade Council member (Ltd.) Seibu developing new Tokorozawa shop Yubinbango359-0044 Tokorozawa Prefecture pine needle-cho, 23-16 <仲介>国土交通大臣(3)第006323号(一社)全国住宅産業協会会員 (公社)首都圏不動産公正取引協議会加盟(株)西武開発新所沢店〒359-0044 埼玉県所沢市松葉町23-16 |
Local photos, including front road前面道路含む現地写真  Local appearance photo
現地外観写真
 Local appearance photo
現地外観写真
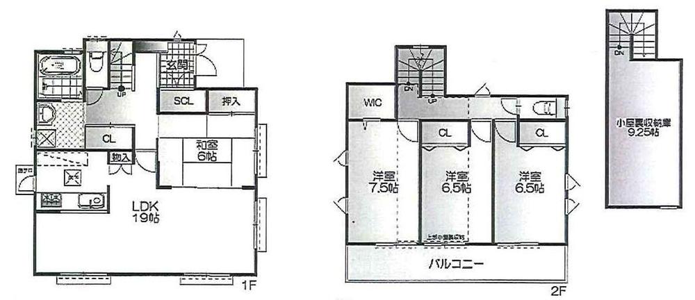
Floor plan間取り図  36,800,000 yen, 4LDK + S (storeroom), Land area 169.85 sq m , Building area 114.43 sq m floor plan
3680万円、4LDK+S(納戸)、土地面積169.85m2、建物面積114.43m2 間取図
 Local appearance photo
現地外観写真
Supermarketスーパー  440m to Super Value Higashitokorozawa shop
スーパーバリュー東所沢店まで440m
 Yaoko Co., Ltd. Tokorozawa until Matsui shop 780m
ヤオコー所沢松井店まで780m
Junior high school中学校  Tokorozawa Municipal Yasumatsu until junior high school 1470m
所沢市立安松中学校まで1470m
Primary school小学校  Tokorozawa Municipal Yasumatsu to elementary school 680m
所沢市立安松小学校まで680m
Kindergarten ・ Nursery幼稚園・保育園  Matsugo 550m to nursery school
松郷保育園まで550m
Hospital病院  Medical Corporation Association Yoshie Board Tokorozawa 540m until the first hospital
医療法人社団秀栄会所沢第一病院まで540m
Station駅  1680m until Shin Akitsu Station
新秋津駅まで1680m
 1440m to Akitsu Station
秋津駅まで1440m
 1680m to Higashitokorozawa Station
東所沢駅まで1680m
Location
|