New Homes » Kanto » Saitama » Tokorozawa
 
| | Tokorozawa Prefecture 埼玉県所沢市 |
| Seibu Ikebukuro Line "Sayamagaoka" walk 3 minutes 西武池袋線「狭山ヶ丘」歩3分 |
| Many of the beautiful cityscape Readjustment land, It is a 3-minute environment of peace of mind to the station. Car space two Allowed. Strong Dairaito method to earthquake 区画整理地何の美しい街並みに、駅まで3分の安心の環境です。カースペース2台可。地震に強いダイライト工法 |
| Corresponding to the flat-35S, Parking two Allowed, System kitchen, Bathroom Dryer, Yang per good, Flat to the station, Siemens south road, Or more before road 6m, Corner lot, Shaping land, Washbasin with shower, Face-to-face kitchen, Toilet 2 places, Bathroom 1 tsubo or more, 2-story, South balcony, Double-glazing, Zenshitsuminami direction, Otobasu, Warm water washing toilet seat, Nantei, The window in the bathroom, TV monitor interphone, Ventilation good, Water filter, Flat terrain, Readjustment land within フラット35Sに対応、駐車2台可、システムキッチン、浴室乾燥機、陽当り良好、駅まで平坦、南側道路面す、前道6m以上、角地、整形地、シャワー付洗面台、対面式キッチン、トイレ2ヶ所、浴室1坪以上、2階建、南面バルコニー、複層ガラス、全室南向き、オートバス、温水洗浄便座、南庭、浴室に窓、TVモニタ付インターホン、通風良好、浄水器、平坦地、区画整理地内 |
Features pickup 特徴ピックアップ | | Corresponding to the flat-35S / Parking two Allowed / System kitchen / Bathroom Dryer / Yang per good / Flat to the station / Siemens south road / Or more before road 6m / Corner lot / Shaping land / Washbasin with shower / Face-to-face kitchen / Toilet 2 places / Bathroom 1 tsubo or more / 2-story / South balcony / Double-glazing / Zenshitsuminami direction / Otobasu / Warm water washing toilet seat / Nantei / The window in the bathroom / TV monitor interphone / Ventilation good / Water filter / Flat terrain / Readjustment land within フラット35Sに対応 /駐車2台可 /システムキッチン /浴室乾燥機 /陽当り良好 /駅まで平坦 /南側道路面す /前道6m以上 /角地 /整形地 /シャワー付洗面台 /対面式キッチン /トイレ2ヶ所 /浴室1坪以上 /2階建 /南面バルコニー /複層ガラス /全室南向き /オートバス /温水洗浄便座 /南庭 /浴室に窓 /TVモニタ付インターホン /通風良好 /浄水器 /平坦地 /区画整理地内 | Price 価格 | | 32,800,000 yen ~ 34,800,000 yen 3280万円 ~ 3480万円 | Floor plan 間取り | | 4LDK 4LDK | Units sold 販売戸数 | | 2 units 2戸 | Total units 総戸数 | | 2 units 2戸 | Land area 土地面積 | | 101.74 sq m ~ 108.43 sq m (30.77 tsubo ~ 32.79 square meters) 101.74m2 ~ 108.43m2(30.77坪 ~ 32.79坪) | Building area 建物面積 | | 93.15 sq m ~ 93.55 sq m (28.17 tsubo ~ 28.29 tsubo) (Registration) 93.15m2 ~ 93.55m2(28.17坪 ~ 28.29坪)(登記) | Driveway burden-road 私道負担・道路 | | Road width: 4.2m, 6.8m, Asphaltic pavement 道路幅:4.2m、6.8m、アスファルト舗装 | Completion date 完成時期(築年月) | | March 2014 in late schedule 2014年3月下旬予定 | Address 住所 | | Tokorozawa Prefecture Higashisayamagaoka 1 埼玉県所沢市東狭山ケ丘1 | Traffic 交通 | | Seibu Ikebukuro Line "Sayamagaoka" walk 3 minutes Seibu Ikebukuro Line "Musashi Fujisawa" walk 15 minutes Seibu Ikebukuro Line "Kotesashi" walk 35 minutes 西武池袋線「狭山ヶ丘」歩3分 西武池袋線「武蔵藤沢」歩15分 西武池袋線「小手指」歩35分
| Contact お問い合せ先 | | TEL: 0800-603-1887 [Toll free] mobile phone ・ Also available from PHS Caller ID is not notified Please contact the "saw SUUMO (Sumo)" If it does not lead, If the real estate company TEL:0800-603-1887【通話料無料】携帯電話・PHSからもご利用いただけます 発信者番号は通知されません 「SUUMO(スーモ)を見た」と問い合わせください つながらない方、不動産会社の方は
| Building coverage, floor area ratio 建ぺい率・容積率 | | Kenpei rate: 60%, Volume ratio: 200% 建ペい率:60%、容積率:200% | Time residents 入居時期 | | March 2014 in late schedule 2014年3月下旬予定 | Land of the right form 土地の権利形態 | | Ownership 所有権 | Structure and method of construction 構造・工法 | | Wooden 2-story (framing method) 木造2階建(軸組工法) | Use district 用途地域 | | One dwelling 1種住居 | Land category 地目 | | Residential land 宅地 | Overview and notices その他概要・特記事項 | | Building confirmation number: 02820 建築確認番号:02820 | Company profile 会社概要 | | <Mediation> Minister of Land, Infrastructure and Transport (4) No. 005817 (Corporation) All Japan Real Estate Association (Corporation) metropolitan area real estate Fair Trade Council member (Ltd.) Estate Hakuba Tokorozawa shop sales Division 1 Yubinbango359-1124 Tokorozawa Prefecture Higashi Sumiyoshi 12-23 Hakuba Building <仲介>国土交通大臣(4)第005817号(公社)全日本不動産協会会員 (公社)首都圏不動産公正取引協議会加盟(株)エステート白馬所沢店営業1課〒359-1124 埼玉県所沢市東住吉12-23 白馬ビルディング |
Rendering (appearance)完成予想図(外観)  Rendering
完成予想図
Same specifications photos (living)同仕様写真(リビング)  Same specifications
同仕様
Same specifications photo (kitchen)同仕様写真(キッチン)  Same specifications
同仕様
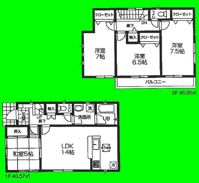
Floor plan間取り図  (1), Price 32,800,000 yen, 4LDK, Land area 108.43 sq m , Building area 93.15 sq m
(1)、価格3280万円、4LDK、土地面積108.43m2、建物面積93.15m2
Same specifications photos (appearance)同仕様写真(外観)  Same specifications
同仕様
Same specifications photo (bathroom)同仕様写真(浴室)  Same specifications
同仕様
 Other Equipment
その他設備
Station駅  240m until Sayamagaoka Station
狭山ヶ丘駅まで240m
Same specifications photos (Other introspection)同仕様写真(その他内観)  Same specifications
同仕様
Floor plan間取り図  (2), Price 34,800,000 yen, 4LDK, Land area 101.74 sq m , Building area 93.55 sq m
(2)、価格3480万円、4LDK、土地面積101.74m2、建物面積93.55m2
Same specifications photos (appearance)同仕様写真(外観)  Same specifications
同仕様
 Other Equipment
その他設備
Supermarketスーパー  300m until Ozamu
オザムまで300m
Same specifications photos (Other introspection)同仕様写真(その他内観)  Same specifications
同仕様
 Other Equipment
その他設備
Kindergarten ・ Nursery幼稚園・保育園  430m until the green nursery
みどり保育園まで430m
 Other Equipment
その他設備
Hospital病院  Ogino 400m to the hospital
荻野病院まで400m
 Other Equipment
その他設備
Park公園  450m to Central Park
中央公園まで450m
Location
|