New Homes » Kanto » Saitama » Wako
 
| | Wako 埼玉県和光市 |
| Tobu Tojo Line "Wako" walk 10 minutes 東武東上線「和光市」歩10分 |
| It is a bright space that is wrapped in a new life with plenty of sunlight to fulfill in a quiet residential area. 閑静な住宅地で叶える新生活たっぷりの陽光に包まれる明るい空間です。 |
| ● face-to-face kitchen to enjoy the conversation with your family, even while cooking! ● 3 routes available commute ・ Convenient to go to school! ● convenient whole room with storage space! ●料理をしながらでもご家族との会話が楽しめる対面キッチン!●3路線利用可能で通勤・通学に便利!●便利な全居室収納スペース付き! |
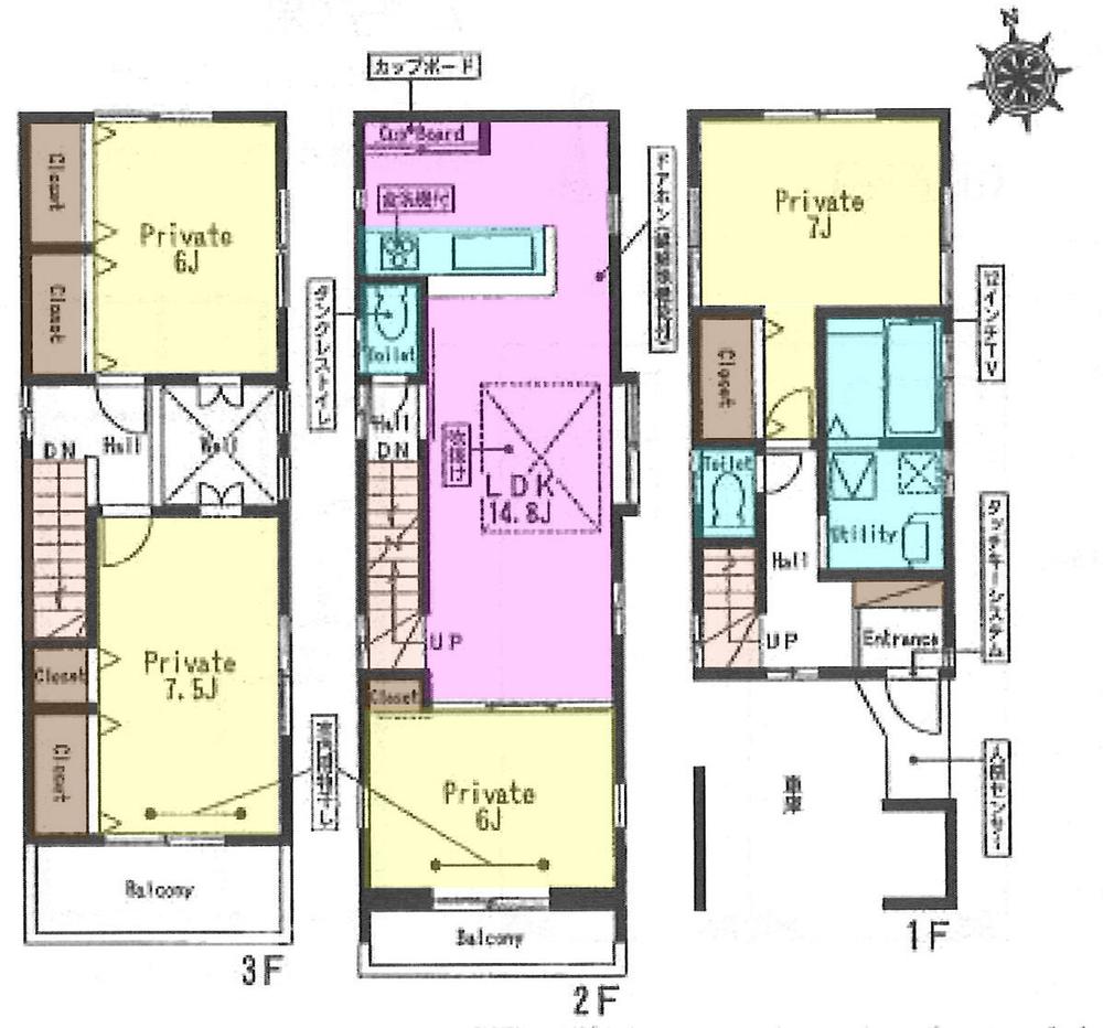
Features pickup 特徴ピックアップ | | 2 along the line more accessible / Facing south / System kitchen / Yang per good / All room storage / A quiet residential area / Washbasin with shower / Face-to-face kitchen / Toilet 2 places / South balcony / The window in the bathroom / All living room flooring / Three-story or more / All rooms are two-sided lighting 2沿線以上利用可 /南向き /システムキッチン /陽当り良好 /全居室収納 /閑静な住宅地 /シャワー付洗面台 /対面式キッチン /トイレ2ヶ所 /南面バルコニー /浴室に窓 /全居室フローリング /3階建以上 /全室2面採光 | Price 価格 | | 39,500,000 yen 3950万円 | Floor plan 間取り | | 4LDK 4LDK | Units sold 販売戸数 | | 1 units 1戸 | Land area 土地面積 | | 70 sq m (registration) 70m2(登記) | Building area 建物面積 | | 115.36 sq m (registration) 115.36m2(登記) | Driveway burden-road 私道負担・道路 | | Nothing, South 4m width 無、南4m幅 | Completion date 完成時期(築年月) | | November 2013 2013年11月 | Address 住所 | | Wako Niikura 1 埼玉県和光市新倉1 | Traffic 交通 | | Tobu Tojo Line "Wako" walk 10 minutes Tobu Tojo Line "Asaka" walk 12 minutes Tokyo Metro Yurakucho Line "subway Narimasu" walk 44 minutes 東武東上線「和光市」歩10分 東武東上線「朝霞」歩12分 東京メトロ有楽町線「地下鉄成増」歩44分
| Related links 関連リンク | | [Related Sites of this company] 【この会社の関連サイト】 | Person in charge 担当者より | | Rep Masamoto Hill in good faith in response, To customers more to help to get used to more your happiness. 担当者八城 丘誠実に対応し、お客様がより一層お幸せになれるようお手伝いさせて頂きます。 | Contact お問い合せ先 | | TEL: 012025-3300 [Toll free] Please contact the "saw SUUMO (Sumo)" TEL:012025-3300【通話料無料】「SUUMO(スーモ)を見た」と問い合わせください | Building coverage, floor area ratio 建ぺい率・容積率 | | 60% ・ 200% 60%・200% | Time residents 入居時期 | | Consultation 相談 | Land of the right form 土地の権利形態 | | Ownership 所有権 | Structure and method of construction 構造・工法 | | Wooden three-story 木造3階建 | Use district 用途地域 | | One middle and high 1種中高 | Overview and notices その他概要・特記事項 | | Contact: Masamoto hill, Facilities: Public Water Supply, This sewage, Individual LPG, Building confirmation number: No. SJK-KX131050674, Parking: Garage 担当者:八城 丘、設備:公営水道、本下水、個別LPG、建築確認番号:第SJK-KX131050674号、駐車場:車庫 | Company profile 会社概要 | | <Mediation> Saitama Governor (2) the first 020,328 No. Century 21 (Co.) East construction Yubinbango351-0112 Wako Maruyamadai 1-4-2 <仲介>埼玉県知事(2)第020328号センチュリー21(株)東日本建設〒351-0112 埼玉県和光市丸山台1-4-2 |
Floor plan間取り図  39,500,000 yen, 4LDK, Land area 70 sq m , Building area 115.36 sq m
3950万円、4LDK、土地面積70m2、建物面積115.36m2
Local appearance photo現地外観写真  Local (12 May 2013) Shooting
現地(2013年12月)撮影
Kitchenキッチン  Indoor (12 May 2013) Shooting
室内(2013年12月)撮影
Livingリビング  Local (12 May 2013) Shooting
現地(2013年12月)撮影
Bathroom浴室  Indoor (12 May 2013) Shooting
室内(2013年12月)撮影
Entrance玄関  Local (12 May 2013) Shooting
現地(2013年12月)撮影
Local photos, including front road前面道路含む現地写真  Local (September 2013) Shooting
現地(2013年9月)撮影
Location
|