2014March
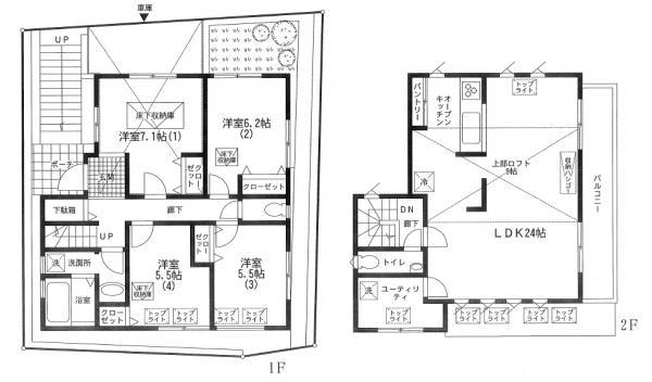
43,800,000 yen, 4LDK + S (storeroom), 126.42 sq m
New Homes » Kanto » Saitama » Wako
 
| | Wako 埼玉県和光市 |
| Tokyo Metro Yurakucho Line "subway Narimasu" walk 8 minutes 東京メトロ有楽町線「地下鉄成増」歩8分 |
| Large 4SLDK of building area 38 square meters. The 24-quires of LDK equipped also of 9 quire loft. Please enjoy the life of the margin. 建築面積38坪の大型4SLDK。24帖のLDKには9帖のロフトも完備。余裕の生活をご堪能ください。 |
Price 価格 | | 43,800,000 yen 4380万円 | Floor plan 間取り | | 4LDK + S (storeroom) 4LDK+S(納戸) | Units sold 販売戸数 | | 1 units 1戸 | Total units 総戸数 | | 1 units 1戸 | Land area 土地面積 | | 106.56 sq m (registration) 106.56m2(登記) | Building area 建物面積 | | 126.42 sq m (measured), Of underground garage 15.8 sq m 126.42m2(実測)、うち地下車庫15.8m2 | Driveway burden-road 私道負担・道路 | | Nothing, North 4m width (contact the road width 9.7m) 無、北4m幅(接道幅9.7m) | Completion date 完成時期(築年月) | | March 2014 2014年3月 | Address 住所 | | Wako milt 2 埼玉県和光市白子2 | Traffic 交通 | | Tokyo Metro Yurakucho Line "subway Narimasu" walk 8 minutes Tobu Tojo Line "Narimasu" walk 9 minutes Toei Oedo Line "Hikarigaoka" walk 31 minutes 東京メトロ有楽町線「地下鉄成増」歩8分 東武東上線「成増」歩9分 都営大江戸線「光が丘」歩31分
| Contact お問い合せ先 | | TEL: 0800-603-0390 [Toll free] mobile phone ・ Also available from PHS Caller ID is not notified Please contact the "saw SUUMO (Sumo)" If it does not lead, If the real estate company TEL:0800-603-0390【通話料無料】携帯電話・PHSからもご利用いただけます 発信者番号は通知されません 「SUUMO(スーモ)を見た」と問い合わせください つながらない方、不動産会社の方は
| Building coverage, floor area ratio 建ぺい率・容積率 | | 60% ・ 200% 60%・200% | Time residents 入居時期 | | Consultation 相談 | Land of the right form 土地の権利形態 | | Ownership 所有権 | Structure and method of construction 構造・工法 | | Wooden 2-story 木造2階建 | Use district 用途地域 | | One dwelling 1種住居 | Overview and notices その他概要・特記事項 | | Facilities: Public Water Supply, This sewage, City gas, Building confirmation number: H25A-JKex00165-01, Parking: underground garage 設備:公営水道、本下水、都市ガス、建築確認番号:H25A-JKex00165-01、駐車場:地下車庫 | Company profile 会社概要 | | <Mediation> Governor of Tokyo (4) No. 075540 (Corporation) Tokyo Metropolitan Government Building Lots and Buildings Transaction Business Association (Corporation) metropolitan area real estate Fair Trade Council member Daiei House Industry Co., Ltd. Yubinbango175-0094 Itabashi-ku, Tokyo Narimasu 1-14-14 <仲介>東京都知事(4)第075540号(公社)東京都宅地建物取引業協会会員 (公社)首都圏不動産公正取引協議会加盟ダイエーハウス工業(株)〒175-0094 東京都板橋区成増1-14-14 |
 Local appearance photo
現地外観写真
Floor plan間取り図  43,800,000 yen, 4LDK+S, Land area 106.56 sq m , Building area 126.42 sq m
4380万円、4LDK+S、土地面積106.56m2、建物面積126.42m2
 Local appearance photo
現地外観写真
 Local appearance photo
現地外観写真
 Local appearance photo
現地外観写真
Location
|