New Homes » Kansai » Shiga Prefecture » Omihachiman
 
| | Shiga Prefecture Omihachiman 滋賀県近江八幡市 |
| JR Tokaido Line "Hachiman" walk 18 minutes JR東海道本線「近江八幡」歩18分 |
| ☆ JR Omihachiman Station 18 mins ☆JR近江八幡駅徒歩18分 |
| ・ Facilities contributions: 300,000 yen ・ Boundary cost: 300,000 yen ・施設負担金:30万円・境界費用:30万円 |
Features pickup 特徴ピックアップ | | Parking two Allowed / Or more before road 6m / 2-story 駐車2台可 /前道6m以上 /2階建 | Price 価格 | | 18,950,000 yen 1895万円 | Floor plan 間取り | | 3LDK 3LDK | Units sold 販売戸数 | | 1 units 1戸 | Land area 土地面積 | | 110.39 sq m (registration) 110.39m2(登記) | Building area 建物面積 | | 94.41 sq m 94.41m2 | Driveway burden-road 私道負担・道路 | | Nothing, Northwest 6m width 無、北西6m幅 | Completion date 完成時期(築年月) | | December 2013 2013年12月 | Address 住所 | | Shiga Prefecture Omihachiman Nakakomori cho 滋賀県近江八幡市中小森町 | Traffic 交通 | | JR Tokaido Line "Hachiman" walk 18 minutes JR東海道本線「近江八幡」歩18分
| Related links 関連リンク | | [Related Sites of this company] 【この会社の関連サイト】 | Person in charge 担当者より | | [Regarding this property.] Good Points 【この物件について】いいとこ | Contact お問い合せ先 | | Century 21sublime real estate sales (Ltd.) TEL: 0800-603-4584 [Toll free] mobile phone ・ Also available from PHS Caller ID is not notified Please contact the "saw SUUMO (Sumo)" If it does not lead, If the real estate company センチュリー21sublime不動産販売(株)TEL:0800-603-4584【通話料無料】携帯電話・PHSからもご利用いただけます 発信者番号は通知されません 「SUUMO(スーモ)を見た」と問い合わせください つながらない方、不動産会社の方は
| Building coverage, floor area ratio 建ぺい率・容積率 | | 60% ・ 200% 60%・200% | Time residents 入居時期 | | Consultation 相談 | Land of the right form 土地の権利形態 | | Ownership 所有権 | Structure and method of construction 構造・工法 | | Wooden 2-story 木造2階建 | Use district 用途地域 | | One dwelling 1種住居 | Overview and notices その他概要・特記事項 | | Facilities: Public Water Supply, This sewage, Individual LPG 設備:公営水道、本下水、個別LPG | Company profile 会社概要 | | <Seller> Governor of Shiga Prefecture (1) No. 003327 Century 21sublime Real Estate Sales Co., Ltd. Yubinbango524-0044 Shiga Prefecture Moriyama Old High Town, 252 <売主>滋賀県知事(1)第003327号センチュリー21sublime不動産販売(株)〒524-0044 滋賀県守山市古高町252 |
Local appearance photo現地外観写真  Local (12 May 2013) Shooting
現地(2013年12月)撮影
Compartment figure区画図  18,950,000 yen, 3LDK, Land area 110.39 sq m , Building area 94.41 sq m
1895万円、3LDK、土地面積110.39m2、建物面積94.41m2
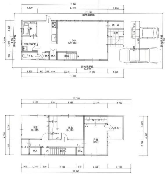
Floor plan間取り図  18,950,000 yen, 3LDK, Land area 110.39 sq m , Building area 94.41 sq m
1895万円、3LDK、土地面積110.39m2、建物面積94.41m2
Local photos, including front road前面道路含む現地写真  Local (12 May 2013) Shooting
現地(2013年12月)撮影
Primary school小学校  Omihachiman City Kirihara 1357m to East Elementary School
近江八幡市立桐原東小学校まで1357m
Junior high school中学校  It omihachiman stand Yahatanishi to elementary school 2600m
近江八幡市立八幡西小学校まで2600m
Supermarketスーパー  1488m until the ion Omihachiman shop
イオン近江八幡店まで1488m
Convenience storeコンビニ  807m to FamilyMart Omihachiman Nakakomori the town shop
ファミリーマート近江八幡中小森町店まで807m
Drug storeドラッグストア  Joshin to Omihachiman shop 1973m
ジョーシン近江八幡店まで1973m
Home centerホームセンター  1873m to Kama home improvement store Omihachiman
カーマホームセンター近江八幡店まで1873m
Hospital病院  Omihachiman Municipal Medical Center to 1672m
近江八幡市立総合医療センターまで1672m
Government office役所  Omihachiman 2357m to city hall
近江八幡市役所まで2357m
Police station ・ Police box警察署・交番  Omihachiman 2528m to police station
近江八幡警察署まで2528m
Location
|