New Homes » Tokai » Shizuoka Prefecture » Fuji City
 
| | Fuji City, Shizuoka Prefecture 静岡県富士市 |
| JR minobu line "Tatehori" walk 25 minutes JR身延線「竪堀」歩25分 |
| 11 three buildings completed in May ☆ The remaining 1 buildings! ☆ As early as price down ☆ Parking space, The garden is also enough! You can preview! ! ■ FREE CALL 0800-805-3543 ■ 11月に3棟完成☆残り1棟!☆早くもプライスダウン☆駐車スペース、お庭も十分!内覧できます!!■FREE CALL 0800-805-3543■ |
Features pickup 特徴ピックアップ | | Corresponding to the flat-35S / Pre-ground survey / Year Available / Parking three or more possible / System kitchen / Bathroom Dryer / Yang per good / All room storage / A quiet residential area / Japanese-style room / garden / Washbasin with shower / Face-to-face kitchen / Barrier-free / Toilet 2 places / Bathroom 1 tsubo or more / 2-story / South balcony / Double-glazing / Warm water washing toilet seat / Underfloor Storage / The window in the bathroom / TV monitor interphone / Ventilation good / Water filter / All rooms are two-sided lighting フラット35Sに対応 /地盤調査済 /年内入居可 /駐車3台以上可 /システムキッチン /浴室乾燥機 /陽当り良好 /全居室収納 /閑静な住宅地 /和室 /庭 /シャワー付洗面台 /対面式キッチン /バリアフリー /トイレ2ヶ所 /浴室1坪以上 /2階建 /南面バルコニー /複層ガラス /温水洗浄便座 /床下収納 /浴室に窓 /TVモニタ付インターホン /通風良好 /浄水器 /全室2面採光 | Price 価格 | | 20.8 million yen 2080万円 | Floor plan 間取り | | 4LDK 4LDK | Units sold 販売戸数 | | 1 units 1戸 | Total units 総戸数 | | 3 units 3戸 | Land area 土地面積 | | 179.53 sq m 179.53m2 | Building area 建物面積 | | 91.53 sq m 91.53m2 | Driveway burden-road 私道負担・道路 | | Road width: 4m 道路幅:4m | Completion date 完成時期(築年月) | | October 2013 2013年10月 | Address 住所 | | Fuji City, Shizuoka Prefecture Iwamoto 198-1 静岡県富士市岩本198-1他 | Traffic 交通 | | JR minobu line "Tatehori" walk 25 minutes JR身延線「竪堀」歩25分 | Related links 関連リンク | | [Related Sites of this company] 【この会社の関連サイト】 | Contact お問い合せ先 | | TEL: 0800-602-4936 [Toll free] mobile phone ・ Also available from PHS Caller ID is not notified Please contact the "saw SUUMO (Sumo)" If it does not lead, If the real estate company TEL:0800-602-4936【通話料無料】携帯電話・PHSからもご利用いただけます 発信者番号は通知されません 「SUUMO(スーモ)を見た」と問い合わせください つながらない方、不動産会社の方は
| Building coverage, floor area ratio 建ぺい率・容積率 | | Kenpei rate: 40%, Volume ratio: 60% 建ペい率:40%、容積率:60% | Time residents 入居時期 | | Immediate available 即入居可 | Land of the right form 土地の権利形態 | | Ownership 所有権 | Structure and method of construction 構造・工法 | | Wooden 2-story 木造2階建 | Use district 用途地域 | | One low-rise 1種低層 | Land category 地目 | | Residential land 宅地 | Overview and notices その他概要・特記事項 | | Building confirmation number: No. H25SHC112392 建築確認番号:第H25SHC112392号 | Company profile 会社概要 | | <Mediation> Shizuoka Governor (1) No. 013206 (Ltd.) property Yubinbango420-0043 Shizuoka City, Aoi-ku, Kawabe-cho 2-2-22 <仲介>静岡県知事(1)第013206号(株)プロパティ〒420-0043 静岡県静岡市葵区川辺町2-2-22 |
Local appearance photo現地外観写真  Garden, spacious ☆
お庭、広々☆
Kitchenキッチン  Face-to-face system Kitchen ☆
対面式のシステムキッチン☆
Bathroom浴室  1 tsubo, bathroom ☆
1坪、浴室☆
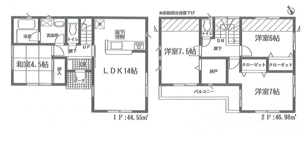
Floor plan間取り図  (Building 2), Price 20.8 million yen, 4LDK, Land area 179.53 sq m , Building area 91.53 sq m
(2号棟)、価格2080万円、4LDK、土地面積179.53m2、建物面積91.53m2
Livingリビング  Living the bright sun shine in ☆
明るい陽が射し込むリビング☆
 Entrance
玄関
Wash basin, toilet洗面台・洗面所  Washbasin with cleanliness ☆
清潔感のある洗面台☆
Toiletトイレ  Toilet with a handrail ☆
手すり付きのトイレ☆
Convenience storeコンビニ  817m to FamilyMart Fuji Iwamatsu shop
ファミリーマート富士岩松店まで817m
Other introspectionその他内観  Modern Japanese-style room ☆
モダンな和室☆
 Living
リビング
Drug storeドラッグストア  Create es ・ 1454m until Dee Fuji Matsuoka shop
クリエイトエス・ディー富士松岡店まで1454m
 Other introspection
その他内観
Home centerホームセンター  2138m to jumbo Encho Fuji Nishiten
ジャンボエンチョー富士西店まで2138m
Other introspectionその他内観  Bright living room ☆
明るい居室☆
 Each room, Storage rooms ☆
各部屋、収納完備☆
 Other introspection
その他内観
 Other introspection
その他内観
 Other introspection
その他内観
 Other introspection
その他内観
 Other introspection
その他内観
Location
|