2014January
23.8 million yen, 4LDK, 93.55 sq m
New Homes » Tokai » Shizuoka Prefecture » Fuji City
 
| | Fuji City, Shizuoka Prefecture 静岡県富士市 |
| JR minobu line "Tatehori" walk 13 minutes JR身延線「竪堀」歩13分 |
Price 価格 | | 23.8 million yen 2380万円 | Floor plan 間取り | | 4LDK 4LDK | Units sold 販売戸数 | | 1 units 1戸 | Land area 土地面積 | | 126 sq m (38.11 tsubo) (Registration) 126m2(38.11坪)(登記) | Building area 建物面積 | | 93.55 sq m (28.29 tsubo) (Registration) 93.55m2(28.29坪)(登記) | Driveway burden-road 私道負担・道路 | | Nothing, West 4.1m width, South 4m width 無、西4.1m幅、南4m幅 | Completion date 完成時期(築年月) | | January 2014 2014年1月 | Address 住所 | | Fuji City, Shizuoka Prefecture Matsuoka 静岡県富士市松岡 | Traffic 交通 | | JR minobu line "Tatehori" walk 13 minutes JR身延線「竪堀」歩13分 | Contact お問い合せ先 | | TEL: 0545-64-0388 Please inquire as "saw SUUMO (Sumo)" TEL:0545-64-0388「SUUMO(スーモ)を見た」と問い合わせください | Building coverage, floor area ratio 建ぺい率・容積率 | | Fifty percent ・ 80% 50%・80% | Time residents 入居時期 | | Consultation 相談 | Land of the right form 土地の権利形態 | | Ownership 所有権 | Structure and method of construction 構造・工法 | | Wooden 2-story 木造2階建 | Use district 用途地域 | | One low-rise 1種低層 | Overview and notices その他概要・特記事項 | | Facilities: Public Water Supply, This sewage, Individual LPG, Building confirmation number: No. H25SHC117063, Parking: car space 設備:公営水道、本下水、個別LPG、建築確認番号:第H25SHC117063号、駐車場:カースペース | Company profile 会社概要 | | <Mediation> Shizuoka Governor (1) No. 012673 (Corporation), Shizuoka Prefecture Building Lots and Buildings Transaction Business Association Tokai Real Estate Fair Trade Council member (Ltd.) MM ・ Corporation Yubinbango416-0923 Fuji City, Shizuoka Prefecture Yokowarihon cho 3-10 <仲介>静岡県知事(1)第012673号(公社)静岡県宅地建物取引業協会会員 東海不動産公正取引協議会加盟(株)エムエム・コーポレーション〒416-0923 静岡県富士市横割本町3-10 |
 Rendering (appearance)
完成予想図(外観)
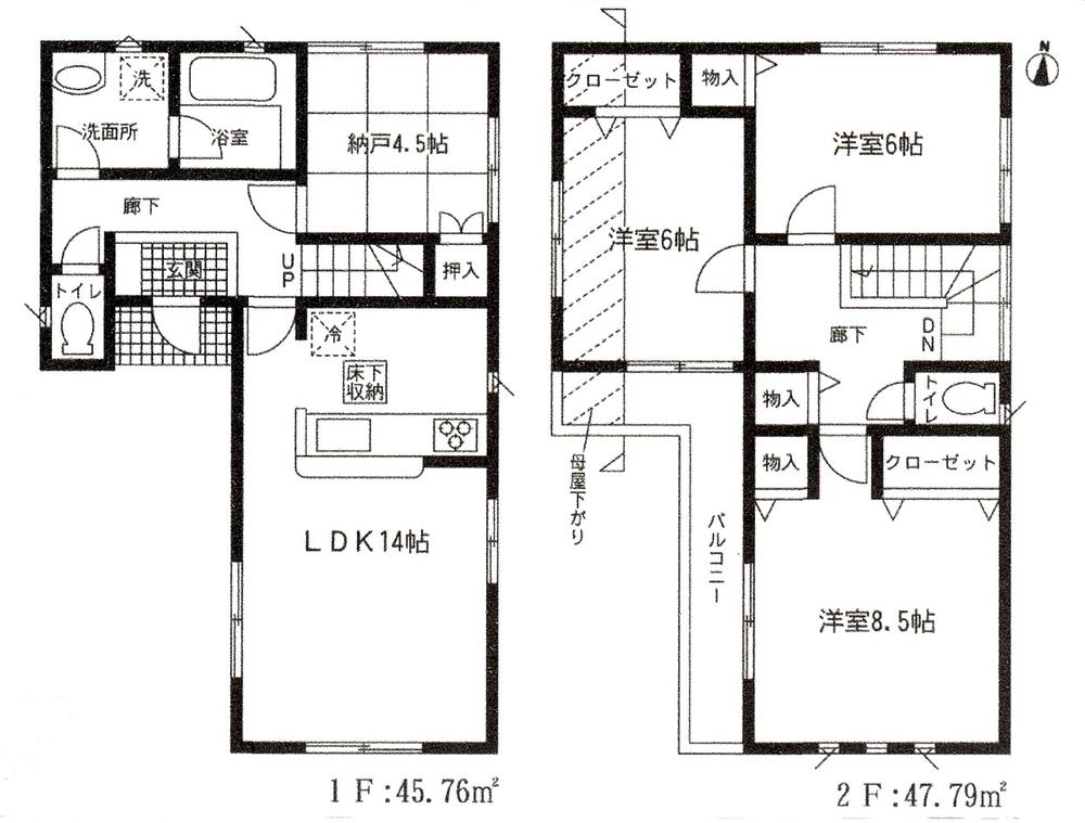
Floor plan間取り図  23.8 million yen, 4LDK, Land area 126 sq m , Building area 93.55 sq m
2380万円、4LDK、土地面積126m2、建物面積93.55m2
 Same specifications photo (kitchen)
同仕様写真(キッチン)
 Same specifications photo (bathroom)
同仕様写真(浴室)
Location
|