New Homes » Tokai » Shizuoka Prefecture » Fujieda
 
| | Shizuoka Prefecture Fujieda 静岡県藤枝市 |
| JR Tokaido Line "Nishi Yaizu" bus 7 minutes Seongnam chome walk 8 minutes JR東海道本線「西焼津」バス7分城南一丁目歩8分 |
| [ Seller direct sales ] New price! From 16.8 million yen! ! Newly built condominiums appeared in Fujieda Mashizu! Fujieda Station and Nishi Yaizu required time of 15 minutes the bus in use in the Station! National highway close to Route 1, Also access good in the car! 【 売主直売 】新価格!1,680万円より!!藤枝市益津に新築分譲住宅登場!藤枝駅と西焼津駅にバスを利用で所要時間15分!国道1号線に近く、車でもアクセス良好! |
| Construction housing performance with evaluation, Design house performance with evaluation, Corresponding to the flat-35S, Vibration Control ・ Seismic isolation ・ Earthquake resistant, Seismic fit, Parking three or more possible, 2 along the line more accessible, Energy-saving water heaters, Facing south, System kitchen, Yang per good, Siemens south road, A quiet residential area, LDK15 tatami mats or more, Corner lot, Shaping land, Garden more than 10 square meters, Washbasin with shower, Face-to-face kitchen, Bathroom 1 tsubo or more, 2-story, South balcony, Double-glazing, Warm water washing toilet seat, Nantei, Underfloor Storage, All living room flooring, All room 6 tatami mats or more, City gas, Flat terrain 建設住宅性能評価付、設計住宅性能評価付、フラット35Sに対応、制震・免震・耐震、耐震適合、駐車3台以上可、2沿線以上利用可、省エネ給湯器、南向き、システムキッチン、陽当り良好、南側道路面す、閑静な住宅地、LDK15畳以上、角地、整形地、庭10坪以上、シャワー付洗面台、対面式キッチン、浴室1坪以上、2階建、南面バルコニー、複層ガラス、温水洗浄便座、南庭、床下収納、全居室フローリング、全居室6畳以上、都市ガス、平坦地 |
Features pickup 特徴ピックアップ | | Construction housing performance with evaluation / Design house performance with evaluation / Corresponding to the flat-35S / Pre-ground survey / Vibration Control ・ Seismic isolation ・ Earthquake resistant / Seismic fit / Parking three or more possible / Immediate Available / 2 along the line more accessible / Energy-saving water heaters / Facing south / System kitchen / Yang per good / All room storage / Siemens south road / A quiet residential area / LDK15 tatami mats or more / Around traffic fewer / Shaping land / Garden more than 10 square meters / Washbasin with shower / Face-to-face kitchen / Barrier-free / Bathroom 1 tsubo or more / 2-story / South balcony / Double-glazing / Warm water washing toilet seat / Nantei / Underfloor Storage / TV monitor interphone / All living room flooring / All room 6 tatami mats or more / City gas / A large gap between the neighboring house / All rooms southwestward / Flat terrain 建設住宅性能評価付 /設計住宅性能評価付 /フラット35Sに対応 /地盤調査済 /制震・免震・耐震 /耐震適合 /駐車3台以上可 /即入居可 /2沿線以上利用可 /省エネ給湯器 /南向き /システムキッチン /陽当り良好 /全居室収納 /南側道路面す /閑静な住宅地 /LDK15畳以上 /周辺交通量少なめ /整形地 /庭10坪以上 /シャワー付洗面台 /対面式キッチン /バリアフリー /浴室1坪以上 /2階建 /南面バルコニー /複層ガラス /温水洗浄便座 /南庭 /床下収納 /TVモニタ付インターホン /全居室フローリング /全居室6畳以上 /都市ガス /隣家との間隔が大きい /全室南西向き /平坦地 | Price 価格 | | 16.8 million yen ~ 20,300,000 yen 1680万円 ~ 2030万円 | Floor plan 間取り | | 4LDK 4LDK | Units sold 販売戸数 | | 3 units 3戸 | Total units 総戸数 | | 6 units 6戸 | Land area 土地面積 | | 139.29 sq m ~ 140.58 sq m (42.13 tsubo ~ 42.52 tsubo) (Registration) 139.29m2 ~ 140.58m2(42.13坪 ~ 42.52坪)(登記) | Building area 建物面積 | | 95.64 sq m ~ 98.53 sq m (28.93 tsubo ~ 29.80 square meters) 95.64m2 ~ 98.53m2(28.93坪 ~ 29.80坪) | Driveway burden-road 私道負担・道路 | | Road width: 5m, Asphaltic pavement, Driveway 道路幅:5m、アスファルト舗装、私道 | Completion date 完成時期(築年月) | | 2013 mid-October 2013年10月中旬 | Address 住所 | | Shizuoka Prefecture Fujieda Mashizu 364 No. 17 静岡県藤枝市益津364番17 | Traffic 交通 | | JR Tokaido Line "Nishi Yaizu" bus 7 minutes Seongnam chome walk 8 minutes JR Tokaido Line "Fujieda" 8 minutes Fujieda City Hall walk 7 minutes by bus JR Tokaido Line "Fujieda" walk 33 minutes JR東海道本線「西焼津」バス7分城南一丁目歩8分 JR東海道本線「藤枝」バス8分藤枝市役所歩7分 JR東海道本線「藤枝」歩33分
| Related links 関連リンク | | [Related Sites of this company] 【この会社の関連サイト】 | Person in charge 担当者より | | Rep Nakazawa Takayuki 担当者中澤 孝之 | Contact お問い合せ先 | | TEL: 0800-603-0464 [Toll free] mobile phone ・ Also available from PHS Caller ID is not notified Please contact the "saw SUUMO (Sumo)" If it does not lead, If the real estate company TEL:0800-603-0464【通話料無料】携帯電話・PHSからもご利用いただけます 発信者番号は通知されません 「SUUMO(スーモ)を見た」と問い合わせください つながらない方、不動産会社の方は
| Building coverage, floor area ratio 建ぺい率・容積率 | | Kenpei rate: 60%, Volume ratio: 200% 建ペい率:60%、容積率:200% | Time residents 入居時期 | | Immediate available 即入居可 | Land of the right form 土地の権利形態 | | Ownership 所有権 | Structure and method of construction 構造・工法 | | Wooden 2-story (I.D.S method) 木造2階建(I.D.S工法) | Construction 施工 | | CO., LTD Idasangyo 株式会社 飯田産業 | Use district 用途地域 | | One dwelling, Two dwellings 1種住居、2種住居 | Land category 地目 | | Residential land 宅地 | Other limitations その他制限事項 | | Regulations have by the Landscape Act 景観法による規制有 | Overview and notices その他概要・特記事項 | | Contact: Nakazawa Takayuki, Building confirmation number: No. 13SGS-A-01-0792 other 担当者:中澤 孝之、建築確認番号:第13SGS-A-01-0792号他 | Company profile 会社概要 | | <Employer ・ Seller> Minister of Land, Infrastructure and Transport (8) No. 003306 (Ltd.) Idasangyo Shizuoka Minami office Yubinbango422-8077 Shizuoka Prefecture Shizuoka Suruga-ku, Yamato 2-3-29 Ravian'nu 21A ・ B <事業主・売主>国土交通大臣(8)第003306号(株)飯田産業静岡南営業所〒422-8077 静岡県静岡市駿河区大和2-3-29 ラヴィアンヌ21A・B |
Local appearance photo現地外観写真  B Building exterior shooting (12 May 2013)
B号棟外観撮影(2013年12月)
Livingリビング  E Building living shooting (12 May 2013)
E号棟リビング撮影(2013年12月)
 B Building living shooting (12 May 2013) Taking
B号棟リビング撮影(2013年12月)撮
Floor plan間取り図  (A Building), Price 16.8 million yen, 4LDK, Land area 139.34 sq m , Building area 95.64 sq m
(A号棟)、価格1680万円、4LDK、土地面積139.34m2、建物面積95.64m2
Local appearance photo現地外観写真  A Building exterior shooting (12 May 2013)
A号棟外観撮影(2013年12月)
Livingリビング  E Building living shooting (12 May 2013)
E号棟リビング撮影(2013年12月)
Bathroom浴室  Local (12 May 2013) Shooting
現地(2013年12月)撮影
Kitchenキッチン  Local (12 May 2013) Shooting
現地(2013年12月)撮影
Junior high school中学校  Fujieda Municipal Fujieda until junior high school 2200m
藤枝市立藤枝中学校まで2200m
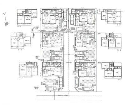
 The entire compartment Figure
全体区画図
Otherその他  I. of Idasangyo
飯田産業のI.D.S工法です
Floor plan間取り図  (B Building), Price 19,800,000 yen, 4LDK, Land area 140.58 sq m , Building area 96.46 sq m
(B号棟)、価格1980万円、4LDK、土地面積140.58m2、建物面積96.46m2
Local appearance photo現地外観写真  E Building exterior shooting (12 May 2013)
E号棟外観撮影(2013年12月)
Livingリビング  Local (12 May 2013) shooting A Building
現地(2013年12月)撮影A号棟
Floor plan間取り図  (E Building), Price 20,300,000 yen, 4LDK, Land area 140.06 sq m , Building area 98.53 sq m
(E号棟)、価格2030万円、4LDK、土地面積140.06m2、建物面積98.53m2
Local appearance photo現地外観写真  Local (August 2013) Shooting
現地(2013年8月)撮影
Livingリビング  Local (12 May 2013) shooting A Building
現地(2013年12月)撮影A号棟
Local appearance photo現地外観写真  Local (August 2013) shooting A Building
現地(2013年8月)撮影A号棟
Livingリビング  Local (12 May 2013) shooting B Building
現地(2013年12月)撮影B号棟
Local appearance photo現地外観写真  Local (August 2013) shooting A Building
現地(2013年8月)撮影A号棟
 Local (September 2013) shooting B Building
現地(2013年9月)撮影B号棟
Location
|