New Homes » Tokai » Shizuoka Prefecture » Fujieda
 
| | Shizuoka Prefecture Fujieda 静岡県藤枝市 |
| JR Tokaido Line "Fujieda" walk 45 minutes JR東海道本線「藤枝」歩45分 |
| Parking two Allowed, System kitchen, All room storage, A quiet residential area, LDK15 tatami mats or more, Around traffic fewer, Shaping land, Washbasin with shower, 2-story, South balcony, Double-glazing, Warm water washing toilet seat, 駐車2台可、システムキッチン、全居室収納、閑静な住宅地、LDK15畳以上、周辺交通量少なめ、整形地、シャワー付洗面台、2階建、南面バルコニー、複層ガラス、温水洗浄便座、 |
| Parking two Allowed, System kitchen, All room storage, A quiet residential area, LDK15 tatami mats or more, Around traffic fewer, Shaping land, Washbasin with shower, 2-story, South balcony, Double-glazing, Warm water washing toilet seat, The window in the bathroom, TV monitor interphone, All living room flooring, City gas 駐車2台可、システムキッチン、全居室収納、閑静な住宅地、LDK15畳以上、周辺交通量少なめ、整形地、シャワー付洗面台、2階建、南面バルコニー、複層ガラス、温水洗浄便座、浴室に窓、TVモニタ付インターホン、全居室フローリング、都市ガス |
Features pickup 特徴ピックアップ | | Parking two Allowed / System kitchen / All room storage / A quiet residential area / LDK15 tatami mats or more / Around traffic fewer / Shaping land / Washbasin with shower / 2-story / South balcony / Double-glazing / Warm water washing toilet seat / The window in the bathroom / TV monitor interphone / All living room flooring / City gas 駐車2台可 /システムキッチン /全居室収納 /閑静な住宅地 /LDK15畳以上 /周辺交通量少なめ /整形地 /シャワー付洗面台 /2階建 /南面バルコニー /複層ガラス /温水洗浄便座 /浴室に窓 /TVモニタ付インターホン /全居室フローリング /都市ガス | Price 価格 | | 21,800,000 yen 2180万円 | Floor plan 間取り | | 4LDK 4LDK | Units sold 販売戸数 | | 1 units 1戸 | Total units 総戸数 | | 2 units 2戸 | Land area 土地面積 | | 137.54 sq m (41.60 tsubo) (Registration) 137.54m2(41.60坪)(登記) | Building area 建物面積 | | 100.19 sq m (30.30 tsubo) (Registration) 100.19m2(30.30坪)(登記) | Driveway burden-road 私道負担・道路 | | Nothing, West 5m width 無、西5m幅 | Completion date 完成時期(築年月) | | November 2013 2013年11月 | Address 住所 | | Shizuoka Prefecture Fujieda Otowa-cho 3 静岡県藤枝市音羽町3 | Traffic 交通 | | JR Tokaido Line "Fujieda" walk 45 minutes JR東海道本線「藤枝」歩45分
| Contact お問い合せ先 | | (Ltd.) A & amp; C real estate sales TEL: 0800-603-7664 [Toll free] mobile phone ・ Also available from PHS Caller ID is not notified Please contact the "saw SUUMO (Sumo)" If it does not lead, If the real estate company (株)A&C不動産販売TEL:0800-603-7664【通話料無料】携帯電話・PHSからもご利用いただけます 発信者番号は通知されません 「SUUMO(スーモ)を見た」と問い合わせください つながらない方、不動産会社の方は
| Building coverage, floor area ratio 建ぺい率・容積率 | | Fifty percent ・ 80% 50%・80% | Time residents 入居時期 | | Consultation 相談 | Land of the right form 土地の権利形態 | | Ownership 所有権 | Structure and method of construction 構造・工法 | | Wooden 2-story 木造2階建 | Use district 用途地域 | | One low-rise 1種低層 | Overview and notices その他概要・特記事項 | | Facilities: Public Water Supply, This sewage, City gas, Building confirmation number: first 13SGS-A-01-0951, Parking: car space 設備:公営水道、本下水、都市ガス、建築確認番号:第13SGS-A-01-0951、駐車場:カースペース | Company profile 会社概要 | | <Mediation> Shizuoka Governor (2) No. 012758 (Ltd.) A & amp; C real estate sales Yubinbango426-0037 Shizuoka Prefecture Fujieda Aoki 2-2-12 <仲介>静岡県知事(2)第012758号(株)A&C不動産販売〒426-0037 静岡県藤枝市青木2-2-12 |
Rendering (appearance)完成予想図(外観)  Rendering
完成予想図
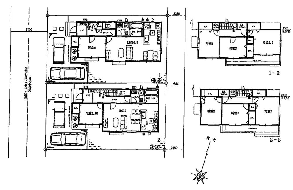
Floor plan間取り図  21,800,000 yen, 4LDK, Land area 137.54 sq m , Building area 100.19 sq m floor plan
2180万円、4LDK、土地面積137.54m2、建物面積100.19m2 間取り図
Same specifications photo (kitchen)同仕様写真(キッチン)  Example of construction
施工例
Same specifications photo (bathroom)同仕様写真(浴室)  Example of construction
施工例
Wash basin, toilet洗面台・洗面所  Example of construction
施工例
Toiletトイレ  Example of construction
施工例
Location
|