|
|
Hamamatsu, Shizuoka Prefecture, Higashi-ku,
静岡県浜松市東区
|
|
JR Tokaido Line "Hamamatsu" bus 10 molecule depreciation walk 5 minutes
JR東海道本線「浜松」バス10分子安歩5分
|
|
New price! Koyasu park buckwheat, A quiet residential area, Sunny
新価格!子安団地そば、閑静な住宅街、日当たり良好
|
|
New price! Koyasu park buckwheat, A quiet residential area, Sunny
新価格!子安団地そば、閑静な住宅街、日当たり良好
|
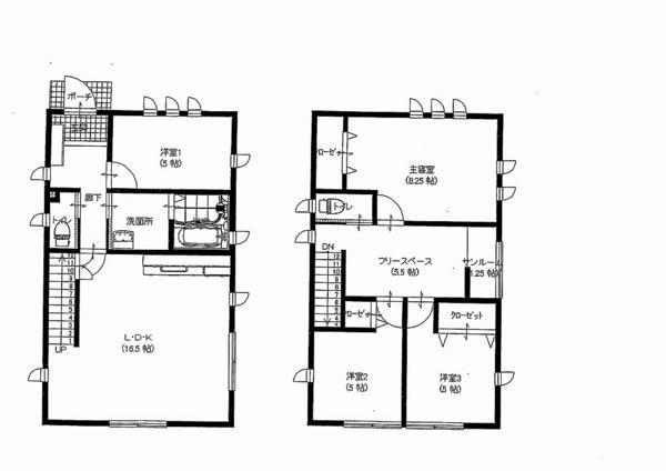
Features pickup 特徴ピックアップ | | Parking three or more possible / Land 50 square meters or more / Facing south / System kitchen / LDK15 tatami mats or more / Washbasin with shower / Toilet 2 places / 2-story / Storeroom 駐車3台以上可 /土地50坪以上 /南向き /システムキッチン /LDK15畳以上 /シャワー付洗面台 /トイレ2ヶ所 /2階建 /納戸 |
Event information イベント情報 | | Open House Schedule / Every Saturday and Sunday time / 10:00 ~ 17:00 オープンハウス日程/毎週土日時間/10:00 ~ 17:00 |
Price 価格 | | 26,800,000 yen 2680万円 |
Floor plan 間取り | | 4LDK + S (storeroom) 4LDK+S(納戸) |
Units sold 販売戸数 | | 1 units 1戸 |
Land area 土地面積 | | 169.8 sq m (registration) 169.8m2(登記) |
Building area 建物面積 | | 99.36 sq m 99.36m2 |
Driveway burden-road 私道負担・道路 | | Nothing, North 4m width 無、北4m幅 |
Completion date 完成時期(築年月) | | April 2013 2013年4月 |
Address 住所 | | Hamamatsu, Shizuoka Prefecture, Higashi-ku, Koyasu-cho 静岡県浜松市東区子安町 |
Traffic 交通 | | JR Tokaido Line "Hamamatsu" bus 10 molecule depreciation walk 5 minutes JR東海道本線「浜松」バス10分子安歩5分
|
Related links 関連リンク | | [Related Sites of this company] 【この会社の関連サイト】 |
Contact お問い合せ先 | | Century 21 Good Living (Ltd.) TEL: 0800-603-2775 [Toll free] mobile phone ・ Also available from PHS Caller ID is not notified Please contact the "saw SUUMO (Sumo)" If it does not lead, If the real estate company センチュリー21グッドリビング(株)TEL:0800-603-2775【通話料無料】携帯電話・PHSからもご利用いただけます 発信者番号は通知されません 「SUUMO(スーモ)を見た」と問い合わせください つながらない方、不動産会社の方は
|
Building coverage, floor area ratio 建ぺい率・容積率 | | 60% ・ 200% 60%・200% |
Time residents 入居時期 | | Consultation 相談 |
Land of the right form 土地の権利形態 | | Ownership 所有権 |
Structure and method of construction 構造・工法 | | Wooden 2-story (2 × 4 construction method) 木造2階建(2×4工法) |
Construction 施工 | | Good Living Co., Ltd. グッドリビング(株) |
Use district 用途地域 | | One dwelling 1種住居 |
Overview and notices その他概要・特記事項 | | Building confirmation number: No. H24 confirmation building static Ken lived No. 14513, Parking: car space 建築確認番号:第H24確認建築静建住ま14513号、駐車場:カースペース |
Company profile 会社概要 | | <Seller> Shizuoka Governor (3) The 011,402 No. Century 21 Good Living Co., Ltd. Yubinbango432-8021 Shizuoka Prefecture medium Hamamatsu City District Sanarudai 1-8-8 <売主>静岡県知事(3)第011402号センチュリー21グッドリビング(株)〒432-8021 静岡県浜松市中区佐鳴台1-8-8 |