New Homes » Tokai » Shizuoka Prefecture » Hamamatsu Minami-ku
 
| | Hamamatsu City, Shizuoka Prefecture, Minami-ku, 静岡県浜松市南区 |
| Totetsu bus "Iron Complex south" walk 2 minutes 遠鉄バス「鉄工団地南」歩2分 |
| Selling model house in deals! Also equipped with lots! It deals properties that habitable immediately! After that move cost only! モデルハウスをお得に販売!装備も盛りだくさん!すぐに住めるお得な物件!あとは引っ越し費用のみ! |
| Up to about Shirowaki elementary school 500m, Up to about Totetsu store 1060m, Totetsu about 150m until the bus "Iron Complex south". We will support a comfortable life. 白脇小学校まで約500m、遠鉄ストアまで約1060m、遠鉄バス「鉄工団地南」まで約150m。快適な暮らしを応援いたします。 |
Features pickup 特徴ピックアップ | | Parking two Allowed / Immediate Available / Land 50 square meters or more / Super close / All room storage / Japanese-style room / Face-to-face kitchen / Toilet 2 places / 2-story / South balcony / Underfloor Storage / The window in the bathroom / Walk-in closet 駐車2台可 /即入居可 /土地50坪以上 /スーパーが近い /全居室収納 /和室 /対面式キッチン /トイレ2ヶ所 /2階建 /南面バルコニー /床下収納 /浴室に窓 /ウォークインクロゼット | Event information イベント情報 | | Model House (please visitors to direct local) schedule / During the public time / 9:00 ~ 20:00 Higashiten, Nishiten, Iwata shop, Toyohashi shop, It offers a model house of all 9 buildings. If you are able to reserve, You can guide you smoothly. It is open seven days a week. モデルハウス(直接現地へご来場ください)日程/公開中時間/9:00 ~ 20:00東店、西店、磐田店、豊橋店、全9棟のモデルハウスをご用意しています。ご予約していただけると、スムーズにご案内できます。年中無休で営業しております。 | Property name 物件名 | | Model house fifth Terawaki モデルハウス第5寺脇 | Price 価格 | | 32,400,000 yen ~ 32,550,000 yen 3240万円 ~ 3255万円 | Floor plan 間取り | | 3LDK ~ 4LDK 3LDK ~ 4LDK | Units sold 販売戸数 | | 2 units 2戸 | Total units 総戸数 | | 2 units 2戸 | Land area 土地面積 | | 200 sq m ~ 265 sq m (registration) 200m2 ~ 265m2(登記) | Building area 建物面積 | | 115.92 sq m ~ 117.57 sq m (registration) 115.92m2 ~ 117.57m2(登記) | Completion date 完成時期(築年月) | | April 2013 2013年4月 | Address 住所 | | Hamamatsu City, Shizuoka Prefecture, Minami-ku, Terawaki cho No.1, No.2 静岡県浜松市南区寺脇町No.1、No.2 | Traffic 交通 | | Totetsu bus "Iron Complex south" walk 2 minutes JR Tokaido Line "Hamamatsu" walk 35 minutes 遠鉄バス「鉄工団地南」歩2分JR東海道本線「浜松」歩35分
| Related links 関連リンク | | [Related Sites of this company] 【この会社の関連サイト】 | Person in charge 担当者より | | [Regarding this property.] Exterior construction is included in the room rate, Exterior construction is included in the room rate, Separate project included, Consumption tax, Large air-conditioned rooms, With lighting, It is immediately Available! 【この物件について】外構工事込、エクステリア工事込、別途工事込、消費税込、大型エアコン完備、照明付き、即入居可です! | Contact お問い合せ先 | | TEL: 0800-603-1373 [Toll free] mobile phone ・ Also available from PHS Caller ID is not notified Please contact the "saw SUUMO (Sumo)" If it does not lead, If the real estate company TEL:0800-603-1373【通話料無料】携帯電話・PHSからもご利用いただけます 発信者番号は通知されません 「SUUMO(スーモ)を見た」と問い合わせください つながらない方、不動産会社の方は
| Building coverage, floor area ratio 建ぺい率・容積率 | | Kenpei rate: 60%, Volume ratio: 200% 建ペい率:60%、容積率:200% | Time residents 入居時期 | | Immediate available 即入居可 | Land of the right form 土地の権利形態 | | Ownership 所有権 | Use district 用途地域 | | Unspecified 無指定 | Overview and notices その他概要・特記事項 | | Building confirmation number: No. H24 confirmation building static Ken lived No. 11492 The H24 confirmation building static Ken lived No. 11305 建築確認番号:第H24確認建築静建住ま11492号 第H24確認建築静建住ま11305号 | Company profile 会社概要 | | <Seller> Minister of Land, Infrastructure and Transport (1) the first 008,470 No. Kowa housing Co., Ltd. Kowa Housing Center Hamamatsu Nishiten Yubinbango432-8061 Hamamatsu City, Shizuoka Prefecture, Nishi-ku, Irino-cho 6149-1 <売主>国土交通大臣(1)第008470号幸和ハウジング(株)コーワ住センター浜松西店〒432-8061 静岡県浜松市西区入野町6149-1 |
Livingリビング  LDK and the Japanese-style room is spacious space followed.
LDKと和室が続く広々空間です。
 Modern appearance (No.1)
モダンな外観(No.1)
 Contemporary appearance (No.2)
コンテンポラリーな外観(No.2)
Kitchenキッチン  Cozy living space with a face-to-face kitchen
対面式キッチンで居心地の良い住空間
Non-living roomリビング以外の居室  Bedroom calm divided Hari one side cross
一面クロスを張り分けて落ち着いた寝室
 Hospitality to customers in a calm Japanese-style
落ち着きのある和室でお客さまにおもてなし
Entrance玄関  Storage rich entrance storage
収納豊富な玄関収納
Bathroom浴室  Tub to put in the whole family in the spacious bathroom
広々浴室で家族みんなで入れる浴槽
Livingリビング  Stylish living room in which the TV back to accent
TV裏をアクセントにしたお洒落なリビング
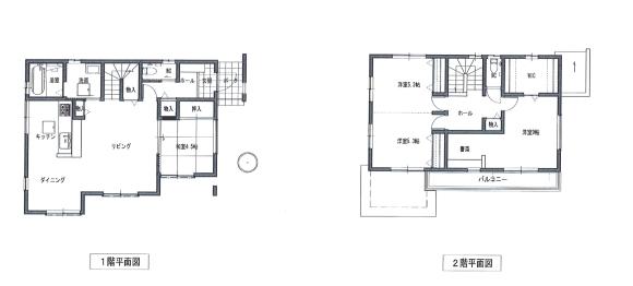
Floor plan間取り図  (No.1), Price 32,400,000 yen, 4LDK, Land area 265 sq m , Building area 115.92 sq m
(No.1)、価格3240万円、4LDK、土地面積265m2、建物面積115.92m2
 The entire compartment Figure
全体区画図
Supermarketスーパー  Libero until Mishima 1068m
リベロ三島まで1068m
Junior high school中学校  1515m to Hamamatsu City Southern Junior High School
浜松市立南部中学校まで1515m
Park公園  Until toothpick park 1073m
楊子公園まで1073m
Location
|