New Homes » Tokai » Shizuoka Prefecture » Hamamatsu Minami-ku
 
| | Hamamatsu City, Shizuoka Prefecture, Minami-ku, 静岡県浜松市南区 |
| Totetsu bus "Ozawa Wataritoma" walk 5 minutes 遠鉄バス「小沢渡停」歩5分 |
| Selling model house in deals! Happy equipment Lots! It deals properties that habitable immediately! After that move cost only! モデルハウスをお得に販売!うれしい装備が盛りだくさん!すぐに住めるお得な物件!あとは引っ越し費用のみ! |
| Niitsu walk to the elementary school about 17 minutes, Niitsu walk about 14 minutes until junior high school, Walk up to Totetsu store Shinbashi shop about 15 minutes. Living environment calm and convenience is attractive. 新津小学校まで徒歩約17分、新津中学校まで徒歩約14分、遠鉄ストア新橋店まで徒歩約15分。利便性と落ち着いた住環境が魅力です。 |
Features pickup 特徴ピックアップ | | Vibration Control ・ Seismic isolation ・ Earthquake resistant / Parking two Allowed / Immediate Available / 2 along the line more accessible / Land 50 square meters or more / Super close / Facing south / Yang per good / All room storage / Siemens south road / A quiet residential area / Around traffic fewer / Japanese-style room / Shaping land / Face-to-face kitchen / Wide balcony / 3 face lighting / Toilet 2 places / 2-story / South balcony / Nantei / The window in the bathroom / Atrium / Ventilation good / All room 6 tatami mats or more 制震・免震・耐震 /駐車2台可 /即入居可 /2沿線以上利用可 /土地50坪以上 /スーパーが近い /南向き /陽当り良好 /全居室収納 /南側道路面す /閑静な住宅地 /周辺交通量少なめ /和室 /整形地 /対面式キッチン /ワイドバルコニー /3面採光 /トイレ2ヶ所 /2階建 /南面バルコニー /南庭 /浴室に窓 /吹抜け /通風良好 /全居室6畳以上 | Event information イベント情報 | | Model House (please visitors to direct local) schedule / During the public time / 9:00 ~ 20:00 Higashiten, Nishiten, Iwata shop, Toyohashi shop, Design different all 9 buildings each, It offers a floor plan model house of. Please visit us feel free to. It is open seven days a week. モデルハウス(直接現地へご来場ください)日程/公開中時間/9:00 ~ 20:00東店、西店、磐田店、豊橋店、全9棟それぞれ違うデザイン、間取りのモデルハウスをご用意しています。お気軽にお立ち寄りください。年中無休で営業しています。 | Property name 物件名 | | Model house Wataru Ozawa モデルハウス小沢渡 | Price 価格 | | 29,800,000 yen 2980万円 | Floor plan 間取り | | 4LDK 4LDK | Units sold 販売戸数 | | 1 units 1戸 | Land area 土地面積 | | 201.72 sq m (registration) 201.72m2(登記) | Building area 建物面積 | | 144.88 sq m (registration) 144.88m2(登記) | Driveway burden-road 私道負担・道路 | | Nothing, South 5.4m width 無、南5.4m幅 | Completion date 完成時期(築年月) | | December 2012 2012年12月 | Address 住所 | | Hamamatsu City, Shizuoka Prefecture, Minami-ku, OzawaWataru cho 静岡県浜松市南区小沢渡町 | Traffic 交通 | | Totetsu bus "Ozawa Wataritoma" walk 5 minutes JR Tokaido Line "Takatsuka" car 5.8km Enshu Railway "new Hamamatsu" car 5.8km 遠鉄バス「小沢渡停」歩5分JR東海道本線「高塚」車5.8km 遠州鉄道「新浜松」車5.8km
| Related links 関連リンク | | [Related Sites of this company] 【この会社の関連サイト】 | Person in charge 担当者より | | [Regarding this property.] Exterior construction is included in the room rate, Exterior construction is included in the room rate, Large air-conditioned rooms, With lighting, This good properties of the consumption tax. 【この物件について】エクステリア工事込、外構工事込、大型エアコン完備、照明付き、消費税込のお得な物件です。 | Contact お問い合せ先 | | TEL: 0800-603-1372 [Toll free] mobile phone ・ Also available from PHS Caller ID is not notified Please contact the "saw SUUMO (Sumo)" If it does not lead, If the real estate company TEL:0800-603-1372【通話料無料】携帯電話・PHSからもご利用いただけます 発信者番号は通知されません 「SUUMO(スーモ)を見た」と問い合わせください つながらない方、不動産会社の方は
| Building coverage, floor area ratio 建ぺい率・容積率 | | 60% ・ 200% 60%・200% | Time residents 入居時期 | | Immediate available 即入居可 | Land of the right form 土地の権利形態 | | Ownership 所有権 | Structure and method of construction 構造・工法 | | Wooden 2-story (framing method) 木造2階建(軸組工法) | Construction 施工 | | Kowa housing (Ltd.) 幸和ハウジング(株) | Use district 用途地域 | | Unspecified 無指定 | Overview and notices その他概要・特記事項 | | Facilities: Public Water Supply, This sewage, Individual LPG, Parking: car space 設備:公営水道、本下水、個別LPG、駐車場:カースペース | Company profile 会社概要 | | <Seller> Minister of Land, Infrastructure and Transport (1) the first 008,470 No. Kowa housing Co., Ltd. Kowa Housing Center Hamamatsu Higashiten Yubinbango435-0052 Hamamatsu City, Shizuoka Prefecture, Higashi-ku, Tenno-cho, 1985-5 <売主>国土交通大臣(1)第008470号幸和ハウジング(株)コーワ住センター浜松東店〒435-0052 静岡県浜松市東区天王町1985-5 |
Livingリビング  Directing a bright and calm space is living and Japanese-style room with a sense of unity
一体感のあるリビングと和室は明るく落ち着いた空間を演出
 Stylish look attractive
スタイリッシュな外観が魅力
 Space family is more likely to relax floor plan reunion of connecting the living room and Japanese-style.
リビングと和室をつなぐ空間は家族の団らんが増えそうな寛げる間取り。
Kitchenキッチン  Kitchen with open sense of atrium is bathed in bright sunshine.
吹き抜けのある開放感のあるキッチンは明るい陽射しが差し込みます。
Entrance玄関  Bright space drenched with natural lighting from the front door is excellent in the storage window with depth.
奥行きのある玄関は収納に優れており窓からは自然の採光がふりそそぐ明るい空間。
Other introspectionその他内観  Space of the sum as a drawing room ・ ・ ・ Space of relaxation and calm.
和の空間は客間として・・・落ち着きと寛ぎの空間。
Balconyバルコニー  From the spacious balcony, Passing through the bright sunlight and wind.
広々としたバルコニーからは、明るい陽射しと風が通りぬける。
Supermarketスーパー  1200m until Totetsu store Shimbashi
遠鉄ストア新橋店まで1200m
Primary school小学校  1932m to the Hamamatsu Municipal Niitsu Elementary School
浜松市立新津小学校まで1932m
Junior high school中学校  1789m to the Hamamatsu Municipal Niitsu junior high school
浜松市立新津中学校まで1789m
Toiletトイレ  Design spatial who take advantage of the under stairs.
階段下をうまく利用したデザイン的な空間。
Bathroom浴室  Bath time of relaxation relieves the fatigue of the day
一日の疲れを取り除いてくれる寛ぎのバスタイム
The entire compartment Figure全体区画図  Life and spacious with spacious grounds
広々敷地でゆったりとした生活
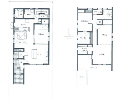
Floor plan間取り図  29,800,000 yen, 4LDK, Land area 201.72 sq m , Full ingenuity of the floor plan to cherish the ties with the building area 144.88 sq m family.
2980万円、4LDK、土地面積201.72m2、建物面積144.88m2 家族との繋がりを大切にする間取りの工夫がいっぱい。
Home centerホームセンター  Jumbo Encho 1898m to Hamamatsu Minami shop
ジャンボエンチョー浜松南店まで1898m
Location
|